




Location Bureau 376 m²
91560 Crosne
376 m²
160 €
HT/HC/m²/an
Disponibilité : Immédiate

Baptiste QUILGARS
Description
CROSNE (91)
A Louer
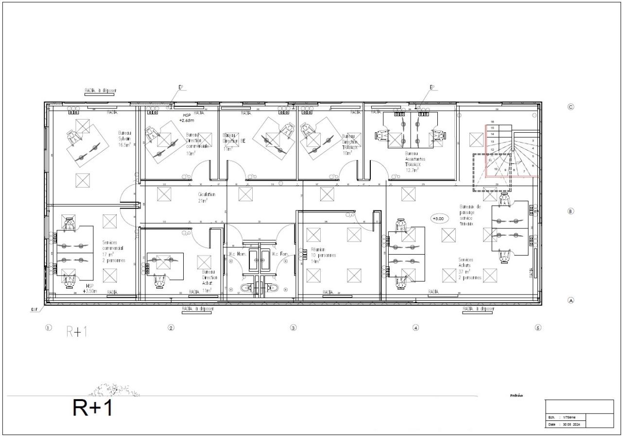
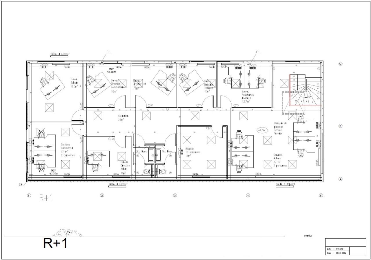
BNP PARIBAS REAL ESTATE vous propose, deux plateaux de bureaux non divisibles, au RdC et 1er étage, dans un immeuble indépendant situé à Crosne.
L'immeuble bénéficie d'un Terrain de 720 m² avec possibilité de stockage extérieur, ainsi que d'emplacements de parkings privatifs.
Services & prestations
Aménagements
-
Aménagement des bureaux : Cloisonnés/Ouverts
-
Sanitaires
Equipements
-
Climatisation : Au R+1
-
Câblage informatique
-
Eclairage Bureaux : Luminaires encastrés
-
Faux plafond
-
Fenêtres
-
Sol bureaux : Carrelage au RdC
Prestations de service
-
Parking : 10 Places
Type / Etat du bâtiment
-
Etat des locaux : Rénové
-
Immeuble indépendant
Informations complémentaires
-
Coin cuisine
-
Bardage double peau
-
Charpente métallique










