




GALAXIA
4 Rue du Groupe d'Or
31700 Blagnac
8 235 m²
Divisible dès 356 m²
165 €
HT/HC/m²/an
Disponibilité : Immédiate

Olivier CALVET
Description
*** DISPONIBILITE IMMEDIATE : BUREAUX A LOUER / TOULOUSE OUEST / BLAGNAC AEROPORT ***
BNP Paribas Real Estate vous propose une opération tertiaire d'envergure au pied de l'aéroport de Toulouse-Blagnac, disponible à la location.
Implantez votre entreprise dans un cadre dynamique et innovant au coeur de Toulouse-Blagnac. La présence de nombreux acteurs internationaux de l'aéronautique, de l'aérospatial, du tourisme, de l'ingénierie et du transport en font le principal pôle économique de la région Midi-Pyrénées.
GALAXIA bénéficie d'un emplacement stratégique au pied de l'aéroport international de Toulouse-Blagnac et d'une visibilité exceptionnelle depuis la voie rapide.
GALAXIA, c'est plus de 15 000 m² de bureaux rénovés avec des prestations haut de gamme, pensés pour allier bien-être et performance.
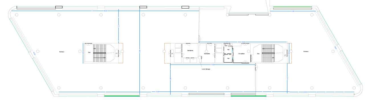
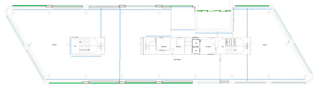
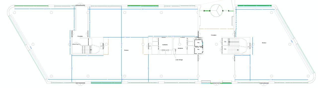
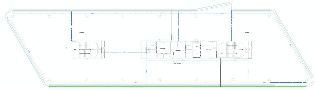
3 bâtiments indépendants forment ce programme et sont conçus de manière similaire, offrant des plateaux lumineux, fonctionnels et flexibles à partir de 345 m². Le capacitaire est de 1 poste/10 m². Les plateaux sont conçus autour d'un noyau central regroupant les sanitaires, les circulations verticales et les locaux techniques.
Chaque bâtiment bénéficie de son propre parking en sous-sol et de stationnements extérieurs dédiés, le tout avec un excellent ratio d'une place pour 24 m².
Répartition des parkings par bâtiment :
HUB A: 144 intérieurs et 82 extérieurs
HUB B : 144 intérieurs et 70 extérieurs
HUB C: 122 intérieurs et 77 extérieurs.
Les bâtiments bénéficient d'une classification ERP 5ème catégorie type W et d'une certification Breeam in use « GOOD ».
ACCESSIBILITE
- Accès aérien : au pied de l'aéroport international de Toulouse Blagnac, doté d'un système de navettes reliant le centre-ville de Toulouse.
- Accès voiture : Rocade Ouest « Fil d'Ariane » desservant la zone aéroportuaire, le centre-ville, directement connectée aux autoroutes A62 Bordeaux / Paris, A61 Montpellier / Barcelone, A68 Albi / Rodez et A64 Tarbes / Pau.
- Accès transports en commun : ligne de bus n°25 reliant Blagnac / Aussonne / Toulouse centre-ville à 5 min à pied et à terme le tramway T1 "Aéropot Blagnac" via le métro ligne C "Blagnac".
PRESTATIONS TECHNIQUES
Façade Béton en pierre marbrière et granit polis
Faux-plancher technique
Faux-plafonds
Chauffage réversible et climatisation par ventilo convecteur en allège
Eclairage LED encastrés
Gestion technique centralisé permettant le paramétrage des consignes utilisateurs pour la Climatisation et le chauffage, les stores électriques et le contrôle d'accès global (portail, bâtiment et paliers)
Sécurité : contrôle d'accès, télésurveillance et détection incendie
SERVICES
Les halls : plus qu'un simple lieu d'attente
Chaque hall est conçu comme un véritable espace de vie, alliant salons lounges et tables collaboratives. Ils offrent un cadre élégant et confortable, propice aux échanges informels et au travail en dehors du bureau, grâce à une décoration soignée et des matériaux de qualité.
Le Work Café : allier travail et convivialité
Situé au coeur des bureaux, le Work Café est un espace hybride où il est possible de déjeuner, travailler et se détendre. Il propose diverses ambiances (banquettes, lounges, comptoir connecté) et un comptoir services centralisant plusieurs prestations (café, fontaine, etc.). L'innovation des frigos connectés Foodles révolutionne la pause déjeuner, rendant l'expérience plus fluide et moderne.
Ces espaces redéfinissent le lieu de travail en intégrant confort, flexibilité et innovation pour une expérience professionnelle enrichie.
GALAXIA intègre dans sa conception une dimension environnementale à la performance énergétique optimale pour une maîtrise des coûts d'exploitation :
Pompes à chaleur individuelles programmables
Doubles baies équipées de triple vitrage avec stores motorisés incorporés
Gestion Technique Centralisé (GTC) - Pilotage à distance des paramètres
En savoir plus : www.galaxia-bureaux.fr
Services & prestations
Aménagements
-
Accès Pers. Mobilité Réduite : Ascenseur
-
Aménagement des bureaux : Espaces Ouverts
-
Sanitaires : Parties communes
Equipements
-
Ascenseurs
-
Distribution chauffage : Réversible
-
Distribution climatisation : Ventilo convecteur en allège Blocs autonomes
-
Douche
-
Eclairage Bureaux : Luminaires encastrés
-
Faux plafond : Dal. fibres minéral.
-
Faux plancher
-
Gestion technique centralisée
-
Production climatisation : Autonome
-
Sol bureaux : Moquette
Prestations de service
-
Cafétéria : Work Café et frigos connectés
-
Sécurité : Contrôle d'accès et télésurveillance
Extérieurs
-
Terrasses - jardins
Normes, Certifications et Labels
-
Catégorie ERP : 5 type W
-
Certification : BREEAM In Use
Type / Etat du bâtiment
-
Etat des locaux : Rénové
Informations complémentaires
-
Stores intégrés
-
Site clos
-
Bornes de recharge pour véhicules électriques










