




37 Rue Traversière
92100 Boulogne-Billancourt
130 m²
425 €
HT/HC/m²/an
Disponibilité : Immédiate

Gersende MAGAND
Description
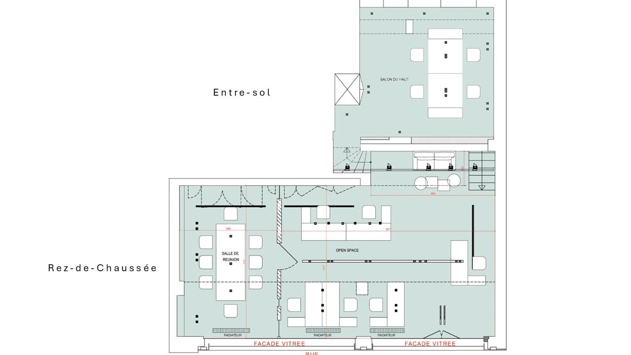
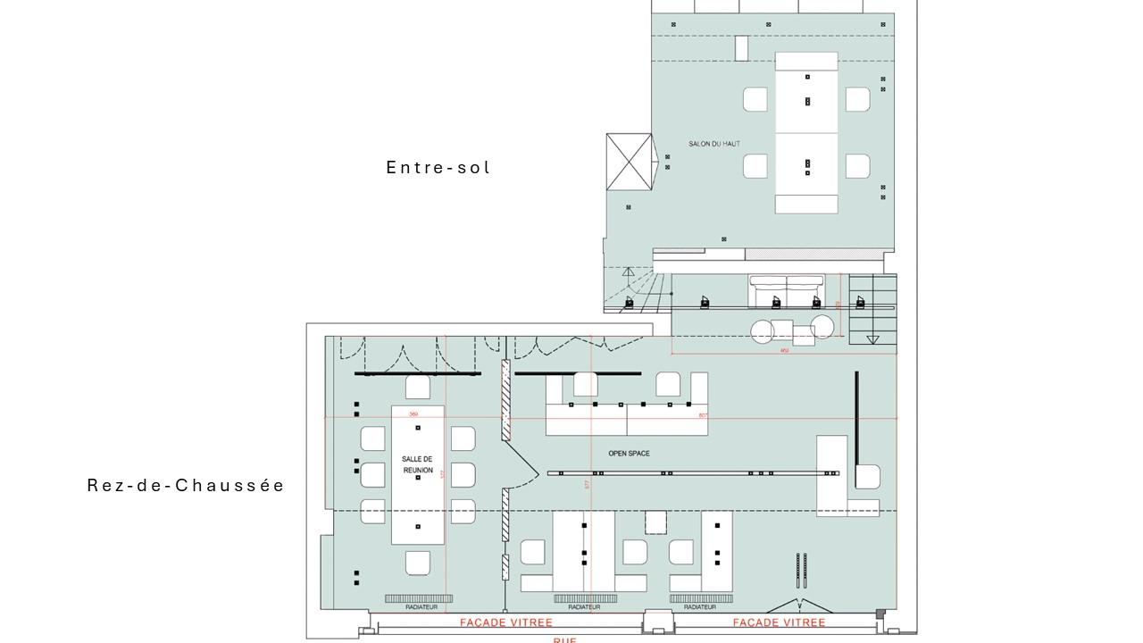
Bien exceptionnel et atypique refait à neuf, très grande vitrine de 11m
>> 37 rue Traversière
Magnifique local de 130m² réparti sur 3 étages. Il a été entièrement refait par un architecte avec de beaux matériaux / luminaires.
Il bénéficie d'une entrée indépendante avec une très grande vitrine et d'une seconde entrée dans le hall de l'immeuble.
Très belle hauteur sous plafond.
Kitchenette
Beaucoup de rangements
Moulures
Possibilité de parking
Unique à boulogne, magnifique surface de 130m² bénéficiant d'une très belle vitrine avec une entrée indépendante et une seconde dans le hall. Vitrophanie possible sur la vitrine.
Idéal pour un show room.
Espaces fermés et ouverts, beaucoup de rangements.
Très belle hauteur sous plafond
Kitchenette
Possibilité de parking
Services & prestations
Aménagements
-
Sanitaires
Equipements
-
Type de chauffage : Collectif
Hauteurs
-
Hauteur libre : 2,80 mètre(s)
Extérieurs
-
Linéaire de façade : 11,00 mètre(s)
Structure du bâtiment
-
Murs : Béton
Type / Etat du bâtiment
-
Etat de l'immeuble : Etat d'usage










