




63 bis Avenue Édouard Vaillant
92100 Boulogne-Billancourt
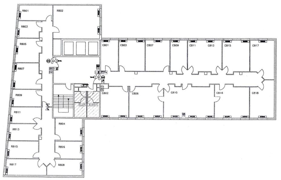
5 110 m²
Divisible dès 600 m²
250 €
HT/HC/m²/an
Disponibilité : Immédiate

Marie CHARRA
Description
Une visibilité exceptionnelle à Boulogne !
Situé sur un axe majeur de Boulogne-Billancourt reliant la Porte de Saint-Cloud au Pont de Sèvres, le BLACKSTAR jouit d’une visibilité exceptionnelle dans un environnement économique particulièrement attractif. Cette situation, au cœur de Boulogne, lui permet de profiter de tous les avantages et infrastructures d’un centre-ville dynamique. Surfaces proposées en bail de courte durée et bénéficiant d'aménagements de qualité.
Immeuble de bureaux en excellent état, le BlackStar propose un ensemble cohérent et fonctionnel de 5.110 m2 en R+8. Son architecture de qualité et ses façades verrières, animées par des jeux de volumes, en font un immeuble remarquable sur l'avenue Edouard Vaillant, axe routier très fréquenté et à proximité immédiate du métro.
La dernière rénovation lourde du bâtiment souligne le confort et la performance de l'opération pour offrir à son / ses futur(s) occupant(s) une occupation paisible de courte durée.
EN BREF
Immeuble de bureaux indépendant Code du Travail
Rez-de-chaussée + 8 étages,
Etage courant de 630 m²,
105 emplacements de parkings au R-2
(privatif avec contrôle d'accès)
6 emplacements protégés visiteurs .
Services & prestations
Equipements
-
Gestion technique centralisée
Prestations de service
-
Sécurité : Contrôle d'accès
Type / Etat du bâtiment
-
Etat des locaux : Etat d'usage
-
Immeuble indépendant










