Image

Image

Image

Image

Image

Référence : OLBUR2421721
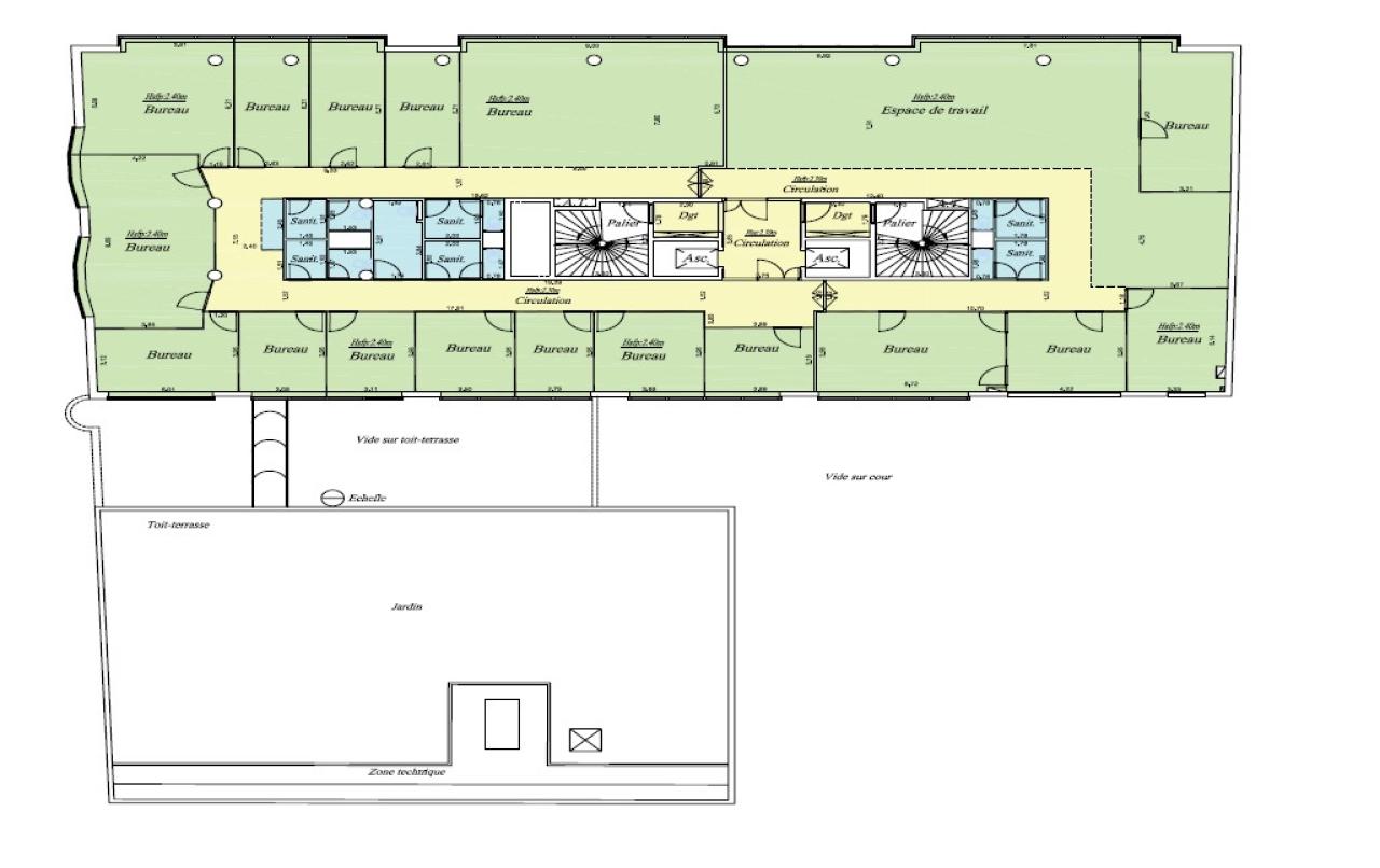
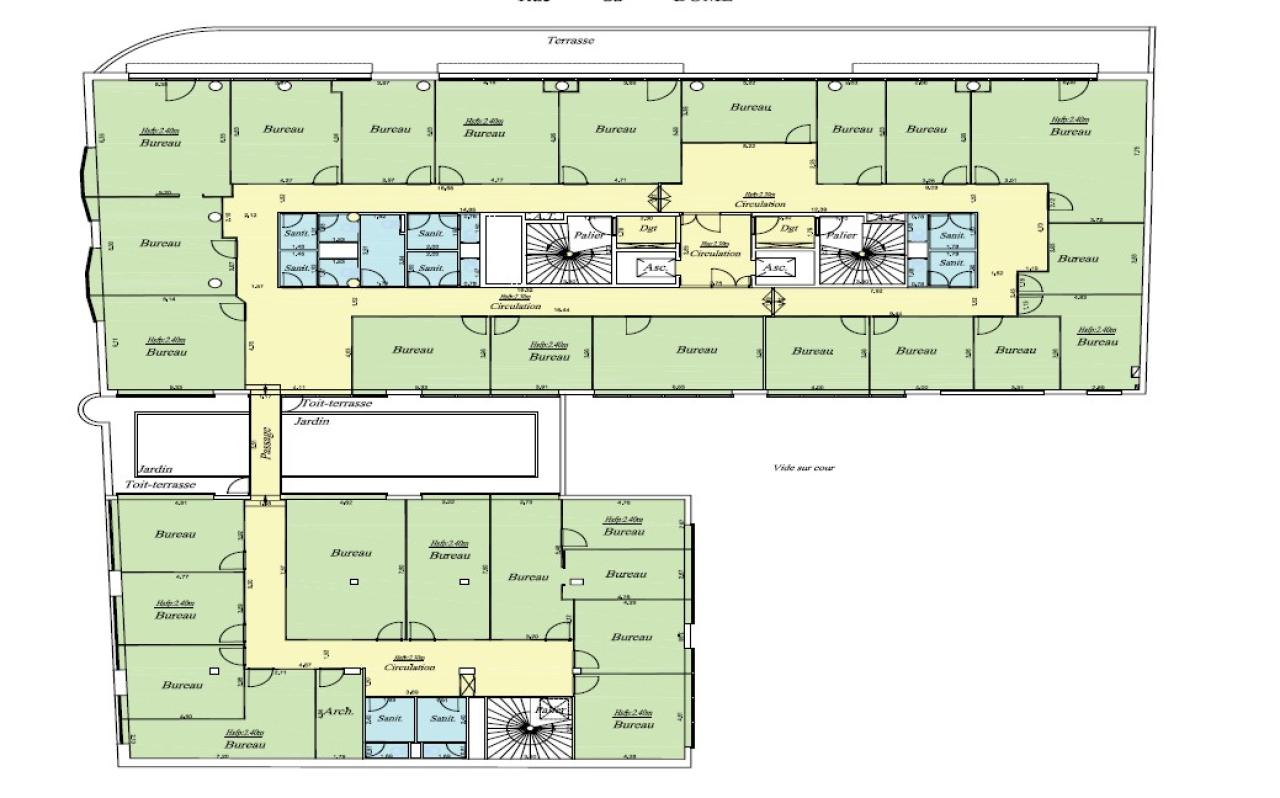
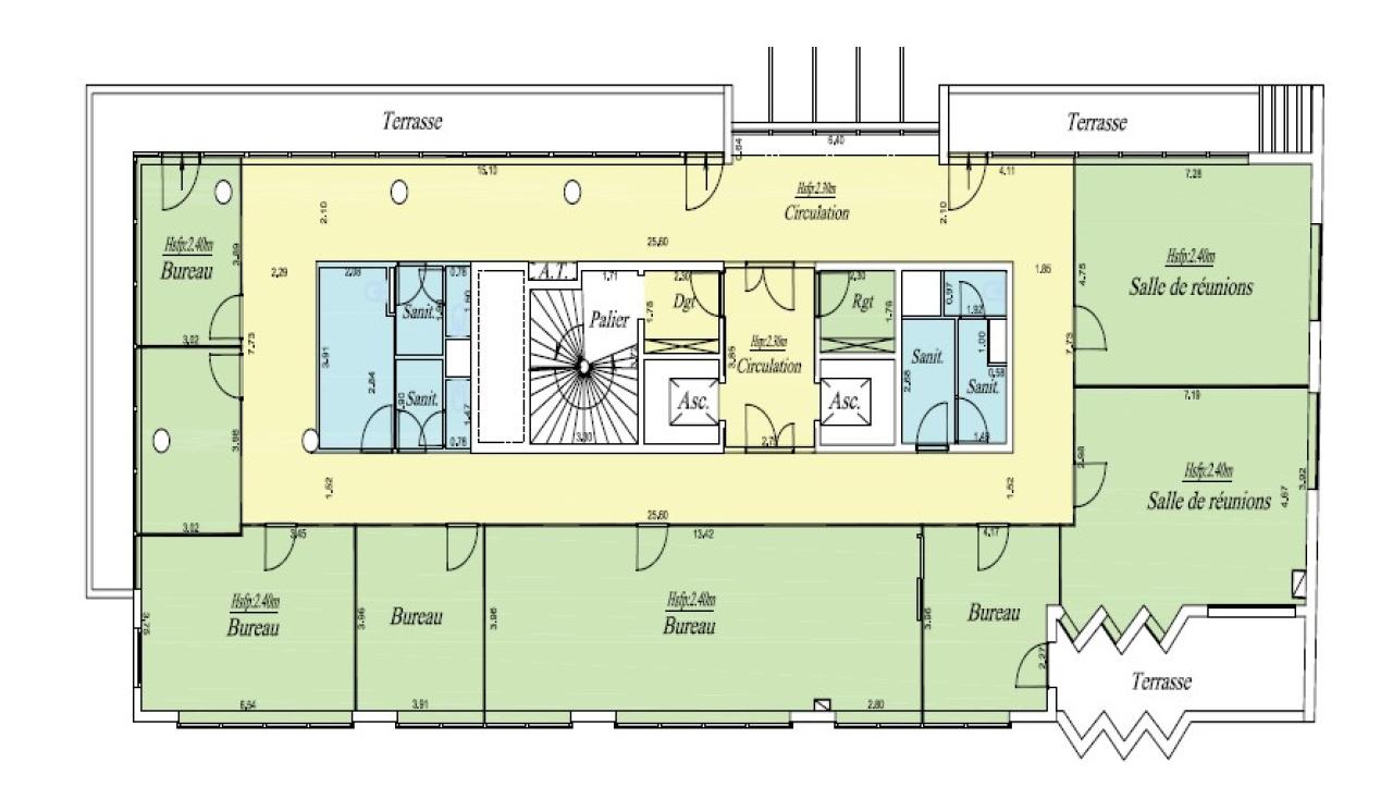
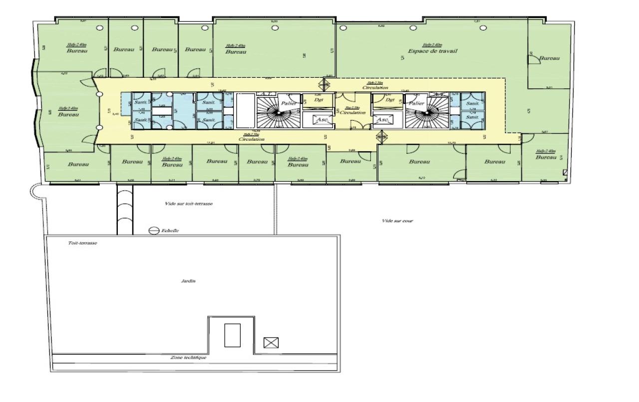
Location Bureau 3 434 m²
92100 Boulogne-Billancourt
3 434 m²
Divisible dès 330 m²
300 €
HT/HC/m²/an
Disponibilité : Immédiate
Référence : OLBUR2421721

Melanie COHEN
Description
Services & prestations
Aménagements
-
Accueil
Equipements
-
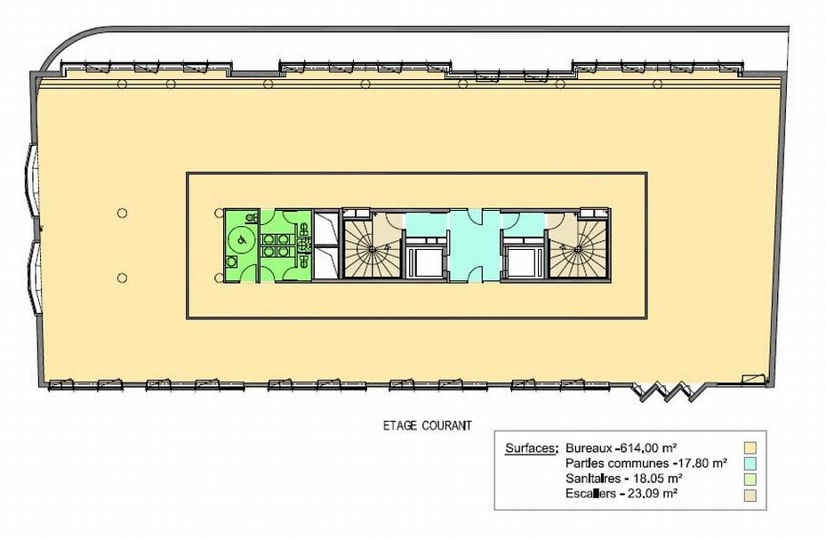
Ascenseurs : 2
-
Climatisation : Réversible par caissette
-
Faux plafond
Prestations de service
-
Sécurité : Contrôle d'accès Vidéosurveillance, digicode
Extérieurs
-
Terrasses - jardins : Terrasse privative au R+7
Informations complémentaires
-
Hôtesse d'accueil
-
VMC
-
Double entrée










