




62 Bis Rue des Peupliers
92100 Boulogne-Billancourt
1 372 m²
14 500 000 €
HT/HD
Disponibilité : Nous consulter

Jesse CASSUTO
Description
BUREAUX A VENDRE
BNP Paribas Real Estate vous propose d'acquérir un immeuble indépendant neuf situé à proximité de la Porte de Saint-Cloud.
Immeuble neuf entièrement restructuré avec rénovation de la façade, surélévation d'un étage et création de terrasses et rooftop.
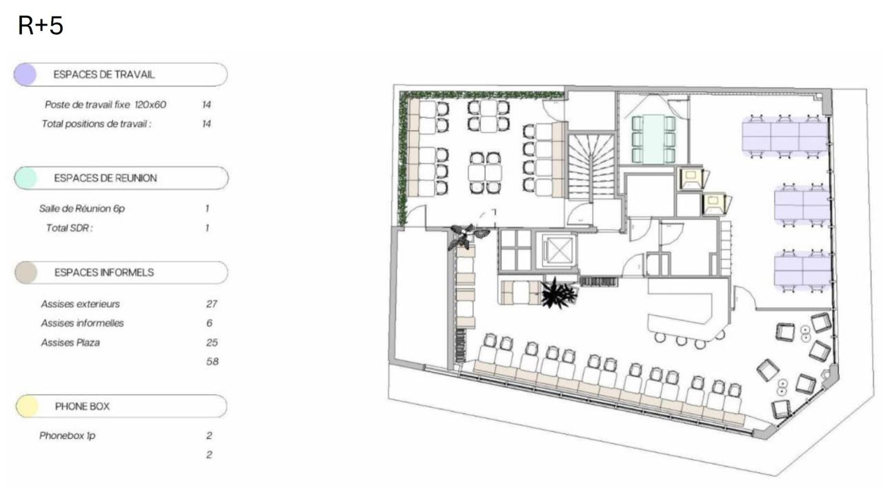
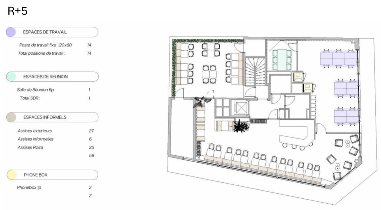
Surface de plancher totale d'environ 1 370 m² agrées d'environ 200 m² de terrasse végétalisée aux 4ème et 5ème étage et d'un rooftop.
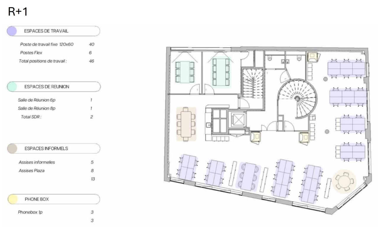
Capacitaire de 220 personnes.
ERP catégorie 5 aux rez-de-chaussée et 1er étage.
Douze emplacements de parking, des espaces motos et un local vélos.
L'immeuble dispose d'une bonne accessibilité à seulement 4 minutes à pied du métro Porte de Saint-Cloud, à 13 minutes à pied du RER et tramway Issy - Val de Seine et à 6 minutes en voiture de la Porte de Saint-Cloud.
Services & prestations
Aménagements
-
Accès Pers. Mobilité Réduite
-
Effectif théorique : 220 personne(s)
-
Sanitaires
Equipements
-
Ascenseurs
Prestations de service
-
Parking : 10 Places Voiture, Oui, Oui
Extérieurs
-
Terrasses - jardins : Roof-Top
Normes, Certifications et Labels
-
Catégorie ERP : 5 RDC et 1er étage
-
Certification : HQE
Type / Etat du bâtiment
-
Etat des locaux : Neuf
-
Immeuble indépendant
Informations complémentaires
-
Grand balcon filant au 4eme étage










