




DISSY
14 Rue Rouget de Lisle
92130 Issy-les-Moulineaux
16 455 m²
560 €
HT/HC/m²/an
Disponibilité : T1 2027

Alix GATAULT-KOLB
Description
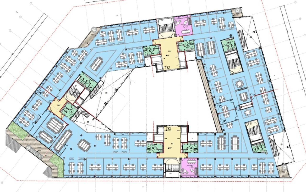
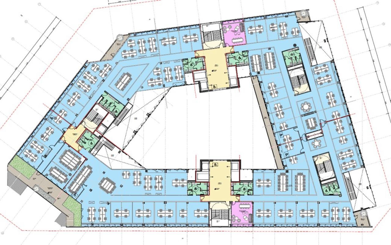
DISSY – Un immeuble de bureaux nouvelle génération à Issy-les-Moulineaux
Situé au 16-20 rue Rouget de Lisle, DISSY propose près de 18 000 m² de bureaux à louer, disponibles à partir de mai 2027, au cœur d’un secteur dynamique et connecté.
Un projet architectural ambitieux par Cro&Co Architecture.
DISSY - Pensé comme un véritable lieu de vie, l'immeuble bénéficie :
- De façades contemporaines différenciantes
- De zones en double hauteur offrant une excellente hauteur sous plafond
- D'une transparence renforcée du rez-de-chaussée avec une ouverture sur la ville
- D'un attique créé pour optimiser la surface utile et le capacitaire du bâtiment
Des espaces extérieurs exceptionnels avec plus de 4 000 m² d'espaces paysagers :
- Terrasses accessibles
- Patio intérieur de 700 m²
- Rooftop avec vues dégagées
Des plateaux flexibles et divisibles
Les plateaux de bureaux sont conçus pour s'adapter à tous les usages :
- Divisibilité optimale
- Flexibilité d'aménagement
- Ratio capacitaire performant : 1 poste / 8,5 m²
- Faux plancher technique pour une parfaite adaptabilité IT
Un immeuble responsable
Le projet vise une empreinte carbone réduite et s'inscrit dans une démarche de certifications environnementales exigeantes, répondant aux nouveaux standards du tertiaire durable.
Une offre de services premium
- Accueil & conciergerie
- Business center
- Espaces de coworking et salles de réunion
- Espaces bien-être
- Offre de restauration complète (RDC, R+1, rooftop)
Une vraie vie de quartier
Deux commerces en pied d'immeuble viennent renforcer l'attractivité du site et l'ancrage urbain.
Un actif pensé pour le confort des utilisateurs, la performance environnementale et la création de valeur long terme.
Services & prestations
Aménagements
-
Auditorium
-
Complexe Salle de réunion
-
Espace bien-être
Prestations de service
-
Conciergerie
-
Restauration
Type / Etat du bâtiment
-
Etat de l'immeuble : Restructuré avec PC
-
Etat des locaux : Restructuré avec PC
-
Immeuble indépendant
Informations complémentaires
-
Casiers connectés










