




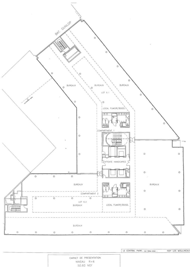
Location Bureau 1 840 m²
92130 Issy-les-Moulineaux
1 840 m²
Divisible dès 788 m²
410 €
HT/HC/m²/an
Disponibilité : Immédiate

Olivier FALLIBOIS
Description
Services & prestations
Aménagements
-
Accueil : Hôtesses
Equipements
-
Ascenseurs : Groupe de 3 ascenseurs de 800 kg et 1 ascenseur de 1 600 kg
-
Faux plancher : Technique
-
Source chauffage : CPCU
Hauteurs
-
Hauteur sous-plafond : 2,70
Prestations de service
-
Capacité de restauration : Restaurant Inter-Entreprises
-
Sécurité : Contrôle d'accès Détection intrusion, vidéosurveillance
Type / Etat du bâtiment
-
Etat de l'immeuble : Seconde main
-
Etat des locaux : Rénové
Informations complémentaires
-
Deux groupes frigorifiques, Vitrage tout hauteur
-
Conciergerie, Réparations des moquettes, peinture et faux-plafond
-
Capacitaire : 60 personnes, Climatisation par ventilo convecteurs 2 tubes / 2 fils en faux plafond










