




31-39 Rue du Gouverneur Général Éboué
92130 Issy-les-Moulineaux
1 750 m²
Divisible dès 582 m²
à partir de 3 500 000 €
HT/HD
Disponibilité : Immédiate

Thomas BUISSON-TOURNIER
Description
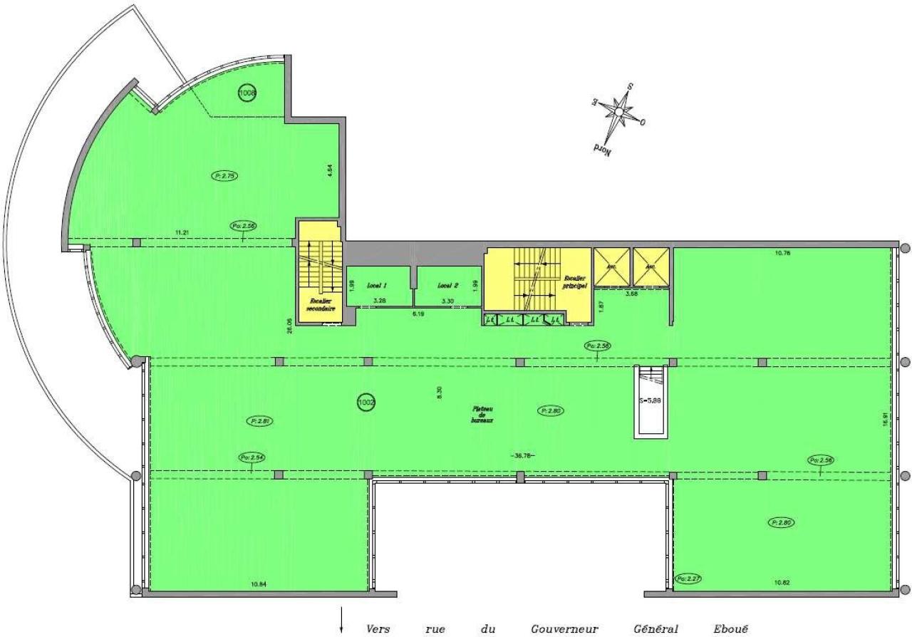
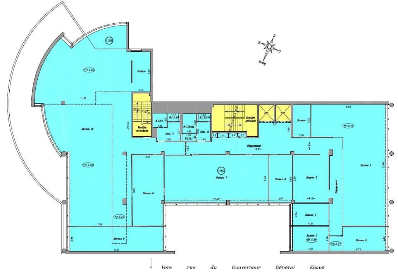
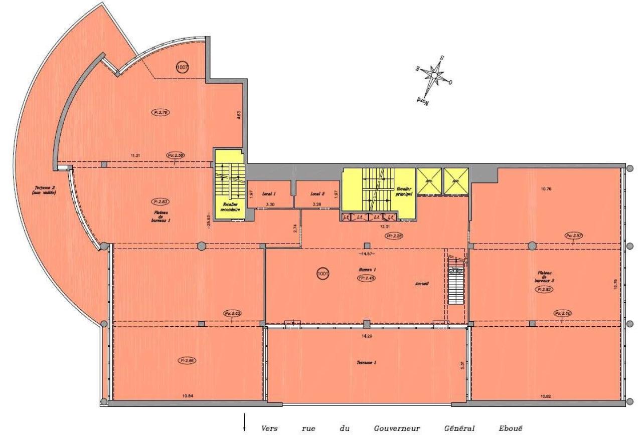
Au sein de l'ensemble immobilier Le Diderot, BNP Paribas Real Estate vous propose à la vente en copropriété 3 plateaux de bureaux rationnels et lumineux, dont la configuration permet un aménagement modulable et varié des espaces de travail.
Les 2e et 3e étages fonctionnent en duplex. Le 2e étage bénéficie d'une belle terrasse aménagée et accessible. Les locaux, climatisés, viennent d'être partiellement rénovés, ainsi que le hall d'accueil. 39 places de parking (30 simples et 9 doubles) complètent ces bureaux.
Possibilité de division :
Duplex 2e et 3e étages avec 26 parkings au prix de 8 000 000 HD (parkings inclus)
4e étage avec 13 parkings au prix de 3 500 000 HD (parkings inclus).
Une localisation privilégiée
A proximité de la place de l'Hôtel de Ville, concentrant de nombreux commerces, Le Diderot est un immeuble de bureaux au sein d'un ensemble comprenant l'Auditorium et la Médiathèque d'Issy-les-Moulineaux. Au sein de la Boucle Sud, il s'inscrit dans un environnement tertiaire établi plébiscité par de nombreux utilisateurs de renom.
Une desserte diversifiée
Le Diderot bénéficie d'une connexion efficace et rapide vers Paris, La Défense et le Grand Paris :
Métro 12 à environ 400 m / Tramway T3a & RER C à environ 650 m / 6 lignes de bus dans un périmètre proche de l'immeuble / Boulevard périphérique - Porte d'Issy à quelques minutes offrant ainsi un accès rapide au réseau autoroutier (A13 et A14 à l'ouest - A6 et A4 à l'est) / Proximité des quais de Seine permettant de rejoindre rapidement Boulogne, La Défense et l'ouest francilien.
Une accessibilité renforcée d'ici 2026 avec la mise en service de la ligne de métro 15 Sud. Issy sera desservie par 2 gares : Issy RER et Fort d'Issy-Vanves-Clamat (interconnectée avec le Transilien N).
Le Diderot : une adresse identifiée
L'immeuble de bureaux présente un hall d'entrée spacieux, récemment rénové.
Configurés en U autour d'un noyau central, les plateaux offrent des espaces de travail rationnels et lumineux, avec peu de contraintes porteuses. Cette circulation simple permet un agencement varié des espaces au gré des besoins de l'utilisateur.
Services & prestations
Aménagements
-
Hall d'accueil
Equipements
-
Ascenseurs : 2
-
Climatisation : Réversible Double flux rafraîchi
-
Faux plafond : Dal. fibres minéral.
Prestations de service
-
Sécurité : Contrôle d'accès
Extérieurs
-
Terrasses - jardins : Terrasse accessible et aménagée au R+2
Type / Etat du bâtiment
-
Etat de l'immeuble : Seconde main
-
Etat des locaux : Etat d'usage, Très bon état
-
Immeuble copropriété










