




Location Bureau 1 815 m²
34070 Montpellier
1 815 m²
Divisible dès 172 m²
à partir de 171 €
HT/HC/m²/an
Disponibilité : Immédiate

Caroline DE BOISGELIN-ABECASSIS
Description
MONTPELLIER CENTRE - CITÉ CRÉATIVE - MUSÉE EAI - BUREAUX A LOUER
A louer : en plein cœur de la Cité Créative, bureaux divisibles à partir de 171.5 m² au sein du programme de réaménagement urbain de l'ancienne Ecole d'Application d'infanterie.
Plateaux réaménagés avec extension moderne.
Situé aux abords du Parc Montcalm, au coeur de la Cité Créative, ce projet porté par la métropole de Montpellier vise à réhabiliter et à créer une extension de l'ancien musée de l'École d'Application d'Infanterie (EAI).
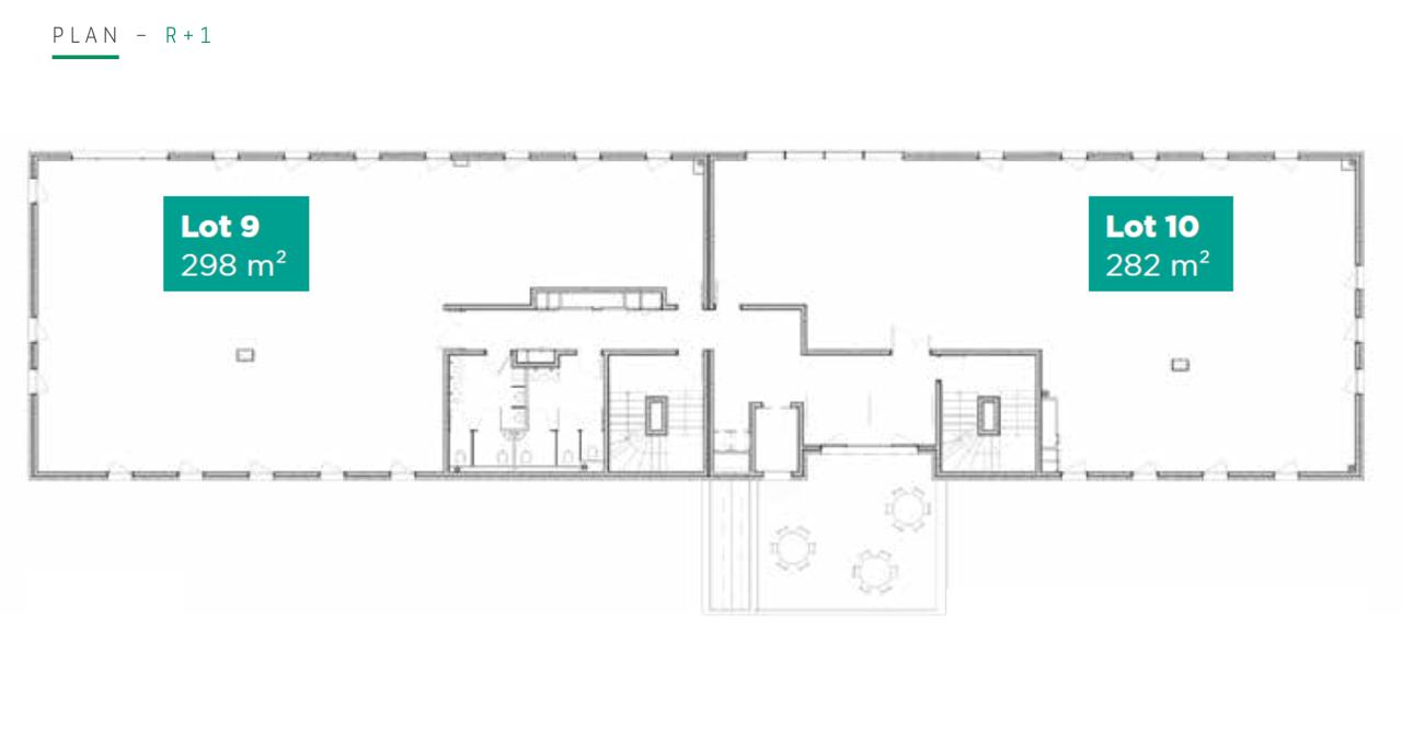
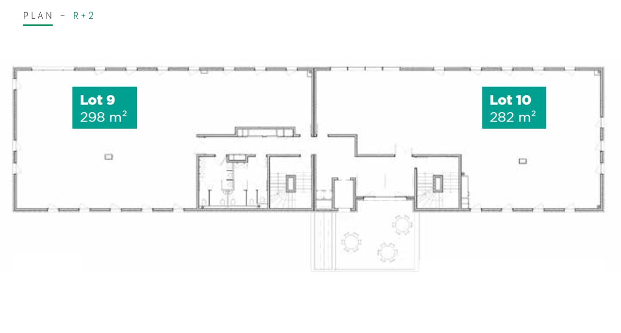
Cet ensemble de bureaux à louer, divisibles en 11 lots de 172 m² à 298 m² modulables possède un grand hall en double hauteur traversant, des espaces de détentes, des douches et des sanitaires, une salle de réunion partagée et des espaces de bureaux ouverts.
Les utilisateurs pourront bénéficier de 100 m² de terrasses extérieures, d'un jardin arboré, d'un local à vélos extérieurs sécurisés de 50 m², de 17 places de parking en sous-sol et de 20 places supplémentaires au sein de l'ESMA.
L'ambition a été de conserver « l'ancien musée EAI » en R+1 et de construire une extension en R+3 qui donne un esprit d'architecture innovante tout en conservant l'histoire du lieu.
Dans un but de construction durable, l'immeuble est labellisé Breeam Very Good et BDO Bronze.
Disponibilité immédiate
GAPD : 6 mois
LE SECTEUR DE LA CITÉ CRÉATIVE
Nouveau quartier mixte au centre de Montpellier, la Cité Créative allie logements, commerces, bureaux, équipements publics, ainsi que le coeur de l'industries de la culture et de la créativité.
Afin de donner une nouvelle vie au site, l'ambition est de créer un quartier urbain où il fait bon vivre, travailler, étudier, faire du sport à proximité immédiate du centre-ville. La future ligne 5 de tramway desservira ce nouveau quartier. Ce tiers-lieu innovant permettra de créer de nouveaux espaces de rencontre et de création.
Ce projet de 40 hectares représente 23 hectares de Parc Paysager, 35 000 m² d'activités économiques dédiées au ICC et de commerces de proximité.
ACCESSIBILITÉS :
Tramway Futur Ligne 5 en 2025 - Arrêt Niki de Saint Phalle
Autoroute A9 à 7 minutes
Gare Sud de France à 12 minutes
Aéroport Montpellier Méditerranée à 16 minutes
Services & prestations
Aménagements
-
Aménagement des bureaux : Espaces Ouverts
-
Hall d'accueil : Double hauteur, traversant le bâtiment
-
Sanitaires : 2 par niveau et avec un bloc PMR en rdc
Equipements
-
Climatisation : Réseau Urbain - Bloc climatisation indépendant sur chaque lot
-
Câblage informatique : Catégorie 6A
-
Eclairage Bureaux : Luminaires suspendus
Prestations de service
-
Parking : 20 Parkings en sus au sein de l'Esma
-
Sécurité : Contrôle d'accès
Extérieurs
-
Terrasses - jardins
Normes, Certifications et Labels
-
Catégorie ERP : 5
-
Certification : BREEAM
-
Label cible : BDO Bronze
Type / Etat du bâtiment
-
Etat de l'immeuble : Restructuré avec PC
-
Immeuble indépendant
Informations complémentaires
-
Espace détente, Local fibré avec baie informatique de réception sur chaque lot
-
Esprit Architectural moderne et innovant, Fresque Ganaêlle MAURY
-
590 m² de parties communes (casier, douche etc), Extension moderne intégrée dans ancien musée infanterie










