




Location Bureau 345 m²
34000 Montpellier
345 m²
170 €
HT/HC/m²/an
Disponibilité : 01/06/2026

Helene DEHORS
Description
MONTPELLIER CENTRE - LES ARCEAUX - VILLA MARCEL
Situé dans le centre-ville historique de Montpellier, dans le quartier des Arceaux, nous vous proposons à la location, un immeuble indépendant de 265 m² de bureaux en R+2 et de 80 m² de sous-sol.
Vous disposerez de l'usage exclusif d'un jardin arboré de 80 m² et de 5 emplacements de parkings en sous sol sur ce site clos et sécurisé. L'ensemble de cet actif est livré avec une rénovation de qualité.
Les bureaux sont principalement configurés en open space au rez-de-chaussée et en bureaux cloisonnés à l'étage. Ils disposent de prestations qualitatives : climatisation réversible, sols avec tomettes et carreaux de ciment d'origines, cheminées et moulures.
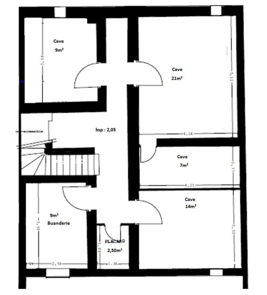
Pour compléter ce bien d'exception, vous bénéficierez d'un sous sol aménageable en espace bureaux, salle de réunion grâce à son équipement en câblage informatique ou en espace détente et locaux d'archives.
PRESTATION
Alarme
Visiophone
Cuisine équipée
Buanderie
4 caves en sous sol
Douches et Salle de bain
LE SECTEUR
Le centre-ville de Montpellier est le quartier historique. Surnommé « Ecusson », c'est un quartier mixte entièrement piétons et plein de charme. Des lieux emblématiques tels que la Place de la Comédie, l'église Saint Roch ainsi que les nombreux commerces et restaurants en font un cadre de travail très agréable. L'Ecusson est un emplacement stratégique du fait de sa proximité avec la Gare Saint Roch et ses 4 lignes de tramway. Ce quartier bénéficie également de l'opération de renouvellement urbain « Nouveau Saint Roch », autour de la gare qui mêlera centre d'affaires, commerces et logements de standing.
Le centre-ville concentre bon nombre d'avocats et de médecins avec le palais de justice et la faculté de médecine qui est la plus ancienne du monde.
ACCESSIBILITES :
Tramway T1 à 9 min - Arrêt « Albert 1er »
Tramway T4 à 10 min - Arrêt « Peyrou »
- Bus n°6 et n°10
- Gare TGV Saint Roch à 10 minutes à pied
- Desserte routière A9 et A 709 à 10 minutes
- Aéroport Montpellier Méditérannée à 20 minutes
- Gare Sud de France à 22 minutes
Services & prestations
Aménagements
-
Sanitaires
Equipements
-
Climatisation : Réversible
-
Câblage informatique : Cablage en RJ dans chaque bureau et dans les caves
-
Douche
-
Sol bureaux : Carrelage
Prestations de service
-
Parking : 5 parkings en sous sol
-
Sécurité : Alarme et visiophone
Extérieurs
-
Terrasses - jardins : Jardin en jouissance exclusif
Type / Etat du bâtiment
-
Immeuble indépendant
Informations complémentaires
-
4 caves en sous sol, Cuisine équipée
-
Menuiseries entièrement refaites










