




Vente Bureau 1 032 m²
34070 Montpellier
1 032 m²
1 850 000 €
HT/HD
Disponibilité : 01/01/2027

Caroline DE BOISGELIN-ABECASSIS
Description
MONTPELLIER CENTRE - ESTANOVE - LE TITIEN - A VENDRE - BUREAUX
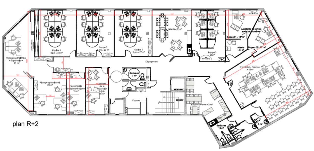
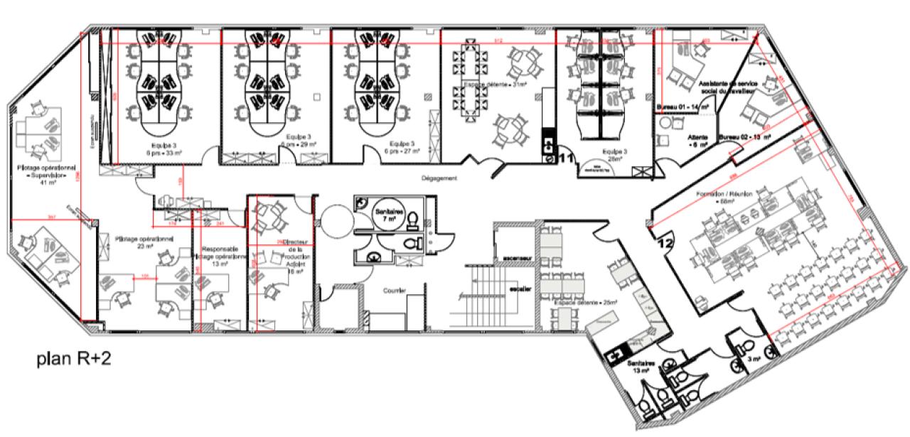
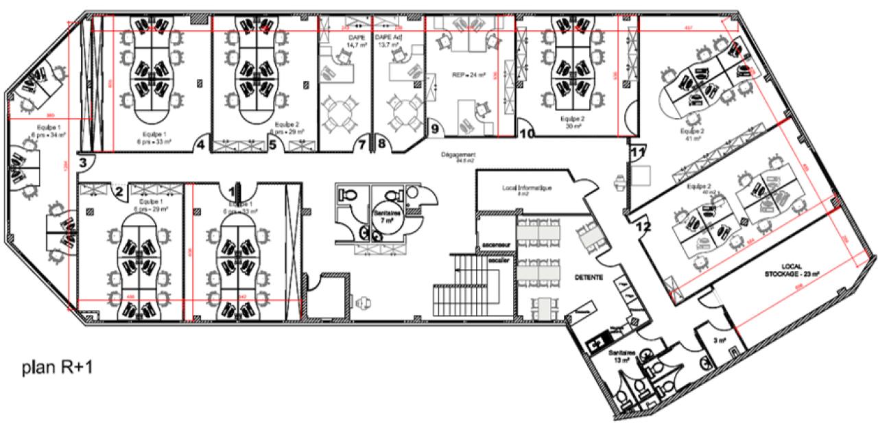
- Hall
- Salles de réunion
- Espace détente
- Local informatique
- Local stockage
- 13 sanitaires dont 1 aux normes PMR
2 lignes de Tramway à 5 minutes à pieds
Ligne 2 et 4 - Arrêt Saint Roch
Nouvelle ligne de tramway ligne 5 - Arrêt Place du 8 mai 1945"
Gare TGV Saint Roch à 6 minutes à pieds
Gare TGV Sud de France à 12 minutes
Autoroutes A9/A709 à 5 minutes
Aéroport Montpellier Méditerranée à 15 minutes
Services & prestations
Aménagements
-
Bureaux cloisonnés : Modulable
Equipements
-
Ascenseurs
-
Climatisation
-
Eclairage Bureaux : Luminaires encastrés
-
Faux plafond
-
Sol bureaux : Dls.thermoplastiques
Prestations de service
-
Cafétéria
-
Parking
Type / Etat du bâtiment
-
Immeuble indépendant
Informations complémentaires
-
Salle serveur, Site clos










