




Location Bureau 2 011 m²
34000 Montpellier
2 011 m²
Divisible dès 57 m²
à partir de 180 €
HT/HC/m²/an
Disponibilité : Immédiate

Caroline DE BOISGELIN-ABECASSIS
Description
MONTPELLIER SUD - BUREAUX / COMMERCES A LOUER - CAMBACÉRÈS - ETIC
À louer, plusieurs lots de bureaux dans l'immeuble neuf ETIC, situé dans le quartier Cambacérès.
Nombreuses dessertes et services à proximité immédiate.
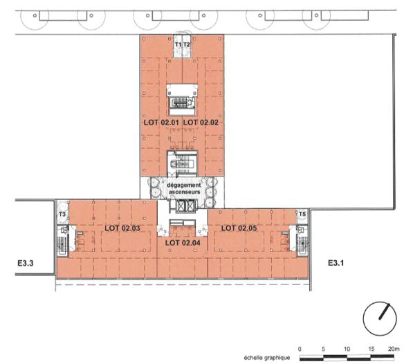
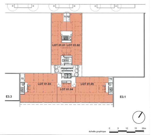
Au sein du programme ETIC, plusieurs lots de bureaux à la location divisibles à partir de 126 m², situés dans le quartier Cambacérès.
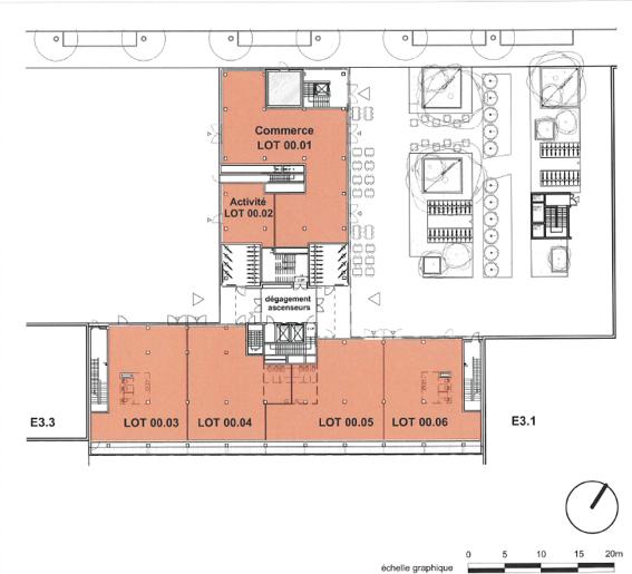
Commerces en pied d'immeuble de 310 m² divisibles à partir de 57 m².
Cet immeuble labellisé Bâtiments Durables Occitanie (BDO) possédera de belles prestations avec des commerces et services en rez-de-chaussée et une terrasse privative par lot.
Les travaux bailleur pour la livraison en open space seront prêts sous délai de 3 mois après la signature bail.
Les commerces seront livrés brut.
PRESTATIONS
Terrasse sur chaque étage
Aménagement des bureaux en espace ouverts / Open Space
Climatisation simple flux froid par le réseau urbain
Plinthes techniques en périphérie
Luminaires encastrés
Sol bureaux à choisir par le preneur
Sanitaires privatifs
LE SECTEUR CAMBACERES
Cambacérès, est un nouveau quartier tertiaire pour des activités de services, sièges d'entreprises, services supports de grandes entreprises, des PME PMI et tout un tissu tertiaire diversifié. Ce quartier en cours de construction autour de la nouvelle gare TGV Sud de France, s'étendra sur environ 80 ha et sera réalisé en plusieurs phases. La première phase développera au total environs 100 000 m² de surface dédiées au tertiaire et à des établissements d'enseignements supérieurs.
Vous souhaitez louer des bureaux au sein de ce nouveau quartier ? Contactez nous pour obtenir plus d'informations sur cette immeuble.
Disponibilité : Immédiate
ACCESSIBILITÉ
Gare TGV Sud de France au pied de l'immeuble
Aéroport de Montpellier à 5 minutes
Autoroute A9 à 5 minutes
Futures dessertes de la ligne 1 de tramway
Services & prestations
Aménagements
-
Accès Pers. Mobilité Réduite
-
Aménagement des bureaux : Espaces Ouverts
-
Hall d'accueil : Aménagés par lot
-
Sanitaires : Privatif(s)
Equipements
-
Ascenseurs : 2
-
Climatisation : Simple flux froid
-
Eclairage Bureaux : Luminaires encastrés
-
Faux plafond
-
Plinthes techniques périphériques
-
Production climatisation : Réseau urbain
-
Sol bureaux : A choisir par le preneur
Prestations de service
-
Cafétéria : A chaque palier d'étage, espace tisanerie commun
-
Parking
-
Sécurité
Type / Etat du bâtiment
-
Etat de l'immeuble : Neuf
-
Immeuble indépendant










