




Location Bureau 365 m²
34000 Montpellier
365 m²
145 €
HT/HC/m²/an
Disponibilité : Immédiate

Marie Laure ROLANDO
Description
MONTPELLIER EST - À LOUER - PARC EURÊKA - OLYMPIE
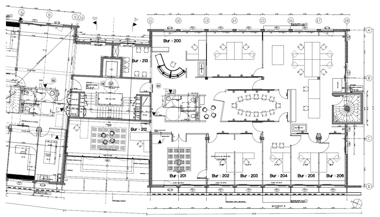
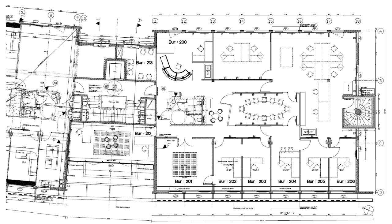
Bureaux en R+2 au sein l'immeuble Olympie.
Bureaux entièrement aménagés avec des cloisons vitrées toutes hauteurs, prestations qualitatives et parties communes soignées.
Parkings extérieurs.
MONTPELLIER EST - PARC EURÊKA
Découvrez ces bureaux à la location présentant de belles prestations :
- Accueil
- Ascenseur
- Bureaux en cloisons vitrées
- Salle de réunion
- Sanitaires privatifs et Sanitaires en parties communes
- Luminaires encastrés
- Faux plafond
- Plinthes techniques périphériques
- Baie de brassage
- Accès PMR
- 8 places de parkings extérieurs inclus
SERVICES :
- Crèches au pied de l'immeuble
- Restauration à proximité
Situé à l'Est de Montpellier, à cheval sur la commune de Castelnau-Le-Lez, le Parc Eurêka bénéficie d'une image innovante et internationale. Sa proximité avec le parc du Millénaire offre un large panel d'infrastructures et de services à proximité.
Eurêka est un parc très dynamique économiquement et architecturalement. Les immeubles qui s'y trouvent sont en très grand nombre signés par des architectes de renom.
ACCESSIBILITÉ :
Autoroute A709 à 5 minutes
Bus lignes 9 et 51 - Arrêt "Eurêka" à 5 minutes à pied
Tramway ligne 1 - Arrêt Millénaire à 20 minutes à pied
Gare de Montpellier Sud de France à 10 minutes
Gare de Montpellier Saint Roch à 11 minutes
Aéroport Montpellier Méditerranée à 10 minutes
Services & prestations
Aménagements
-
Accueil
-
Accès Pers. Mobilité Réduite
-
Aménagement des bureaux : Cloisonnés
-
Bureaux cloisonnés : 9
-
Sanitaires : Privatifs et en parties communes
Equipements
-
Ascenseurs
-
Climatisation : Réversible
-
Câblage informatique : Fibre très haut débit
-
Distribution climatisation : Autonome
-
Eclairage Bureaux : Luminaires encastrés
-
Faux plafond
-
Plinthes techniques périphériques
-
Sol bureaux : Carrelage / Sol souple
Prestations de service
-
Parking
-
Sécurité : Accès sécurisé 7j/7 24h/24 et interphone
Type / Etat du bâtiment
-
Etat de l'immeuble : Etat d'usage, Seconde main
Informations complémentaires
-
Salle de réunion
-
1 SDR










