




Location Bureau 1 362 m²
35510 Cesson-Sévigné
1 362 m²
Divisible dès 130 m²
175 €
HT/HC/m²/an
Disponibilité : Immédiate

Geoffroy JOSSEAUME
Description
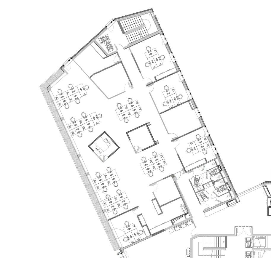
BUREAUX À LOUER - CESSON-SÉVIGNÉ - VIA SILVA - PIED DU MÉTRO
BNP PARIBAS REAL ESTATE vous propose à la location de très beaux bureaux dans un immeuble de standing à Cesson-Sévigné.
Les bureaux sont en excellent état général et peuvent être proposés meublés.
Nous retrouvons principalement des espaces ouverts sur la majorité des surfaces avec quelques bureaux fermés et des petites salles de réunions.
Un cafétéria commune est accessible ainsi qu'une terrasse !
Il y a la possibilité de louer 2 salles de réception d'une capacité de 130 personnes et la seconde de 60 personnes avec un tarif préférentiel pour le locataire.
Le bien bénéficie d'un bon ratio de parkings ainsi qu'un espace vélo.
Environnement:
Dans le secteur ViaSilva, il s'agit d'un projet de développement urbain, situé essentiellement sur la commune de Cesson-Sévigné, au coeur de la métropole rennaise, et en partie sur les communes de Rennes et Thorigné- Fouillard.
De belles enseignes déjà installées sur ce site.
Dessertes:
La zone est desservie par la ligne B du métro
Parc relais de 800 places et gare-bus.
Services & prestations
Aménagements
-
Accueil : Hôtesses
-
Accès Pers. Mobilité Réduite
-
Aménagement des bureaux : Espaces Ouverts
-
Auditorium : 130 Places
-
Bureaux cloisonnés : 5
-
Complexe Salle de réunion
-
Effectif théorique
-
Sanitaires : Parties communes
Equipements
-
Climatisation : Réversible 4 fluxs
-
Câblage informatique
-
Distribution chauffage : Réversible
-
Distribution climatisation : Ventilo convecteur en plafonnier
-
Eclairage Bureaux : Luminaires suspendus
-
Faux plafond
-
Fenêtres : Double vitrage et double peau extérieure
-
Groupe électrogène
-
Onduleur : 4
-
Sol bureaux : Moquette
-
Source chauffage : Electrique
Hauteurs
-
Hauteur sous-plafond
Prestations de service
-
Cafétéria
-
Fitness
-
Parking : Location en sus du loyer
Extérieurs
-
Terrasses - jardins
Type / Etat du bâtiment
-
Etat de l'immeuble : Récent
Informations complémentaires
-
Possibilité bureaux meublés










