




Location Bureau 2 163 m²
35510 Cesson-Sévigné
2 163 m²
183 €
HT/HC/m²/an
Disponibilité : Immédiate

Geoffroy JOSSEAUME
Description
LOCATION DE BUREAUX - RENNES EST
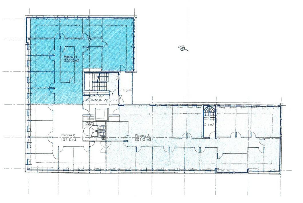
BNPPRE vous propose à la location plusieurs surfaces de bureaux dans un immeuble indépendant récent de très bon standing, d'une surface totale de 2 163 m² :
Bureaux individuels, bureaux pour plusieurs postes de travail, salle de réunion et local détente avec accès terrasse en RDC et R +3.
L'immeuble va faire l'objet d'une rénovation extérieure complète avec création de nouvelles terrasses.
40 parkings extérieurs, 39 stationnements en sous-sol
En Bordure de la route de fougères au nord-est (axe Rennes-Caen) de la métropole, le Parc Tertiaire de Saint Sulpice s'inscrit dans le prolongement d'Atalante Beaulieu et de Via Silva.
Services & prestations
Aménagements
-
Aménagement des bureaux : Cloisonnés/Ouverts
-
Espace bien-être
-
Hall d'accueil : Collectif
-
Sanitaires : 2 Privatif(s) à chaque étage
Equipements
-
Ascenseurs : 1
-
Climatisation : Réversible
-
Câblage informatique
-
Eclairage Bureaux : Luminaires encastrés
-
Sol bureaux : Moquette
-
Source chauffage : Electrique
-
Type de chauffage : Individuel
Prestations de service
-
Sécurité : Contrôle d'accès
Extérieurs
-
Terrasses - jardins : Au RDC et 3e étage
Type / Etat du bâtiment
-
Immeuble indépendant : R+3










