




Location Bureau 219 m²
35510 Cesson-Sévigné
219 m²
160 €
HT/HC/m²/an
Disponibilité : Immédiate

Geoffroy JOSSEAUME
Description
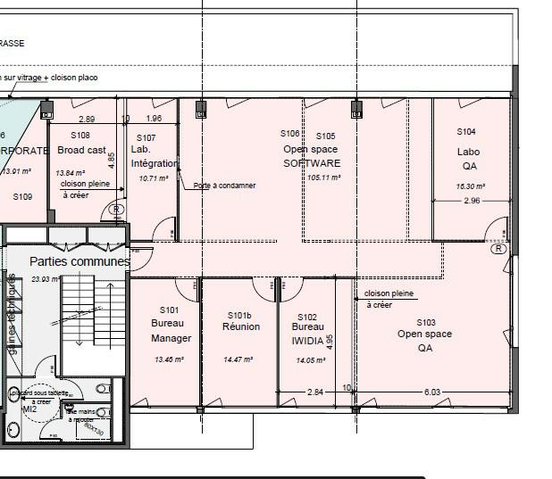
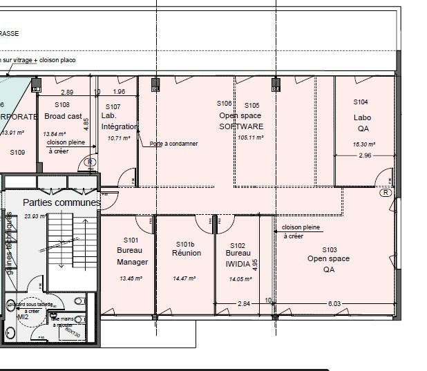
Bureaux en très bon état - à louer - Cesson-Sévigné
Nous vous proposons une location de bureaux en très bon état dans Cesson Sévigné.
Un sein d'un ensemble d'immeubles de bureaux, Bnp Paribas vous présente une belle surface disponible à la location.
L'immeuble est en excellent état et très bien entretenu. Les locaux sont organisés en espace ouvert et quelques bureaux fermés pouvant être décloisonnés.
En très bon état général et lumineux, le local possède la climatisation réversible, le câblage ainsi que la fibre optique.
8 parkings complètent ce bien, inclus dans le loyer.
Services & prestations
Aménagements
-
Bureaux cloisonnés
Equipements
-
Faux plafond : Dal. fibres minéral.
-
Sol bureaux : Moquette
Type / Etat du bâtiment
-
Type d'immeuble : Immeuble construit en 2007
Informations complémentaires
-
Ascenseur, Grands espaces ouverts
-
Possibilités de décloisonner l'espace de bureaux
-
Locaux traversants










