




Location Bureau 133 m²
35000 Rennes
133 m²
135 €
HT/HC/m²/an
Disponibilité : Immédiate

Geoffroy JOSSEAUME
Description
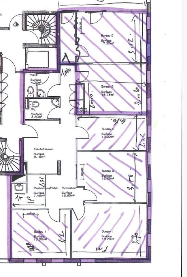
BUREAUX 133 M² À LOUER - CHANTEPIE
Nous vous présentons un plateau de bureaux disponible à la location au sud-est de Rennes dans un ensemble tertiaire.
Le plateau est en bon état général, composé d'un espace d'accueil, de 3 bureaux fermés, d'un grand espace ouvert et d'une cuisine.
5 parkings en extérieur inclus dans le loyer.
La proximité immédiate de la rocade et du centre-ville sont des atouts importants pour l'Ecopole Sud Est et La Poterie, qui compte environ 975 établissements et 13.000 emplois.
De nombreux restaurants, hôtels, salles de remise en forme sont présents.
Plusieurs lignes de bus desservent ce parc mixte.
Ainsi l'Ecopole Sud Est est reconnu et très recherché !
Services & prestations
Aménagements
-
Accès Pers. Mobilité Réduite : Ascenseur
-
Aménagement des bureaux : Cloisonnés
-
Espaces Co-working : A proximité : La ruche
-
Sanitaires : Privatif(s)
Equipements
-
Ascenseurs : 1
-
Climatisation : Réversible
-
Eclairage Bureaux : Luminaires encastrés
-
Plinthes techniques périphériques : RJ45
-
Sol bureaux : Moquette/Parquet
-
Type de chauffage : Individuel
Prestations de service
-
Sécurité : Contrôle d'accès
Type / Etat du bâtiment
-
Etat de l'immeuble : Etat d'usage
-
Etat des locaux : Etat d'usage
-
Type d'immeuble : Centre d'Affaires
Informations complémentaires
-
Salle de reunion










