




Location Bureau 145 m²
35000 Rennes
145 m²
223 €
HT/HC/m²/an
Disponibilité : Immédiate

Geoffroy JOSSEAUME
Description
BUREAUX À LOUER – RENNES CENTRE HISTORIQUE – ESPACES LUMINEUX ET CÂBLÉS
BNP Paribas Real Estate vous propose la location de bureaux à Rennes centre, dans un immeuble de caractère au cœur du centre historique. Ces bureaux à louer à Rennes hypercentre allient charme ancien et prestations modernes, offrant un cadre de travail idéal pour les entreprises recherchant une adresse de prestige en Ille-et-Vilaine.
Située au coeur du centre-ville historique, cette surface en très bon état bénéficie d'une belle hauteur sous plafond et d'une luminosité naturelle exceptionnelle.
Les espaces sont entièrement câblés, fibrés et équipés d'une cuisine fonctionnelle.
Les avantages du bien :
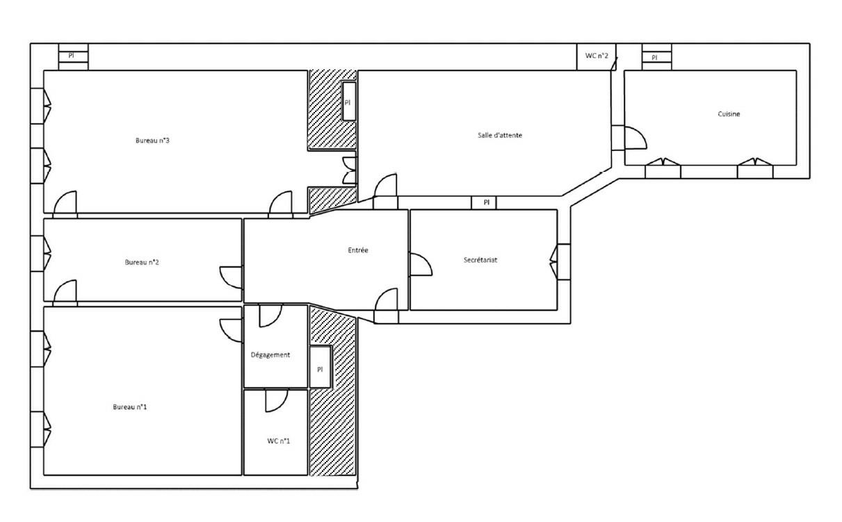
- 2 grands bureaux ouverts + 2 espaces individuels
- Bureaux lumineux et câblés prêts à l'emploi
- Environnement vivant mêlant commerces, bureaux et logements
L'immeuble bénéficie d'une excellente accessibilité : métro lignes A et B, arrêts de bus à proximité et parkings publics à quelques mètres.
Une opportunité rare pour implanter votre entreprise dans le coeur vibrant de Rennes
Services & prestations
Aménagements
-
Bureaux cloisonnés : 4
-
Sanitaires : Privatif(s)
Equipements
-
Câblage informatique
-
Eclairage Bureaux : Spots
-
Plinthes techniques périphériques
-
Sol bureaux : Parquet
-
Source chauffage : Gaz
-
Type de chauffage : Individuel
Hauteurs
-
Hauteur sous-plafond : 3,00 mètre(s)
Prestations de service
-
Sécurité : Contrôle d'accès
Type / Etat du bâtiment
-
Etat de l'immeuble : Seconde main
-
Immeuble copropriété










