




Location Bureau 85 m²
35760 Saint-Grégoire
85 m²
à partir de 144 €
HT/HC/m²/an
Disponibilité : Immédiate

Geoffroy JOSSEAUME
Description
BUREAUX À LOUER – SAINT-GRÉGOIRE – ESPACES MODERNES ET CLIMATISÉS
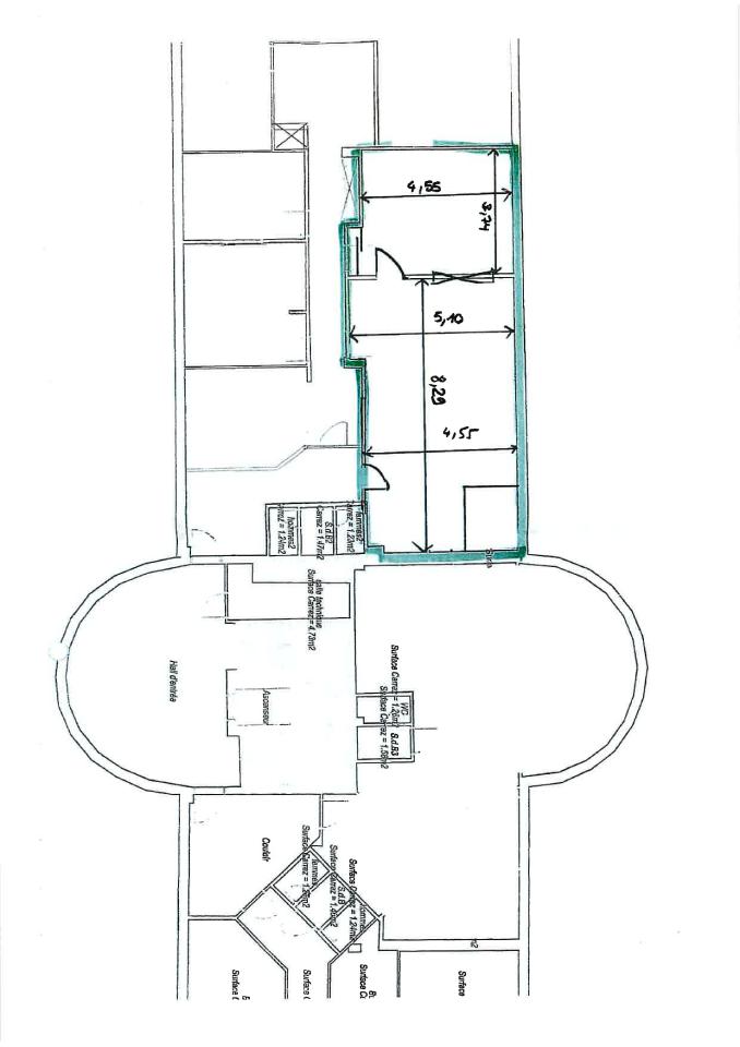
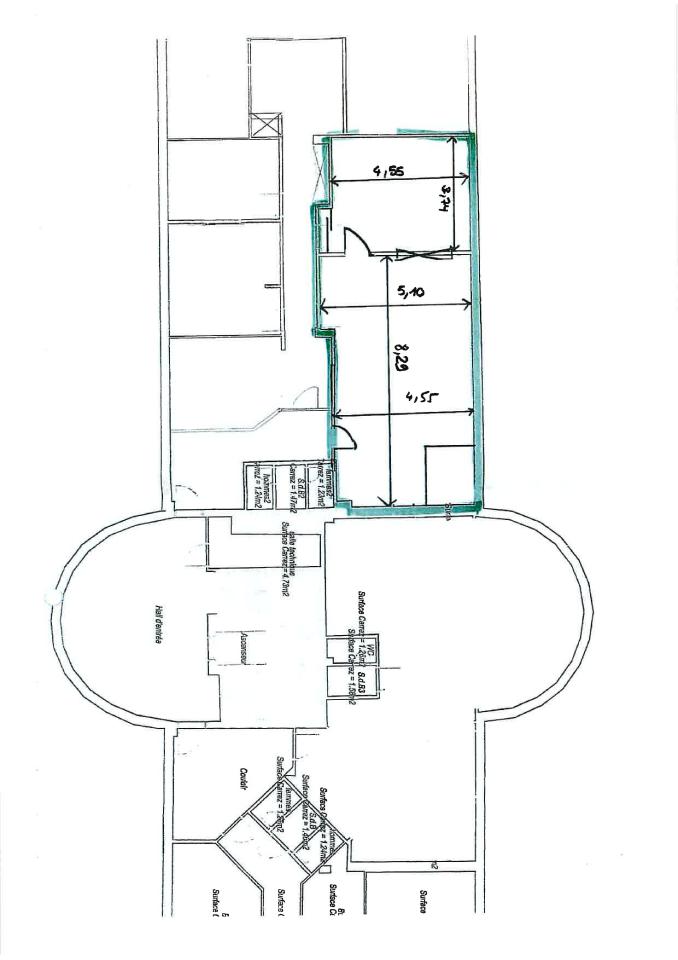
BNP Paribas Real Estate vous propose la location de bureaux à Saint-Grégoire, au sein d’un immeuble en excellent état, au cœur du parc tertiaire d’Edonia. Ces bureaux à louer de 170 m², divisibles à partir de 85 m², bénéficient de prestations récentes, d’une climatisation et de plusieurs espaces de travail cloisonnés et ouverts.
Informations clés
- Grands open spaces + bureaux fermés + espace cuisine
- Climatisation, câblage et fibre
- 6 places de parking privatives incluses
- Disponibilité immédiate
Environnement
Le Parc Edonia et l'Espace Performance proposent de nombreux services : restauration, salles de réunion, salle de sport et hôtels à proximité.
Services & prestations
Aménagements
-
Accès Pers. Mobilité Réduite
-
Complexe Salle de réunion : 1 salle(s)
-
Hall d'accueil
-
Sanitaires : 2 Parties communes par plateau
Equipements
-
Ascenseurs : 1
-
Câblage informatique : RJ 45 et baie
-
Eclairage Bureaux : Luminaires encastrés
-
Faux plafond : Dal. fibres minéral.
-
Plinthes techniques périphériques : RJ45
-
Sol bureaux : Moquette
-
Source chauffage : Electrique
-
Type de chauffage : Individuel
Prestations de service
-
Fitness : A proximité + aquatonic
-
Restauration : A proximité
-
Sécurité : Contrôle d'accès
Type / Etat du bâtiment
-
Etat de l'immeuble : Etat d'usage
-
Etat des locaux : Etat d'usage
-
Immeuble copropriété
Informations complémentaires
-
Fibre optique
-
Cuisine










