




Location Bureau 350 m²
35760 Saint-Grégoire
350 m²
135 €
HT/HC/m²/an
Disponibilité : Immédiate

Geoffroy JOSSEAUME
Description
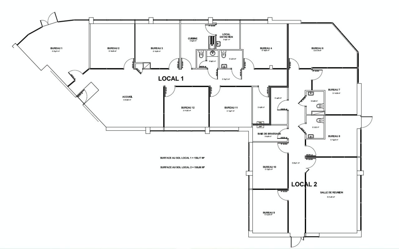
Bureaux à louer - Bâtiment M - Espace Performance - SAINT GREGOIRE
BNP Paribas vous propose des bureaux à louer dans le parc tertiaire Alphasis à Saint Grégoire.
Sur la commune de Saint Grégoire au Nord de Rennes et à 15 min du centre-ville, au sein du parc tertiaire dynamique ESPACE PERFORMANCE, nous vous proposons à la vente un plateau de bureaux de 350 m² (Surface carrez de 334m²) situé en RDC. Les locaux sont cloisonnés, câblés et climatisés et sont dotés de 10 parkings. Ces bureaux sont stratégiquement situés à Saint-Grégoire et facile d'accès à la rocade et aux transports en communs offrant un environnement professionnel de qualité.
Autorisation d'apposer une enseigne lumineuse.
Possibilité ERP 5 car il y a 4 entrées / sorties.
Services & prestations
Aménagements
-
Accès Pers. Mobilité Réduite : Ascenseur
-
Aménagement des bureaux : Cloisonnés/Ouverts
-
Bureaux cloisonnés : 12 dont 1 salle de réunion
-
Salle informatique
-
Sanitaires : Parties communes
Equipements
-
Climatisation : Réversible
-
Câblage informatique : RJ45
-
Distribution chauffage : Réversible
-
Eclairage Bureaux : Luminaires encastrés
-
Plinthes techniques périphériques
-
Sol bureaux : Moquette /pvc
Prestations de service
-
Parking
-
Sécurité : Contrôle d'accès
Extérieurs
-
Terrasses - jardins
Normes, Certifications et Labels
-
Catégorie ERP : 5
Type / Etat du bâtiment
-
Etat de l'immeuble : Seconde main
-
Etat des locaux : Très bon état
-
IGH / Code du travail
Informations complémentaires
-
Salle de pause










