




Location Bureau 3 897 m²
37100 Tours
3 897 m²
Divisible dès 360 m²
à partir de 180 €
HT/HC/m²/an
Disponibilité : 01/03/2027

Bertrand BEGAT
Description
BUREAUX À LOUER - TOURS NORD - MONCONSEIL
EXCLUSIVITÉ BNP PARIBAS REAL ESTATE - BUREAUX À LOUER
Situé au cœur de Tours Métropole Val de Loire, dans le secteur dynamique de Monconseil, cet immeuble indépendant offre un cadre de travail idéal et facilement accessible, sur un axe passant ayant une excellente visibilité depuis le boulevard Maréchal Juin.
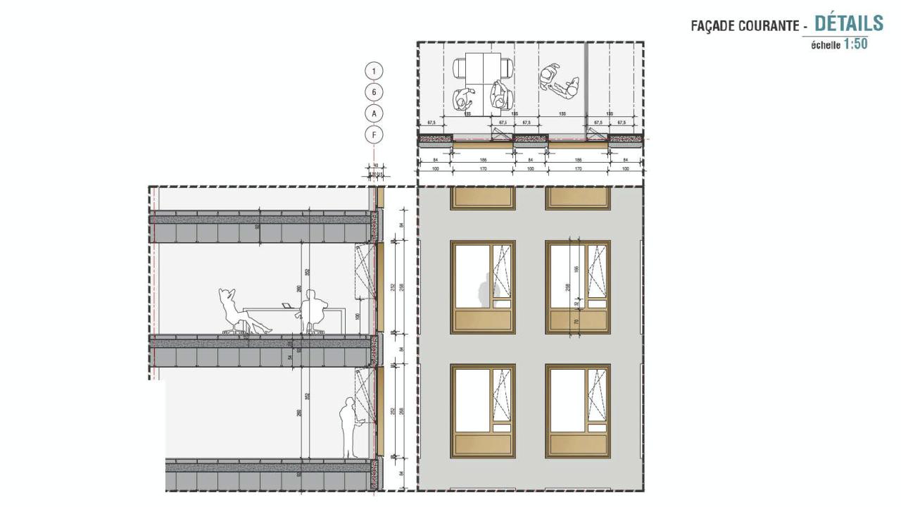
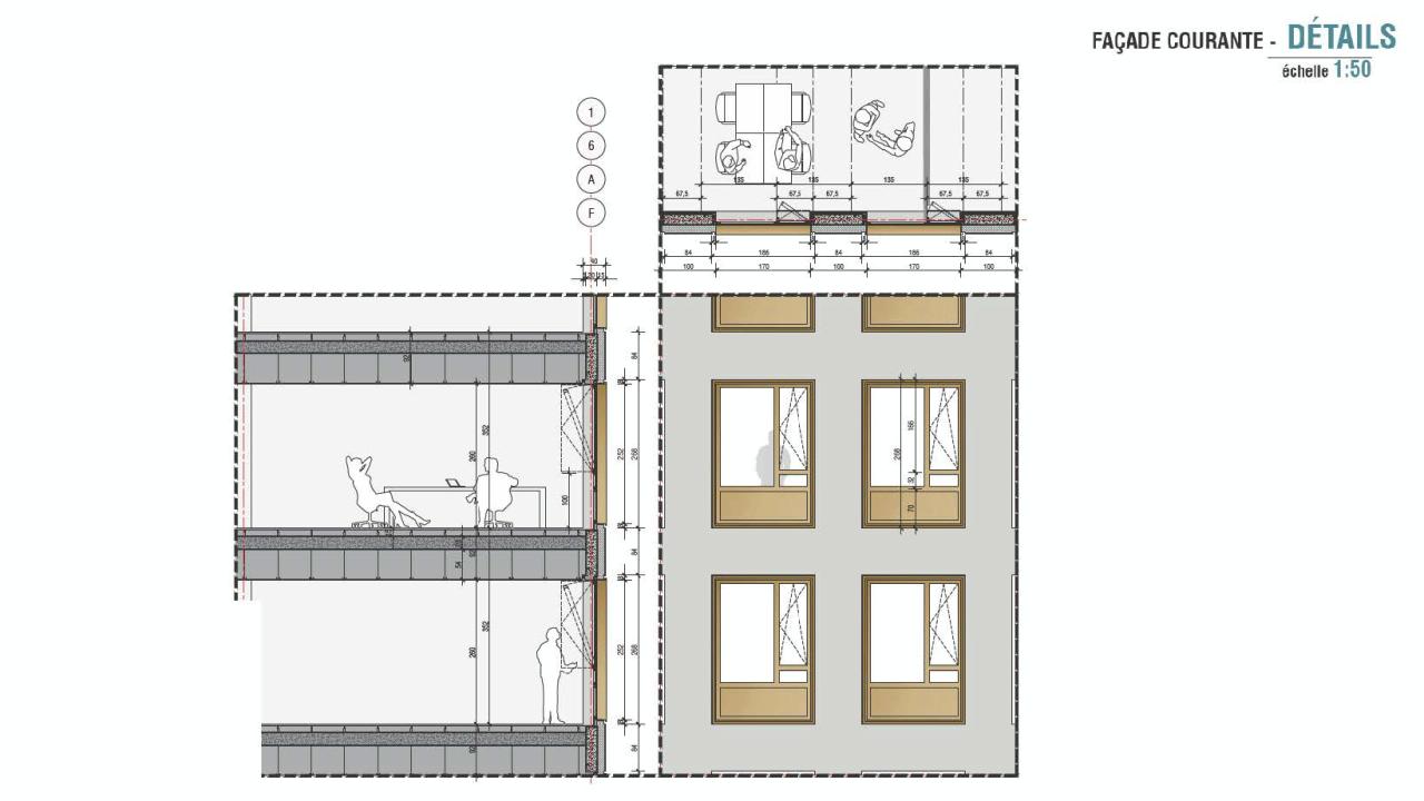
Nous vous proposons des bureaux à la location, au sein du bâtiment B certifié BREEAM VERY GOOD et RE 2020, totalisant 3 897 m² répartis sur 6 niveaux (RDC + 5 étages). Chaque étage, du R+1 au R+4, offre des plateaux de 781 m² conçus pour optimiser l'aménagement des espaces de travail.
Pensé pour le bien-être des occupants :
Les bureaux sont lumineux et confortables, avec climatisation et faux plancher technique. L'immeuble propose également des espaces extérieurs variés, incluant des terrasses privatives et un rooftop mutualisé au R+5 de 224 m², des loggias à chacun des étages (23,10 m² à 72 €/m²/an), offrant des lieux de détente et de convivialité.
Vous disposerez d'une cafétéria et d'un lounge café, créant des espaces propices aux échanges et à la détente.
Coté stationnement, 84 places de parking en sous-sol sont à disposition (1.350€/place/an), avec un ratio attractif d'une place pour 47 m². Un local vélo est également à disposition en sous-sol et en extérieur.
Environnement et accessibilité :
Le bâtiment est très bien desservi : tramway ligne A, lignes de bus.
Enfin, Epure bénéficie d'un environnement particulièrement pratique avec la présence immédiate des centres commerciaux Auchan La Petite Arche et L'Horloge, assurant un large choix de commerces à services à proximité.
Une opportunité idéale pour vous implanter dans un secteur stratégique de Tours Métropole ! Contactez-nous pour une visite !
Services & prestations
Aménagements
-
Accès Pers. Mobilité Réduite
-
Aménagement des bureaux : Espaces Ouverts
-
Espace bien-être : Loggias, rooftop aménagé au R+5
-
Hall d'accueil
Equipements
-
Ascenseurs
-
Climatisation : Réversible
-
Câblage informatique
-
Eclairage Bureaux : Luminaires encastrés
-
Faux plafond : Dal. fibres minéral.
-
Faux plancher : Technique
-
Sol bureaux : Moquette
Prestations de service
-
Cafétéria
-
Parking : 84 sous-sol, Possibilité d’installer des bornes de recharge pour véhicules électriques, Vélos sécurisé
Extérieurs
-
Terrasses - jardins
Normes, Certifications et Labels
-
Certification : BREEAM
Type / Etat du bâtiment
-
Etat de l'immeuble : Neuf
Informations complémentaires
-
Lounge café mutualisé au RDC










