




Location Bureau 892 m²
37200 Tours
892 m²
Divisible dès 350 m²
à partir de 140 €
HT/HC/m²/an
Disponibilité : Immédiate

Bertrand BEGAT
Description
Bureaux à louer quartier des 2 Lions Tours
Très belle surface de bureaux à louer en plein cœur du quartier des 2 Lions au 1er étage d'un immeuble récent et moderne
Offre de location Bureaux au coeur du quartier des 2 Lions (Tours)
Surface disponible
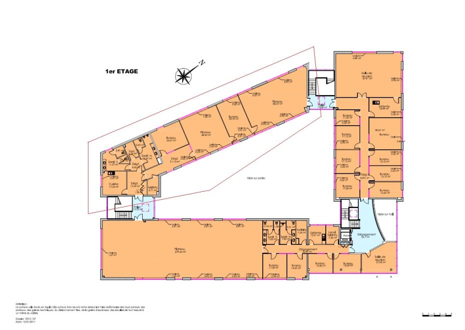
- 892 m² de bureaux
- Situés au 1er étage (R+1)
- Bureaux cloisonnés, fonctionnels et prêts à l'emploi
- Disponible immédiatement
Atouts du bâtiment
- Climatisation
- Cafétéria
- Emplacements vélos
- Visibilité optimale sur un axe passant
- 13 places de stationnement extérieures
Localisation & accessibilité
Situés au coeur du quartier des 2 Lions à Tours, un secteur tertiaire majeur et dynamique :
- À 5 minutes à pied du tramway
- À 10 minutes en voiture du centre-ville, de l'A85 et de l'A10
- Nombreux services immédiats, notamment le centre commercial L'Heure Tranquille
- Environnement qualitatif : commerces, restaurants, espaces verts, équipements de loisirs
Environnement de travail
Un cadre professionnel particulièrement apprécié, offrant :
- Une ambiance moderne et confortable
- Un quartier vivant bénéficiant d'un fort dynamisme économique
- Un accès aisé pour salariés, visiteurs et clients
Services & prestations
Aménagements
-
Accueil
-
Accès Pers. Mobilité Réduite
-
Aménagement des bureaux : Cloisonnés/Ouverts
-
Bureaux cloisonnés
-
Salle informatique
-
Sanitaires : Privatif(s)
Equipements
-
Ascenseurs
-
Climatisation : Réversible
-
Câblage informatique
-
Eclairage Bureaux : Luminaires encastrés
-
Faux plafond : Dal. fibres minéral.
-
Plinthes techniques périphériques
-
Sol bureaux : Moquette
Normes, Certifications et Labels
-
Catégorie ERP
Type / Etat du bâtiment
-
Etat de l'immeuble : Récent










