




Location Bureau 1 212 m²
44200 Nantes
1 212 m²
Divisible dès 85 m²
à partir de 197 €
HT/HC/m²/an
Disponibilité : Immédiate

Anne-Charlotte ZABEL
Description
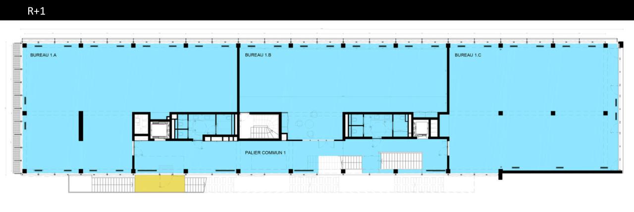
IMMEUBLE NEUF - QUARTIER DE LA CREATION - DERNIERES SURFACES !
Dernières surfaces de bureaux disponibles à la location :
En étages : 3 plateaux dont les surfaces utiles vont de 235 à 320 m², avec terrasses privatives. Les espaces sont modulables et pourront entièrement s'adapter à vos besoins. Les plateaux sont lumineux et bénéficient d'accès à des terrasses communes, à chaque niveau.
En rez-de-chaussée : 2 cellules de commerces, vitrines posées, à aménager.
L'emplacement de FUSION au coeur du Quartier de la Création, à proximité de nombreux services, restauration, commerces, salles de sport, crèches .... apporte aux utilisateurs de l'immeuble un grand confort d'accès et de travail, le tout à 2 pas de la Loire et des vastes espaces de détente du site des Nefs.
L'immeuble propose à tous ses occupants plus de 400 m² d'espaces communs de qualité, permettant les échanges inter-entreprises : salles de réunion, salle de détente, espace restauration avec cuisine, vestiaires et douches, accès à de grandes et terrasses végétalisées en gradin.
Idéalement desservi par les transports en commun haute fréquence : Busway 5 en pied d'immeuble, 3 lignes de tramway à 10 minutes (à pied ou en bus); future ligne de tramway (2026) à 3 minutes.
Nombreux parkings publics à toute proximité.
Services & prestations
Type / Etat du bâtiment
-
Etat des locaux : Neuf










