




Location Bureau 1 845 m²
44300 Nantes
1 845 m²
Divisible dès 285 m²
à partir de 165 €
HT/HC/m²/an
Disponibilité : Immédiate

Christine SERRA
Description
INFINITY - HALUCHERE
BUREAUX NEUFS - A LOUER
BNP PARIBAS REAL ESTATE vous invite à découvrir des plateaux de bureaux neufs à louer dans le programme Infinity !
Les locaux, disponibles immédiatement, sont livrés aménagés non cloisonnés, non câblés, avec air rafraîchi.
Les prestations de l'immeuble :
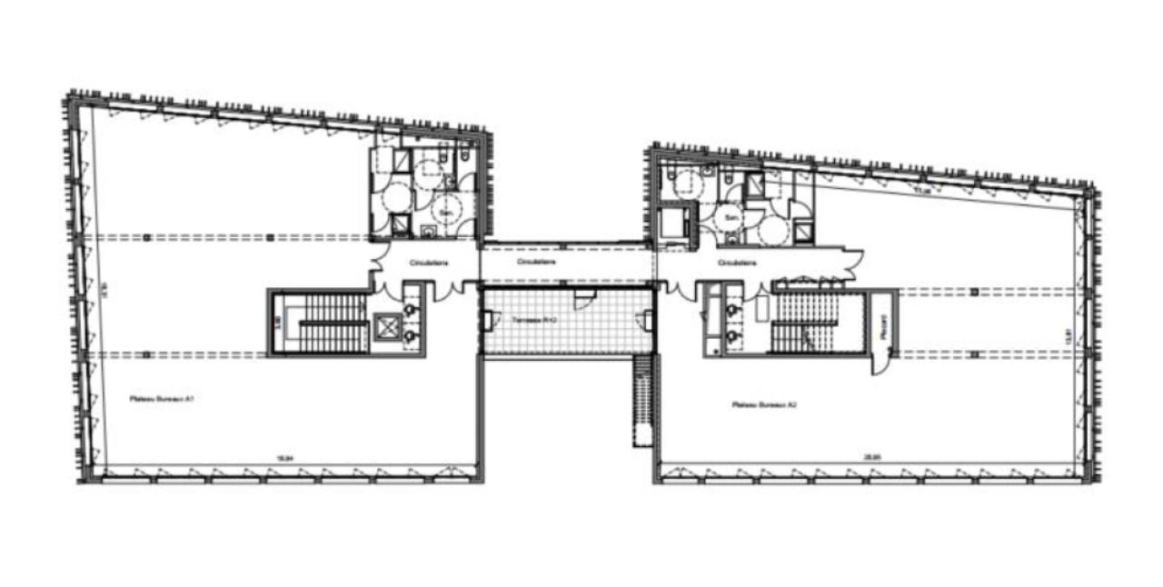
- une configuration qui permet une parfaite divisibilité verticale ou horizontale
- des plateaux très lumineux : tous en 1er jour
- des plateaux réunissables pour développer près de 635 m²
- 2 terrasses privatives orientées Sud au 1er et 2ème étage
- un grand patio arboré accessible à tous, au coeur de l'îlot
- 15 places de stationnement privatif
- un local vélos de 26 places
Règlementaire :
- Classement ERP5 - catégorie W
- Capacitaire : RDC : 49 personnes - En étage : 199 personnes
Emplacement :
Idéalement situé au pied du tramway et du périphérique Est, INFINITY est un immeuble connecté à la métropole nantaise !
Le pôle multimodal Haluchère concentre les lignes tramway, chronobus, et le tram-train reliant la Gare TGV à Châteaubriant.
L'environnement commercial PARIDIS/LA BEAUJOIRE permet aux usagers de profiter d'une large offre de commerces et de restauration.
Services & prestations
Aménagements
-
Accès Pers. Mobilité Réduite
-
Aménagement des bureaux : Espaces Ouverts
-
Effectif théorique : 199 personne(s) dans les étages, 49 personne(s) en RDC
-
Sanitaires : Parties communes
Equipements
-
Ascenseurs
-
Climatisation : Air rafraîchi Pompes à chaleur
-
Eclairage Bureaux : Luminaires encastrés LED
-
Faux plafond : Acoustique sur ossature
Hauteurs
-
Hauteur sous-plafond : 2,70 mètre(s)
Prestations de service
-
Sécurité : Contrôle d'accès lecteur badges
Extérieurs
-
Trame de façade : 1,35 mètre(s)
Normes, Certifications et Labels
-
Catégorie ERP : 5 catégorie W
-
Label cible : E+C-
Type / Etat du bâtiment
-
Etat des locaux : Neuf
Informations complémentaires
-
Ventilation double flux
-
Grand patio arboré en coeur d'îlot, Revêtement dalles moquette en partie Bureaux
-
Performance énergétique RT 2012-30%










