




Location Bureau 299 m²
44300 Nantes
299 m²
170 €
HT/HC/m²/an
Disponibilité : 01/01/2026

Anne-Charlotte ZABEL
Description
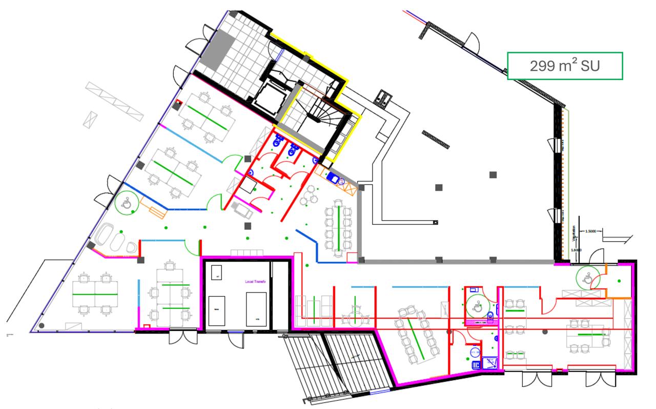
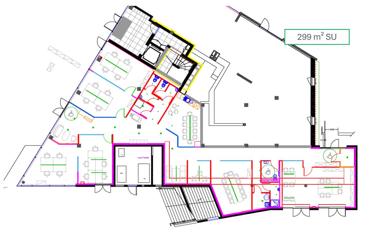
BUREAUX REZ-DE-CHAUSSEE - EXCELLENT ÉTAT
Secteur Eraudière, BNP PARIBAS REAL ESTATE vous propose à la location une surface de bureaux en RDC en excellent état, située stratégiquement entre le centre-ville et le périphérique.
Possibilité de parking en sus en sous-sol.
Composés actuellement de :
1 accueil,
4 open-spaces,
1 bureau privatif,
2 salles de réunion,
1 cuisine entièrement équipée,
3 WC dont 1 PMR + 1 douche,
ces locaux bénéficient d'un aménagement très qualitatif qui peut être évolutif en fonction de vos besoins.
Belle visibilité depuis la route de Saint-Joseph.
ERP à étudier.
Services & prestations
Aménagements
-
Aménagement des bureaux
-
Sanitaires : 3 Privatif(s)
Equipements
-
Climatisation : Réversible autonome dans chaque espace
-
Câblage informatique
-
Douche : 1 (privative)
-
Eclairage Bureaux
-
Faux plafond : Dal. fibres minéral.
-
Sol bureaux : Dls.thermoplastiques
Informations complémentaires
-
ERP possible, Oui
-
Baie de brassage










