


49 Mail de la Caserne Mellinet
44000 Nantes
125 m²
356 250 €
HT/HD
Disponibilité : Immédiate

Anne-Charlotte ZABEL
Description
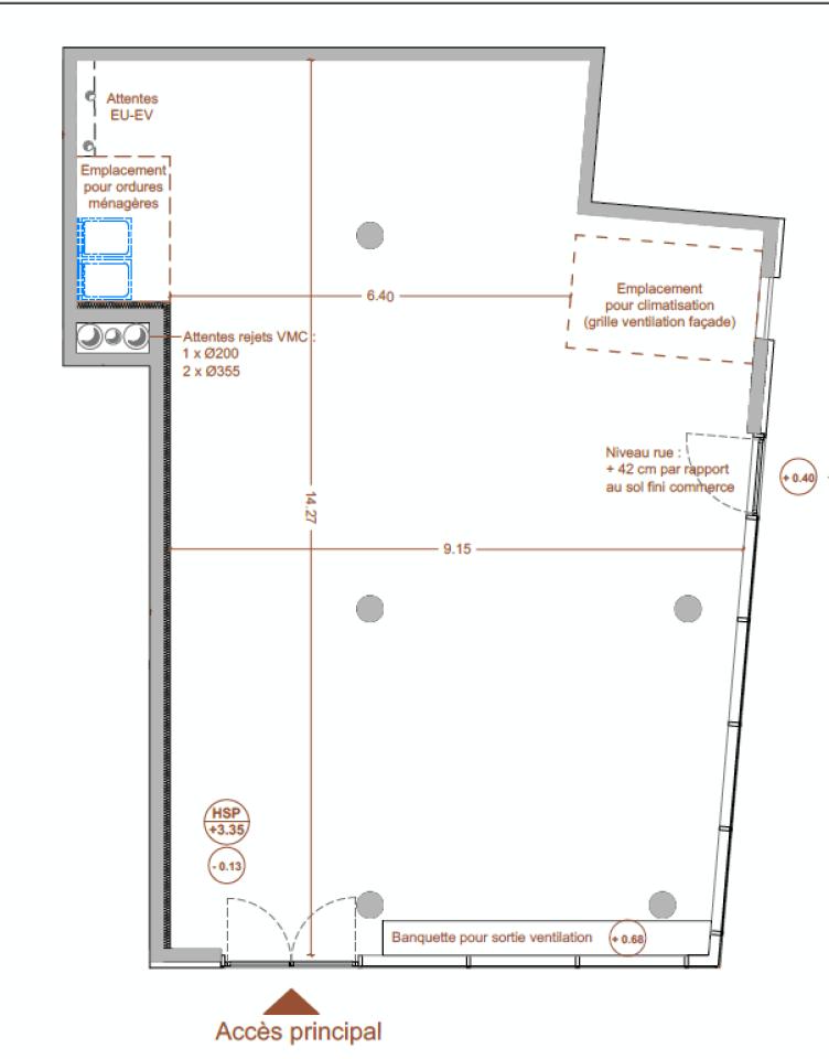
BUREAUX À VENDRE - 125 m² - NANTES QUARTIER ST DONATIEN
BNPPRE vous propose à la vente cette surface de bureau de 125 m² au coeur du quartier SaintDonatien offrant un emplacement stratégique, proche de l'hypercentre et des services du quotidien.
Située en rezdechaussée d'un immeuble mixte neuf, elle offre une visibilité idéale pour une activité recevant du public.
Livrée brute de béton, la surface permet une totale liberté d'aménagement : création d'un accueil, bureaux fermés, open space, salle de soins ou espace de consultation.
La vitrine posée et la configuration ERPable renforcent le potentiel commercial du site.
Un emplacement idéal pour une activité souhaitant combiner visibilité, accessibilité et qualité d'environnement.
Services & prestations
Aménagements
-
Accès Pers. Mobilité Réduite
Normes, Certifications et Labels
-
Catégorie ERP : 5
Type / Etat du bâtiment
-
Etat de l'immeuble : Neuf Brut de béton / Vitrine posée










