


49 Mail de la Caserne Mellinet
44000 Nantes
125 m²
200 €
HT/HC/m²/an
Disponibilité : Immédiate

Anne-Charlotte ZABEL
Description
BUREAUX À LOUER - NANTES QUARTIER ST DONATIEN
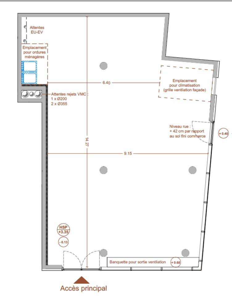
Située au coeur du quartier Saint Donatien , cette surface de bureaux à louer bénéficie d'un emplacement stratégique à proximité immédiate de l'hypercentre.
Implantée en RDC d'un immeuble mixte neuf, elle offre une visibilité idéale pour une profession libérale ou une activité recevant du public.
Livrée brute de béton, la surface permet un aménagement entièrement personnalisé selon les besoins des futurs occupants. La configuration ERPable et la vitrine installée renforcent le potentiel commercial du site.
L'environnement immédiat offre un accès rapide aux transports en commun, aux commerces et aux principaux axes de circulation.
Services & prestations
Aménagements
-
Accès Pers. Mobilité Réduite
Normes, Certifications et Labels
-
Catégorie ERP : 5
Type / Etat du bâtiment
-
Etat de l'immeuble : Neuf Brut de béton / Vitrine posée










