




Location Bureau 584 m²
44200 Nantes
584 m²
Divisible dès 290 m²
à partir de 175 €
HT/HC/m²/an
Disponibilité : Immédiate

Anne-Charlotte ZABEL
Description
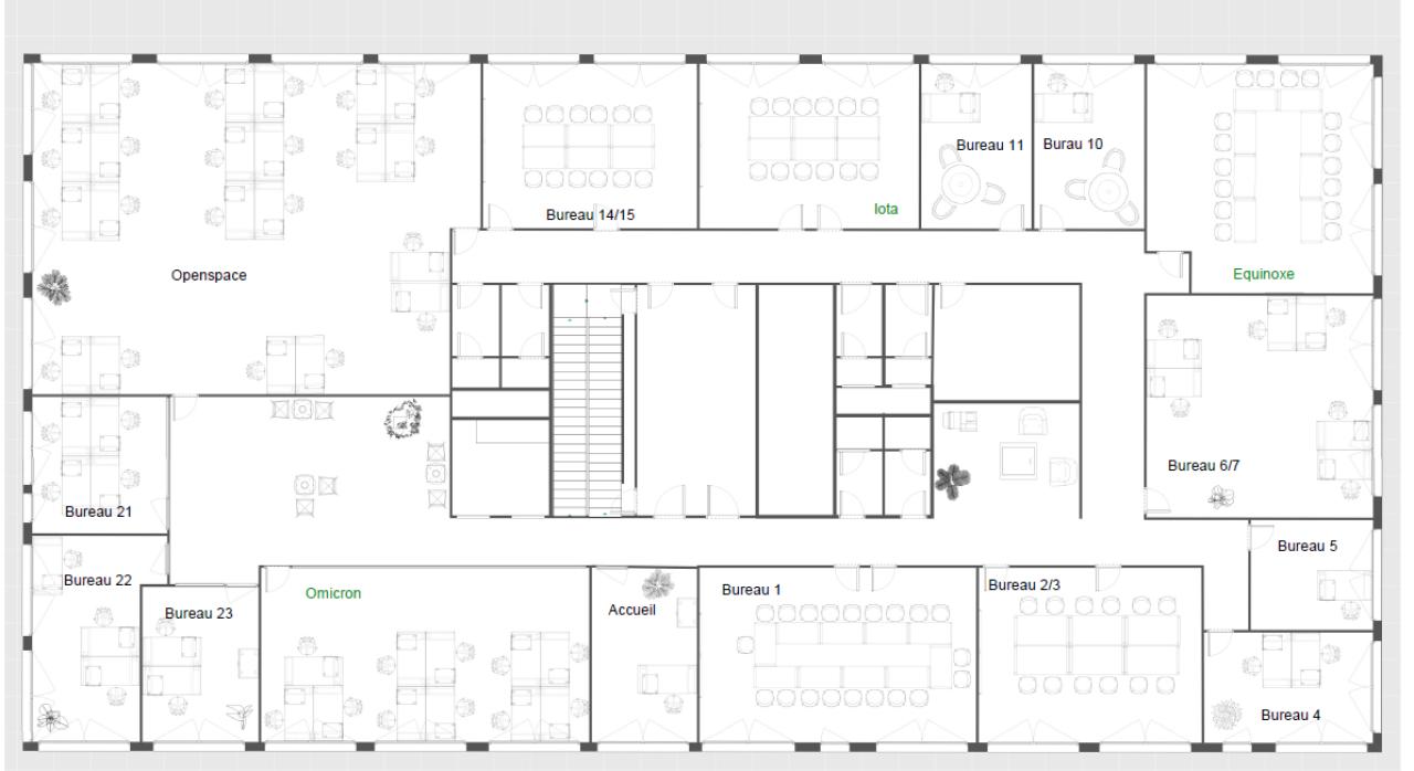
Bureaux lumineux - Excellent ratio parking - île de Nantes
BNP PARIBAS REAL ESTATE vous propose à la location un plateau complet de bureaux, en étage élevé dans un immeuble de bon standing, implanté en plein cœur de l’Ile de Nantes au sein d’une environnement dynamique et facilement accessible grâce aux nombreuses lignes de transports.
Cette surface de 584 m² divisible est composée de :
6 bureaux cloisonnés,
4 salles de réunion,
4 open space
- 1 espace détente
- 6 sanitaires privatifs
- 18 places de parkings
Ces bureaux bénéficient d'une très belle luminosité et d'un excellent ratio parking, un véritable atout dans ce secteur recherché !
Services & prestations
Aménagements
-
Accès Pers. Mobilité Réduite : RDC
-
Aménagement des bureaux
-
Salle informatique : Et baie de brassage
-
Sanitaires
Equipements
-
Ascenseurs : 2
-
Câblage informatique
-
Douche
-
Eclairage Bureaux : Pavés LED
-
Faux plafond : Dal. fibres minéral.
-
Plinthes techniques périphériques
-
Sol bureaux : Moquette
-
Type de chauffage : Collectif
Informations complémentaires
-
Oui
-
Oui










