




Location Bureau 1 446 m²
54420 Saulxures-lès-Nancy
1 446 m²
Divisible dès 482 m²
Loyer sur demande
Disponibilité : 18 mois après accord

Florine DEVEAUX
Description
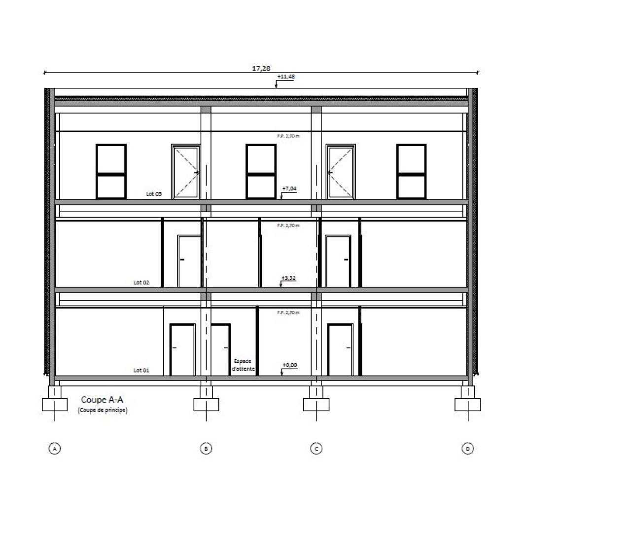
A LOUER - BUREAUX NEUFS
ZAC DE LA SOLERE réf OLBUR2532794
Nouveau projet tertiaire à venir sur la ZAC DE LA SOLERE au carrefour entre les communes d'ESSEY LES NANCY, SAULXURES LES NANCY et PULNOY et à proximité immédiate de la Porte Verte et de CORA.
Disponible à la vente ou à la location.
LOCATION (vente possible) - 1 446,00 m² environ - SAULXURES LES NANCY - ZAC DE LA SOLERE (54)
BNPPRE vous propose de bénéficier d'un projet NEUF disponible à la vente ou à la location situé à la ZAC de la Solère.
Il est encore possible d'envisager des adaptations propres à votre activité. Venez nous rencontrer et nous parler de votre projet et nous trouverons la solution pour vous accompagner.
Caractéristiques
Parking
Bureaux cloisonnés
Balcon
Accessibilité
Accès direct à la Rocade Sud-Est
Transports en commun
Bus arrêt Lebrun / Vervaux (800m)
Services et commodités
Entreprises à proximité : Dalkia Froid Solutions, Atlantique Automatique Incendie-AAI, Dafy moto, Centre Tesla, ENGIE et d'autres
Carrefour Essey-Les-Nancy (700m)
Restauration : Le Foir à bois, Restaurant saveurs et compagnie, L'Instinct By C&M et d'autres










