




4 Rue Graham Bell
57070 Metz
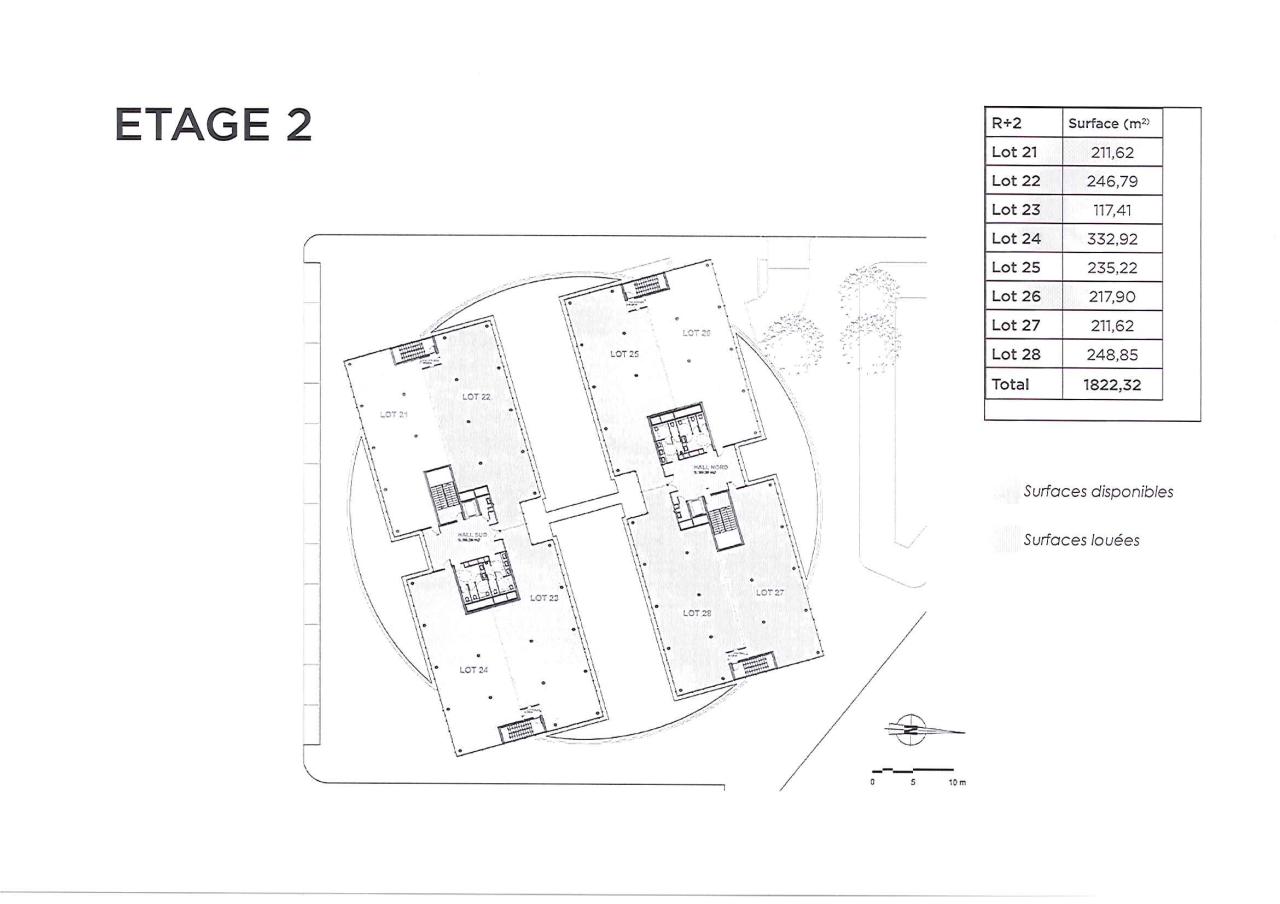
294 m²
Divisible dès 123 m²
130 €
HT/HC/m²/an
Disponibilité : Immédiate

Gauthier DENOYELLE
Description
METZ TECHNOPOLE (REF OLBUR 25 34 397)
BNPPRE ADVISORY vous propose plusieurs surfaces de bureaux à la location au Technopôle de Metz.
METZ TECHNOPOLE - BUREAUX DE 123 A 200 M² - A LOUER
Vous cherchez des bureaux au coeur d'une zone tertiaire et facilement accessible par les transports en commun ?
Nous vous proposons des bureaux de 123, 170 et 200 m² au coeur du Technopôle de Metz, disponibles à la location.
Situés dans un immeuble moderne, les bureaux lumineux et accessibles par ascenseur offriront à vos équipes des espaces de travail agréables dans un cadre verdoyant.
Caractéristiques
- Ascenseur
- Accès PMR
- Contrôle d'accès
- Parking privatif en pied d'immeuble
Bénéficiant d'une parfaite accessibilité tant en voiture que par les transports en commun, vos locaux se situent sur un axe passant permettant à vos clients et à vos collaborateurs un accès aisé au coeur de la première zone tertiaire de l'Eurométropole de Metz.
Véritable pôle d'attractivité économique, le Technopôle de Metz regroupe une grande partie des activités tertiaires de la Métropole.
Grâce à ses services diversifiés, il concentre tous les atouts pour une installation réussie, permettant à vos collaborateurs d'allier sereinement vie privée et professionnelle avec la possibilité se restaurer à proximité grâce aux enseignes de restauration et commerces d'alimentation et de profiter d'une excellente accessibilité tant en voiture que par les transports en commun.
Accessibilité
- A4/31 rocade Sud A431
- BUS : LEMET MB - arrêt Graham Bell
- Gare SNCF de Metz : 15 minutes ~ (1h20 de Paris Gare de l'Est)
- Gare TGV Lorraine : 15 minutes ~ (1h20 de l'Aéroport Roissy Charles de Gaulle)
- Aéroport régional de Metz Nancy Lorraine : 20 minutes ~
- Aéroport international de Luxembourg Findel : 50 minutes ~
Conseiller en Immobilier professionnel, BNP PARIBAS REAL ESTATE ADVISORY accompagne les entreprises dans la recherche de bureaux, locaux d'activité, dépôts et entrepôts logistiques, à la location et à la vente, à METZ et en MOSELLE depuis plus de 40 ans.
Services & prestations
Aménagements
-
Accès Pers. Mobilité Réduite : Ascenseur
-
Aménagement des bureaux : Cloisonnés
-
Sanitaires : 6 Parties communes par étage
Equipements
-
Ascenseurs : 2
-
Climatisation : Type split réversible
-
Eclairage Bureaux : Luminaires encastrés
-
Faux plafond : Dal. fibres minéral.
-
Plinthes techniques périphériques : Double compartiement
-
Revêtement mural : Peinture projetée
-
Sol bureaux : Moquette en dalles type U3 P3
-
Source chauffage : Electrique
-
Type de chauffage : Collectif
Prestations de service
-
Parking : Mitoyen avec parking privé
-
Sécurité : Contrôle d'accès interphone+ouvre porte
Type / Etat du bâtiment
-
Etat de l'immeuble : Trés bon état
-
Etat des locaux : Etat d'usage










