




Location Bureau 390 m²
57070 Metz
390 m²
Divisible dès 66 m²
125 €
HT/HC/m²/an
Disponibilité : Immédiate

Gauthier DENOYELLE
Description
METZ SEBASTOPOL - A LOUER (REF OLBUR 24 22 932)
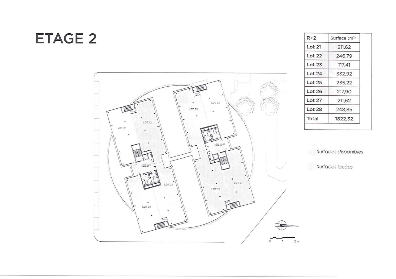
BNP PRE TRANSACTION vous propose à la location, plusieurs espaces de bureaux de 1066 m² (divisible dès 66m²) avec parking, à proximité de la Rocade A431 et du METTIS A.
METZ SEBASTOPOL - 1 063 M² DE BUREAUX A LOUER
Nous vous proposons à la location des bureaux dans le quartier Sébastopol de Metz.
Ce bien de 1 063 m² de bureaux en rez de chaussée 120€ / m² / an HT hors charges avec parking en pied d'immeuble, divisible dès 66 m².
Situés à mi chemin entre la zone tertiaire du Technopôle de Metz et la zone d'activités de l'Actipôle, les locaux se trouvent au sein de la zone Sébastopol.
Dans un immeuble de belle facture, les bureaux proposés offrent toutes les caractéristiques nécessaires à une activité tertiaire, permettant à vos collaborateurs d'évoluer dans un cadre de travail agréable.
Caractéristiques
- Bureaux cloisonnés
- Faux plafond + cadrettes
- Faux plancher
- Murs : toile de verre peinte
- Fenêtres double vitrage et volets roulants
- Eclairage Bureaux : Luminaires encastrés
- Murs : toile de verre peinte
Le quartier accueille des sociétés tertiaires, des commerces, restaurants et enseignes alimentaires.
Son positionnement à proximité de la rocade Sud A431 reliant les Autoroutes A4 et A31 offrira une excellente accessibilité à votre entreprise.
Accessibilité
- A4/431 rocade Sud
- Transports en commun :
- Gare TGV de Metz à 15 min. ~
- BUS :
- LEMET MA arrêt Cloutiers
- C17 arrêt Serruriers
- C14 arrêt Serruriers
Conseiller en Immobilier professionnel et présent à Metz depuis plus de 40 ans, BNP PARIBAS REAL ESTATE TRANSACTION accompagne les sociétés dans leur recherche de locaux professionnels : bureaux, locaux d'activité, dépôts et entrepôts logistiques, en Moselle et Meurthe et Moselle Nord, à la location et à la vente.
Services & prestations
Aménagements
-
Aménagement des bureaux : Cloisonnés
Equipements
-
Climatisation : Réversible
-
Eclairage Bureaux : Luminaires encastrés
-
Faux plafond : + cadrettes
-
Faux plancher
-
Fenêtres
-
Sol bureaux
Type / Etat du bâtiment
-
Etat de l'immeuble : Etat d'usage
-
Etat des locaux : Très bon état
Informations complémentaires
-
Murs : toile de verre peinte, Murs : toile de verre peinte
-
Fenêtres double vitrage, Fenêtres double vitrage
-
Volets roulants










