




Location Bureau 400 m²
57000 Metz
400 m²
200 €
HT/HC/m²/an
Disponibilité : Immédiate

Claudia LEFEVRE
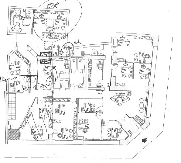
Description
LOCAUX COMMERCIAUX AVEC VITRINE METZ GARE (OLBUR 25 36 066)
BNPPRE ADVISORY vous propose un local commercial aménagé, climatisé avec vitrine de 400 m² à la location situé avenue FOCH à deux pas de la gare SNCF.
METZ CENTRE GARE - LOCAL COMMERCIAL AVEC VITRINE - 400 M² - LOCATION - Non ASSUJETTI à TVA
Nous vous proposons en rez de chaussée une grande surface avec vitrine à usage de commerce ou de bureaux.
Situés à deux pas de la gare SNCF et de l'hypercentre de Metz, les locaux se trouvent au coeur du quartier Gare.
Dans un immeuble avec cachet, en rez de chaussée avec de grandes fenêtres donnant sur la rue, ces locaux permettront à votre entreprise de bénéficier d'une belle visibilité.
Caractéristiques
Climatisés
sols et peintures récentes
Accueil
Le quartier accueille de nombreuses sociétés des domaines de l'assurance, de l'immobilier et des activités juridiques, et de nombreux cafés, restaurants et commerces alimentaires permettant à vos collaborateurs de se restaurer à proximité. Son positionnement central dans la ville permet de se rendre en quelques pas au coeur des centres névralgiques de l'activité commerciale et culturelle de Metz :
L'hypercentre avec ses nombreux commerces et restaurants, ses lieux de culture : l'Arsenal, le Musée d'Histoire, le FRAC, et ses lieux historiques, parmi lesquels la Cathédrale, la colline Sainte Croix, le Cloître des Récollets,
- Le quartier de l'Amphithéâtre, son centre commercial Muse et le Centre Pompidou Metz, centre d'art dédié à l'art moderne et contemporain.
Cet emplacement est idéal car facilement accessible, situé sur l'axe d'accès principal depuis l'autoroute A31 et à deux pas de la gare SNCF, du Pôle multimodal et de la gare routière offrant un accès à l'ensemble des lignes des réseaux de transports en commun de bus LEMET et interurbains de Moselle.
Accessibilité
- Autoroute A31 sortie Metz Centre
- Gare SNCF TGV de Metz : 200 m ~
- Gare routière de Metz : 5 min. ~
- Pôle multimodal : 300 m ~
- Réseau bus intra urbain LEMETZ : toutes lignes à 200 m
- Aéroport de Metz Nancy Lorraine : 20 min. ~
- Aéroport de Luxembourg Findel : 50 min. ~
Conseiller en Immobilier professionnel, BNP PARIBAS REAL ESTATE TRANSACTION accompagne les entreprises dans la recherche de bureaux, locaux d'activité, dépôts et entrepôts logistiques, à la location et à la vente, à METZ et en MOSELLE depuis plus de 40 ans.
Services & prestations
Aménagements
-
Accès Pers. Mobilité Réduite
-
Bureaux cloisonnés
-
Sanitaires : 4
Equipements
-
Eclairage Bureaux : Luminaires encastrés
-
Faux plafond
-
Plinthes techniques périphériques
-
Sol bureaux : Moquette/Carrelage
Extérieurs
-
Linéaire de façade : 10,00 mètre(s)
Normes, Certifications et Labels
-
Catégorie ERP
Type / Etat du bâtiment
-
Etat de l'immeuble : Etat d'usage
-
Etat des locaux : Rénové
Informations complémentaires
-
Archives










