




1 Place Simone Veil
57950 Montigny-lès-Metz
258 m²
Divisible dès 95 m²
à partir de 221 €
HT/HC/m²/an
Disponibilité : Immédiate

Gauthier DENOYELLE
Description
CELLULES COMMERCIALES NEUVES - MONTIGNY LES METZ (REF OLBUR2426091)
BNP PARIBAS REAL ESTATE TRANSACTION vous propose deux cellules commerciales à la location ou à la vente.
MONTIGNY LES METZ - ECOQUARTIER LIZE - COMMERCES A LOUER / A VENRE
Vous souhaitez implanter votre activité au coeur d'un quartier nouveau et à forte densité de population.
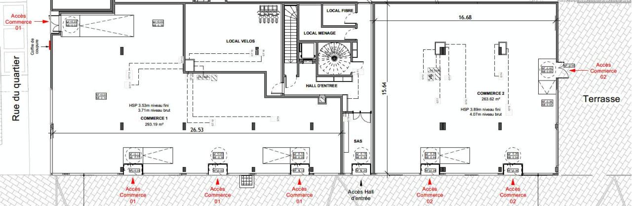
Nous vous proposons une cellule de 257 m² environ avec terrasse privative de 141 m², divisibles comme suit :
- Cellule 2a : 95 m² ~ et un linéaire de vitrine de 6 mètres
- Cellule 2b : 163 m² ~ et un linéaire de vitrine de 21 mètres + 141 m² de terrasse
Caractéristiques
- Linéaire de vitrine (de 6 à 27 mètres)
- Terrasse
- Enseigne de 1 mètre de hauteur
- Classé ERP 5
- Hauteur libre
- Livrées brut de béton et fluides en attente
- Décaissé de 17 cm (chape à charge preneur)
Situées au coeur du nouvel Ecoquartier Lizé, cet ensemble neuf livré brut de béton, offrira toutes les possiblités d'aménagement, permettant d'adapter parfaitement vos locaux à l'activité de votre commerce ou cabinet médical ou paramédical.
Votre entreprise bénéficiera d'une parfaite visibilité grâce à un grand linéaire de façade donnant sur la place centrale de ce nouveau quartier résidentiel.
L'Ecoquartier Lizé est conçu pour accueillir à terme plus de 2 500 habitants, et 2 000 m² de commerce, une médiathèque, une résidence intergénérationnelle, une crèche, le tout dans un environnement verdoyant avec un parc de 1,2 hectare, un jardin et un potager urbain.
Situé à 10 minutes en bus du centre-ville de Metz, et à 10 minutes en voiture de la zone Actisud, ce nouveau quartier propose une variété de services dans les domaines de la santé, de la vie quotidienne, de l'éducation, de la restauration et des transports.
Accessibilité :
- LEMET ligne L3 / C15 Arrêt
- Gare de Metz à 10 minutes ~
- Accès à l'Autoroute A31 à 10 minutes ~
Conseiller en Immobilier professionnel, BNP PARIBAS REAL ESTATE TRANSACTION accompagne les entreprises dans la recherche de bureaux, locaux d'activité, dépôts et entrepôts logistiques, à la location et à la vente, à METZ et en MOSELLE depuis plus de 40 ans.
Services & prestations
Hauteurs
-
Hauteur libre : 4,20 mètre(s)
Extérieurs
-
Façade d'angle
-
Linéaire de façade
-
Terrasses - jardins
Normes, Certifications et Labels
-
Catégorie ERP : 5
Informations complémentaires
-
Bandeau d'enseigne d'un mètre de haut
-
Livraison brute-vitrine à charge preneur
-
Fluides en attente-gaine technique dédiée jusqu'en toiture










