




Le 843
843 Avenue de la République
59700 Marcq-en-Baroeul
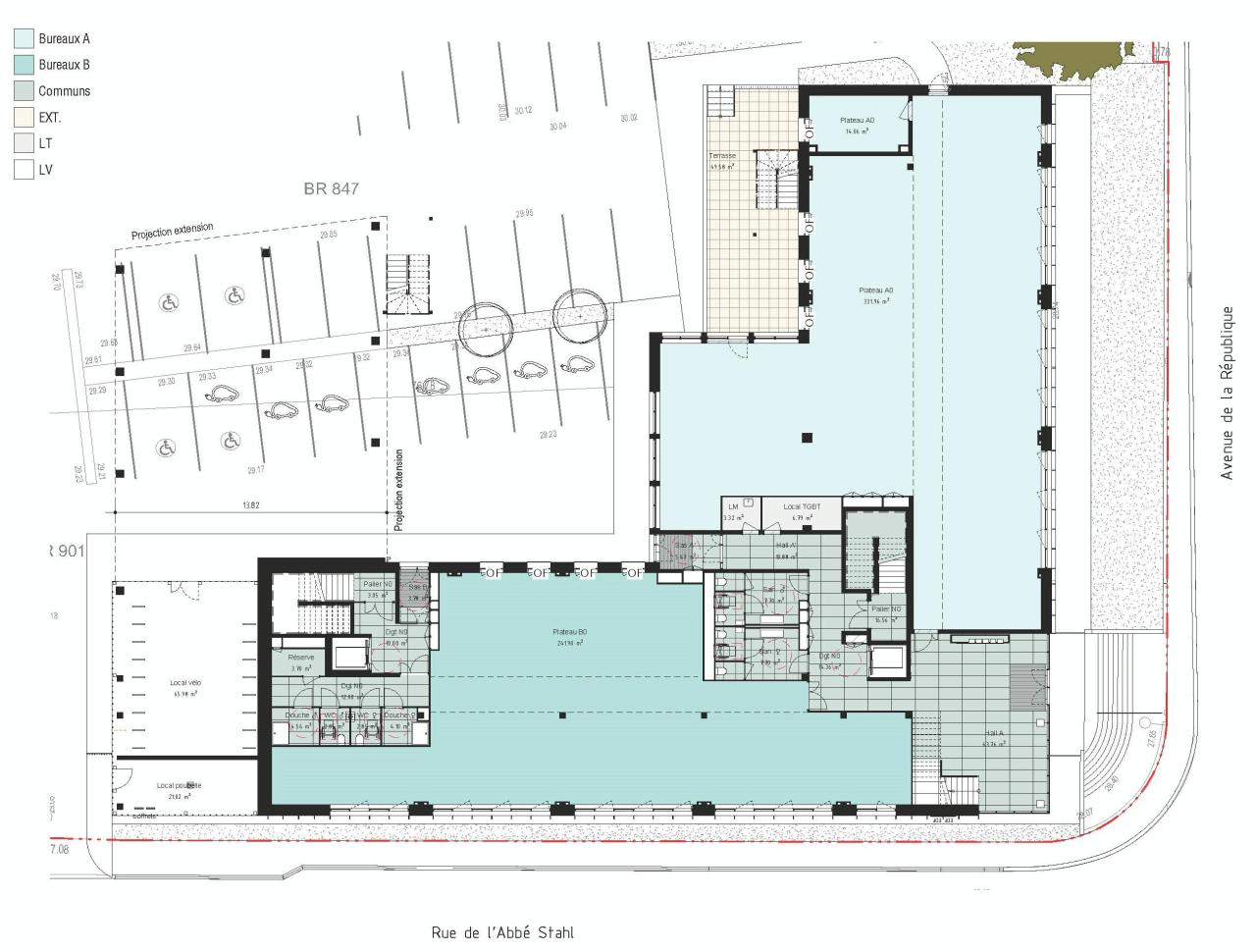
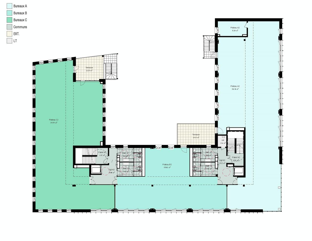
3 432 m²
Divisible dès 231 m²
à partir de 225 €
HT/HC/m²/an
Disponibilité : 18 mois après accord

Benjamin GOUSSET
Description
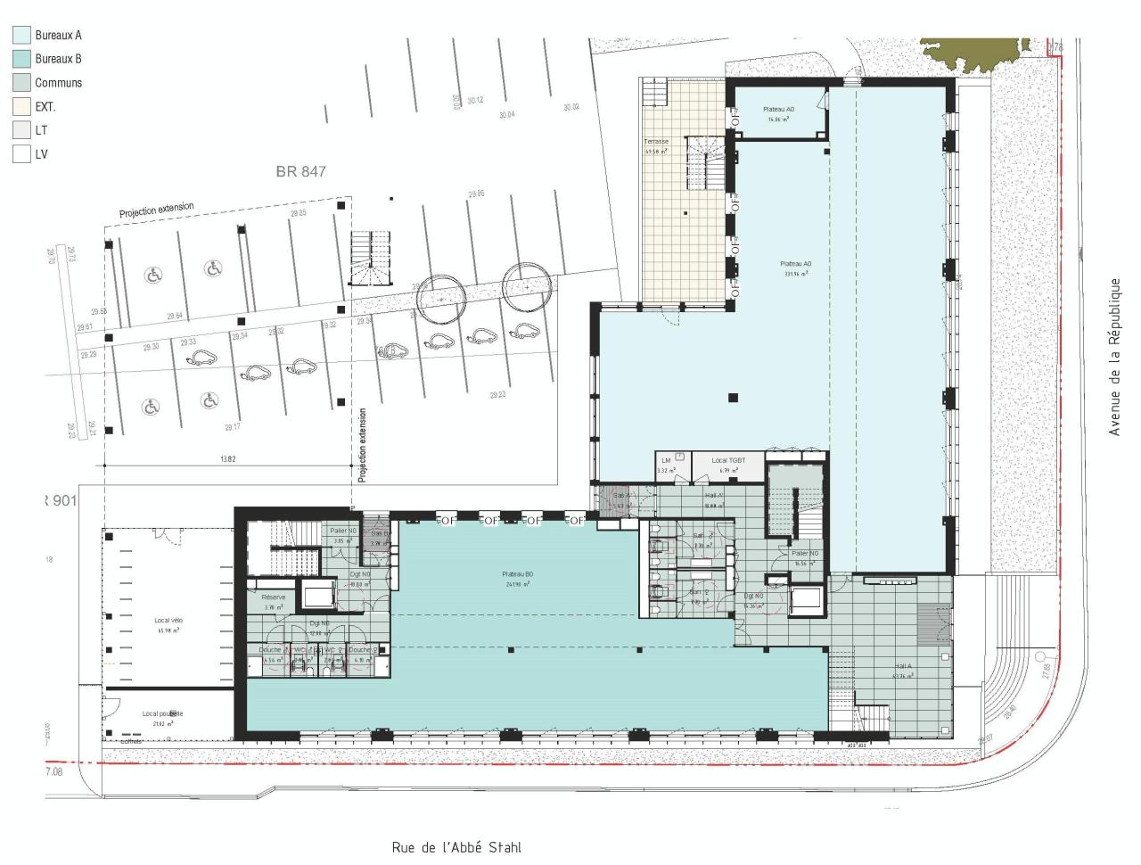
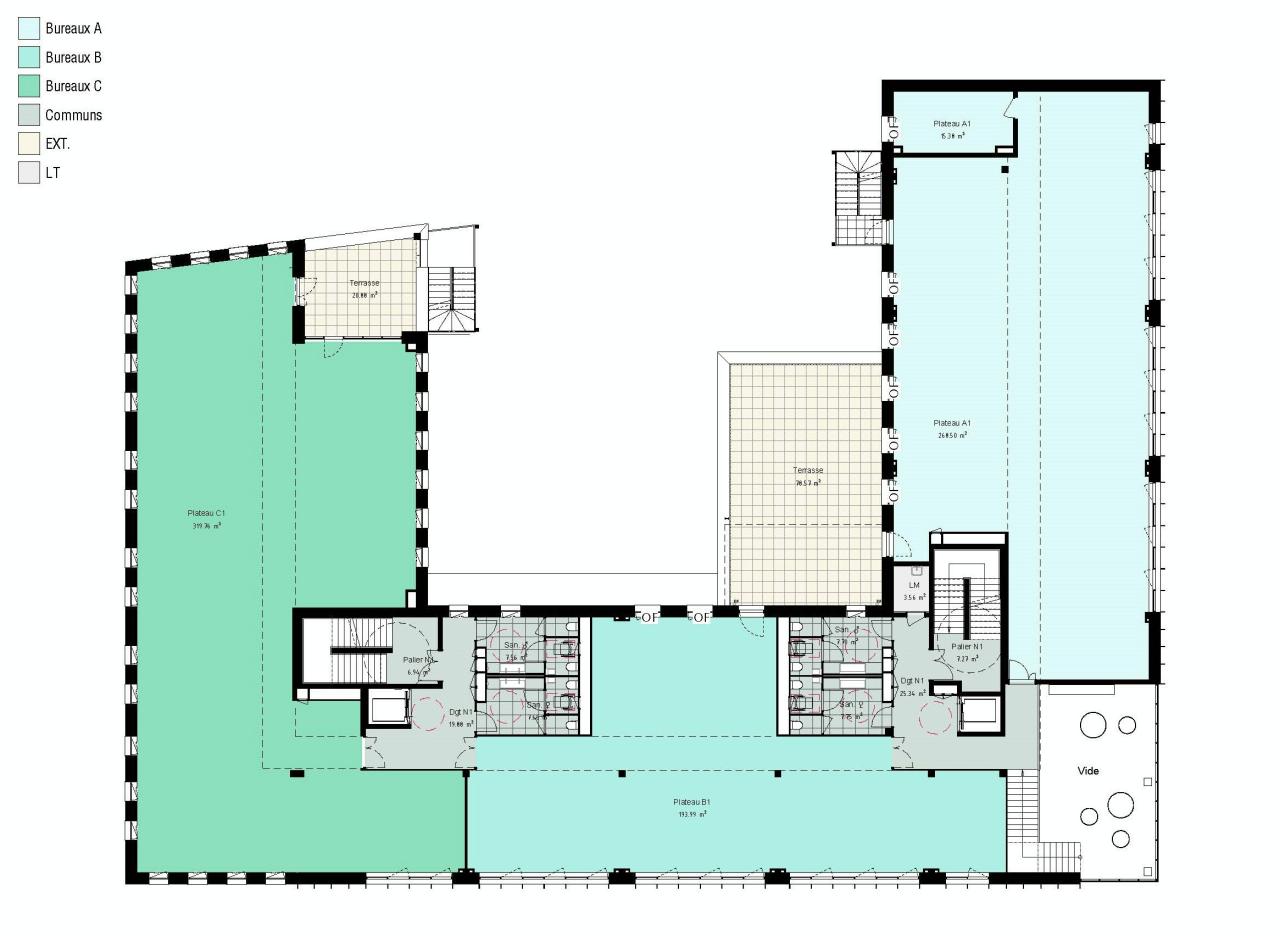
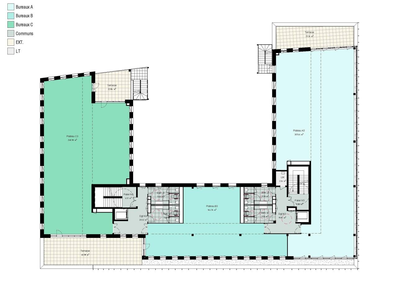
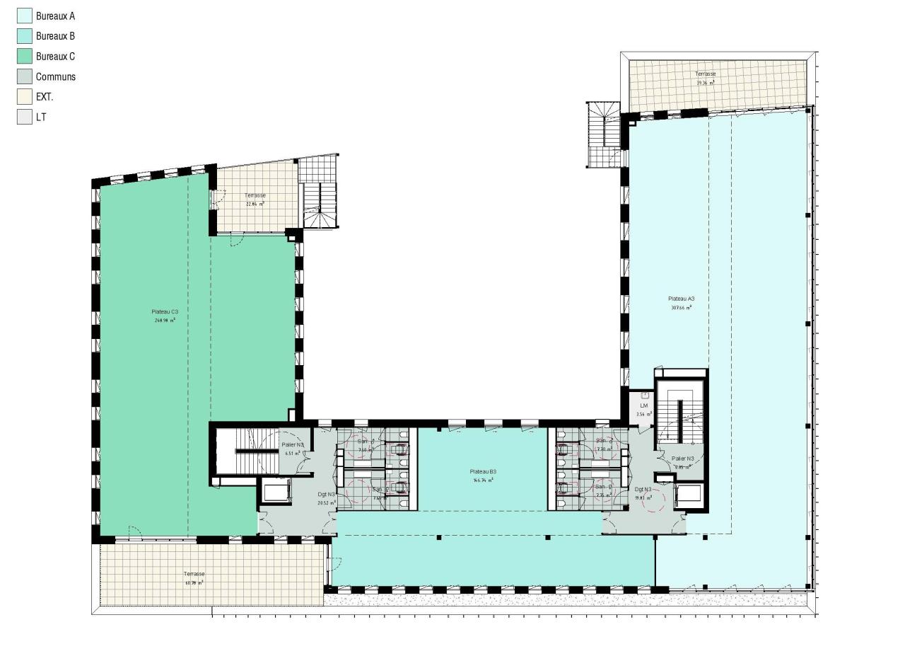
Bureaux à louer sur l'Avenue de la République de Marcq-en-Barœul.
Nouveau programme de bureaux, situé à Marcq-en-Baroeul – 843 avenue de la République
BNPPRE Présente : A LOUER Nouveau Programme de Bureaux à Marcq-en-Baroeul
Adresse : 843 Avenue de la République, Marcq-en-Baroeul
BNPPRE est fier de vous présenter ce nouveau programme immobilier de bureaux, idéalement situé au coeur de Marcq-en-Baroeul. Conçu pour répondre aux besoins des entreprises locales et des acteurs économiques de la région, ce projet offre des espaces de travail modernes et fonctionnels.
Caractéristiques Clés :
- Emplacement Stratégique : Situé sur l'avenue de la République, ce projet bénéficie d'une accessibilité exceptionnelle. Il est directement connecté aux principaux axes routiers de la métropole lilloise, facilitant un accès rapide au centre-ville de Lille et aux grands pôles économiques environnants.
- Transports en Commun : Station de Tramway "BUISSON" à 270 m, gare Lille flandres à 10 minutes en tramway, station V'Lille "Buisson" à moins de 100 mètres. Le HUB des Gares de Lille est accessible en seulement 12 minutes à vélo.
- Innovation et Qualité : Ce développement allie innovation, qualité de construction et respect des normes environnementales actuelles, offrant un cadre de travail idéal pour les entreprises soucieuses de leur impact écologique.
- Délais de Réalisation :
- Démarrage des travaux : mars/avril 2025
- Livraison prévisionnelle : T3 2026
- Bureaux à louer Marcq-en-Baroeul
- Immobilier d'entreprise Lille
- Espaces de travail modernes
- Accessibilité bureaux Lille
- Développement immobilier durable
- Emplacement stratégique Marcq-en-Baroeul
- Transports en commun Lille
- BNPPRE nouveaux projets
Toutes nos offres sur https://www.bnppre.fr/bureau/nord-59/
Services & prestations
Type / Etat du bâtiment
-
Etat des locaux : Rénové Uniquement les parties communes










