




20 Rue Denis Papin
59650 Villeneuve-d'Ascq
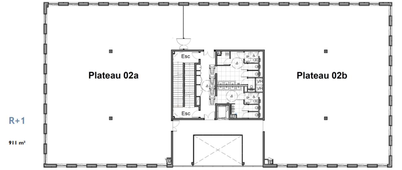
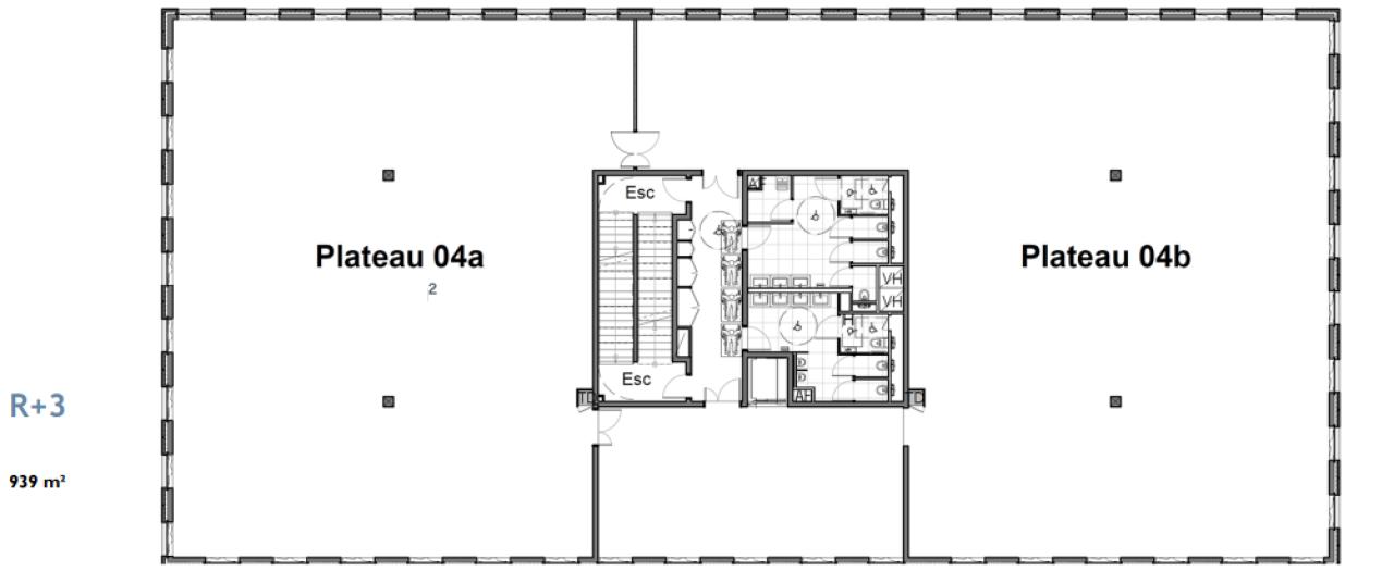
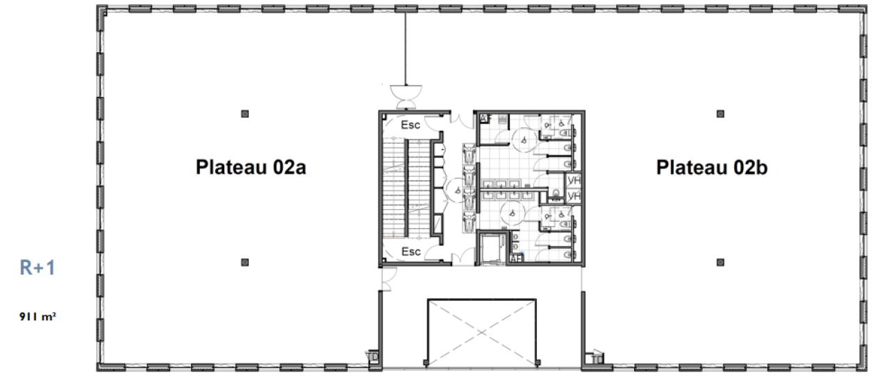
3 660 m²
195 €
HT/HC/m²/an
Disponibilité : 01/01/2027

Etienne DARTOIS
Description
Découvrez vos futurs bureaux, disponibles à la location sur Villeneuve d'Ascq.
Profitez d'une localisation idéale au cœur du Businesspole, à proximité immédiate d'Euralille et des gares Lille Flandres et Lille Europe.
Découvrez cet immeuble de bureau, le B2, situé au sein du BusinessPôle Les Près à Villeneuve d'Ascq.
L'actif, disponible en R+4, est complété de 100 places de stationnement, dont 60 en sous-sol.
5 raisons de s'implanter au sein du Businesspole :
Une localisation "prime" en adéquation avec le recentrage des utilisateurs sur des hubs structurés & connectés.
Un atout discriminant en termes de vecteur d'image et de politique RSE des entreprises.
Des immeubles efficients, en lien direct avec les problématiques environnementales et bas carbone.
Le "mieux-être" au bureau, favorisant le recrutement et le retour des collaborateurs en présentiel
Un environnement calme et arboré
ACCESSIBILITÉ :
Le site B2 est un site hyper-connecté, grâce à sa connexion directe à Euralille et les gares de Lille (Lille Europe et Lille Flandres) :
Station "Les Près - E.Pisadi" à quelques mètres > Lille Flandres en 7 min (une rame de métro toutes les 90 secondes)
L'actif bénéficie également d'une desserte routière fluide :
Échangeur A22 à 700 mètres (Lille Gand).
Accès à 100 m à la Voie Rapide Urbaine (Paris, Valenciennes et Bruxelles).
Depuis plusieurs année, la MEL développe des solutions de mobilités douces (boulevard de l'Ouest, rues du Printemps et Denis Papin) permettant une excellente connexion au réseau "MEL en vélo". Dans la continuité, Businesspole propose aux utilisateurs :
Une capacité sur-numéraire de garages à vélos couverts parfois couplés à des vestiaires dédiés équipés de douches et de bornes de recharge pour batteries électriques dédiés ;
L'installation d'arceaux aux points névralgiques ;
Le lancement d'une réflexion sur l'implémentation d'un plan de mobilité à l'échelle du Businesspole.
SERVICES :
Les utilisateurs bénéficieront au sein même du Businesspole de nombreux services :
Restauration (food-truck 3 jours par semaine, boulangerie Louise, Marie Blachère, Sogood, La Famille, KFC, McDo, 3 Brasseurs, DelArte, La Taverne du P'tit Wasquehal,...)
Alimentation (Chronodrive, Cora, O'tera, Les Serres des Près, Picard,...)
Activités sportives (salle de sport, Decathlon, Futsal, centre nautique de Babylone,...)
Services divers (crèche, pharmacie, station service, ...)
PRESTATIONS :
Façades :
Bardage en panneaux plans architecturés, finition acier laqué plein
Menuiseries aluminium, vitrage haute performance. Isolation par l'extérieur
Etanchéité multicouche sur isolant en toiture
Structure :
Fondations sur pieux
Structure poteau poutre
Plancher béton à inertie lourd
Equipements :
Ventilation double-flux haut rendement
Chauffage par pompes à chaleur réversibles
Panneaux solaires pour eau chaude sanitaire
Equipement courant fort en plinthe périphérique : 3 PC par poste de travail
Double Ascenseurs
Finitions :
Faux plafond minéral acoustique
Peintures satinées
Moquette en plateaux
Revêtement PVC en cafétéria
Entrée RDC et Sanitaires carrelé
Ne ratez pas cette opportunité et planifiez votre visite rapidement en nous contactant !
Toutes nos offres sur https://www.bnppre.fr/bureau/nord-59/
Services & prestations
Equipements
-
Ascenseurs : Double Ascenseur
-
Faux plafond : Minéral acoustique
-
Sol bureaux : Moquette
-
Type de chauffage : Chauffage par pompes à chaleur réversibles
Informations complémentaires
-
Panneaux solaires pour eau chaude sanitaire










