




2/4 Rue Denis Papin
59650 Villeneuve-d'Ascq
605 m²
185 €
HT/HC/m²/an
Disponibilité : Immédiate

Etienne DARTOIS
Description
BUSINESSPOLE LES PRES
Bureaux à louer à Villeneuve-d'Ascq
Découvrez cet immeuble neuf de bureau, situé au sein du BUSINESSPOLE LES PRES à Villeneuve d'Ascq.
Nous vous proposons à la location, cette surface de bureaux d'un immeuble neuf en RDC.
5 raisons de s'implanter au sein du Businesspole :
- Une localisation « prime » en adéquation avec le recentrage des utilisateurs sur des hubs structurés & connectés.
- Un atout discriminant en termes de vecteur d'image et de politique RSE des entreprises.
- Des immeubles efficients, en lien direct avec les problématiques environnementales et bas carbone.
- Le « mieux-être » au bureau, favorisant le recrutement et le retour des collaborateurs en présentiel
Un environnement calme et arboré
ACCESSIBILITÉ :
Le site bénéfice d'une connexion directe à Euralille et les gares de Lille (Lille Europe et Lille Flandres) :
- Station « Les Près - E. Pisadi » à quelques mètres > Lille Flandres en 7 min (une rame de métro toutes les 90 secondes)
L'actif bénéficie également d'une desserte routière fluide :
- Échangeur A22 à 700 mètres (Lille Gand).
- Accès à 100 m à la Voie Rapide Urbaine (Paris, Valenciennes et Bruxelles).
Depuis plusieurs année, la MEL développe des solutions de mobilités douces (boulevard de l'Ouest, rues du Printemps et Denis Papin) permettant une excellente connexion au réseau 'MEL en vélo'.
SERVICES :
Les utilisateurs bénéficieront au sein même du Businesspole de nombreux services :
- Restauration (, boulangerie Louise, Marie Blachère, Sogood, La Famille, KFC, McDo, 3 Brasseurs, DelArte, La Taverne du P'tit Wasquehal,...)
- Alimentation (Chronodrive, Cora, O'tera, Les Serres des Près, Picard,...)
- Activités sportives (salle de sport, Decathlon, Footsal, centre nautique de Babylone,...)
Services divers (crèche, pharmacie, station service, futur plateau santé, future offre d'hébergement, coworking, conciergerie d'entreprise)
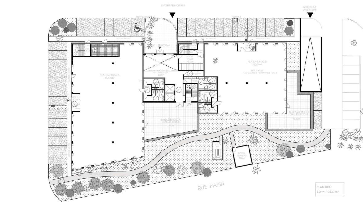
PRESTATIONS - RDC :
- ERP 5ème catégorie
- Entrée indépendante
- Parkings attitrés
- Terrasse
- ERP 5ème Catégorie :
- Type W : administration, banque, bureaux
- Type R : enseignement & formation
- 13 parkings dédiés
- Sol à la charge du Preneur
N'hésitez pas à planifier votre visite rapidement en nous contactant !
Toutes nos offres de bureaux sur https://www.bnppre.fr/bureau/nord-59/
Services & prestations
Equipements
-
Climatisation : Réversible
-
Eclairage Bureaux : Luminaires led
-
Faux plafond
-
Sol bureaux : Plancher technique
Extérieurs
-
Terrasses - jardins : Terrasses
Normes, Certifications et Labels
-
Catégorie ERP : 5
Type / Etat du bâtiment
-
Etat des locaux : Neuf










