




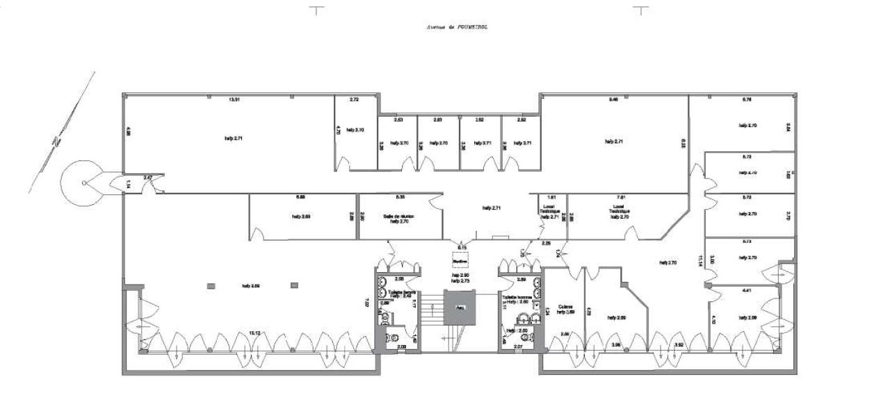
Location Bureau 174 m²
69300 Caluire-et-Cuire
174 m²
140 €
HT/HC/m²/an
Disponibilité : Immédiate

Odine KLEIN
Description
À LOUER – BUREAUX – Les Portes Du Rhône -CALUIRE-ET-CUIRE
Ces bureaux lumineux offrent un environnement de travail calme et professionnel, aux portes de Lyon. Implantés dans un secteur dynamique à proximité immédiate de la Voie Verte de la Dombes et du Parc de la Tête d’Or, ils bénéficient d’un cadre verdoyant tout en étant facilement accessibles. Les locaux se trouvent à seulement quelques minutes du centre-ville de Lyon, avec un accès rapide au périphérique nord (TÉO) et aux grands axes routiers (A6, A42).
Le site est également bien desservi par les transports en commun : lignes de bus TCL à proximité (C1, C2) et station de métro Cuire (ligne C) à moins de 10 minutes en voiture.
L'environnement immédiat est riche en commodités : restaurants, boulangeries, supermarchés, pharmacies et autres commerces se trouvent à distance piétonne. Plusieurs établissements de restauration rapide, brasseries et cafés permettent de déjeuner facilement sur place ou à emporter.
Les bureaux sont situés au sein d'un immeuble de bon standing et bénéficient de prestations de qualité.
Places de parking disponibles.
Services & prestations
Equipements
-
Ascenseurs : De 630 kgs
-
Climatisation : Air rafraîchi 2 tubes / 2 fils
Prestations de service
-
Parking : 143 Places
Type / Etat du bâtiment
-
Etat de l'immeuble : Etat d'usage










