




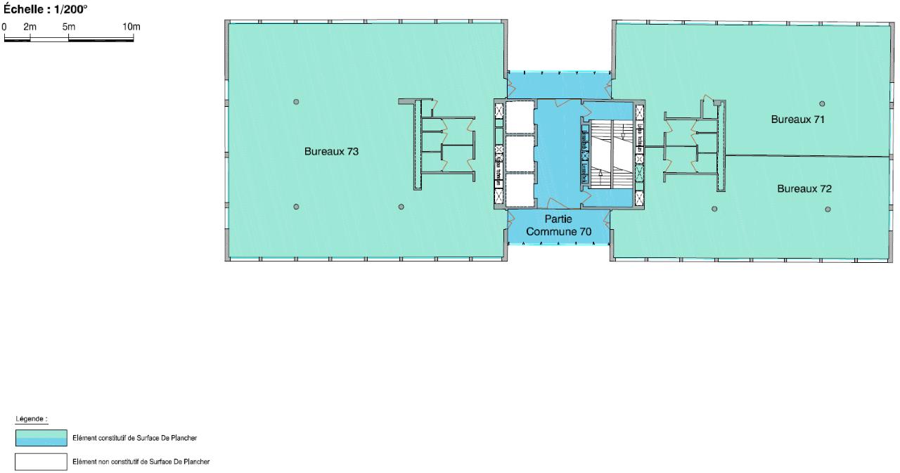
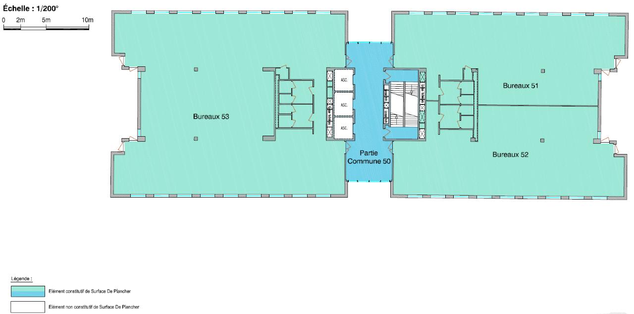
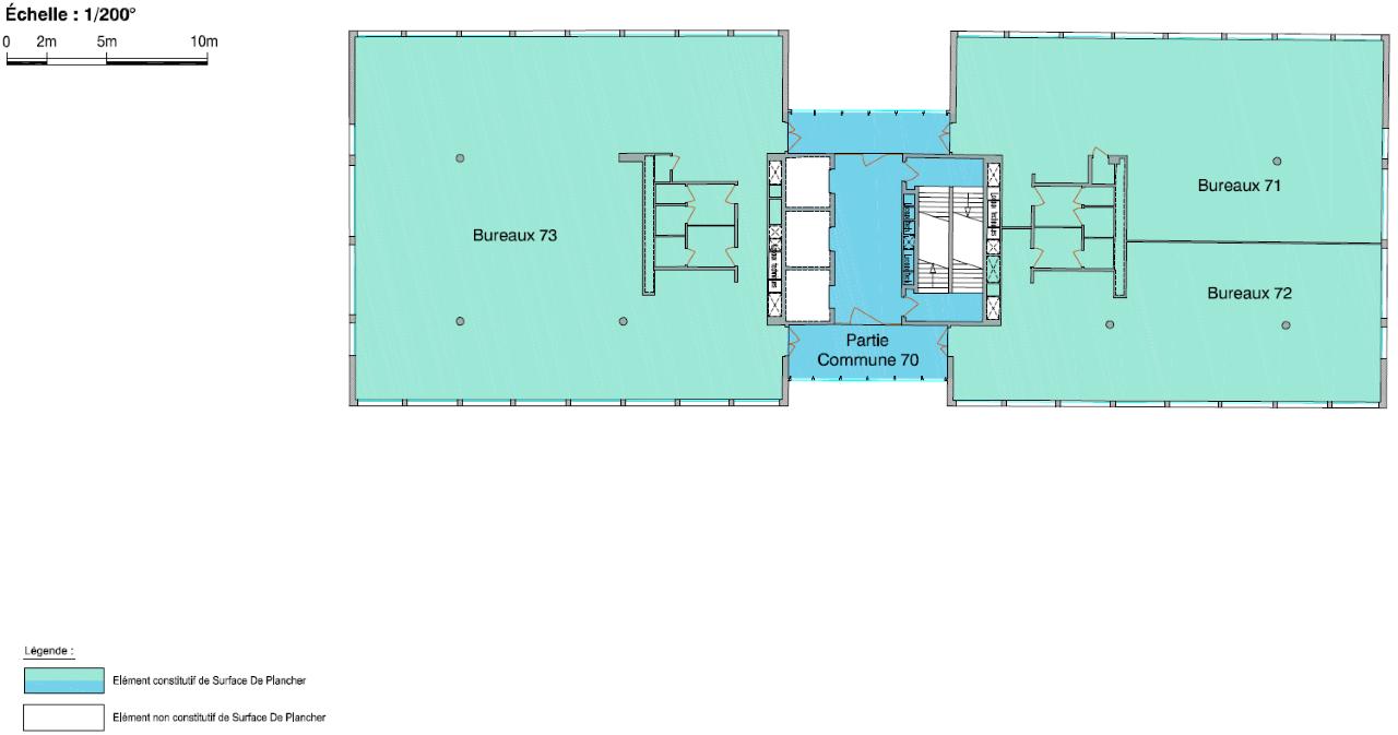
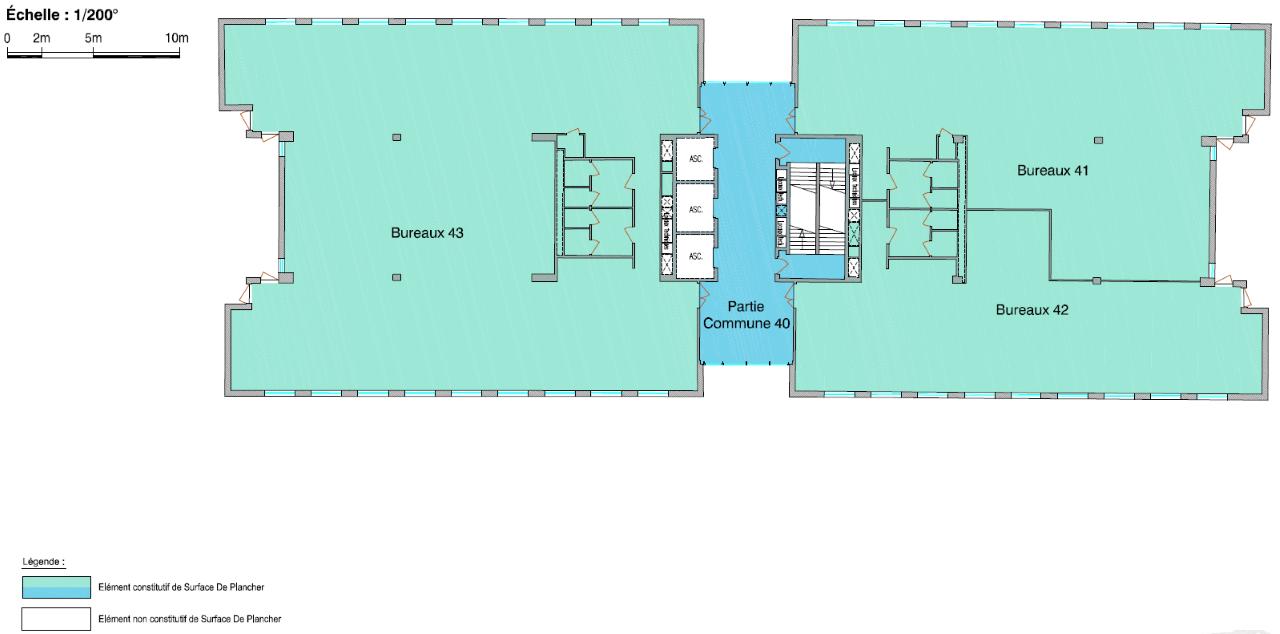
Location Bureau 1 443 m²
69006 Lyon
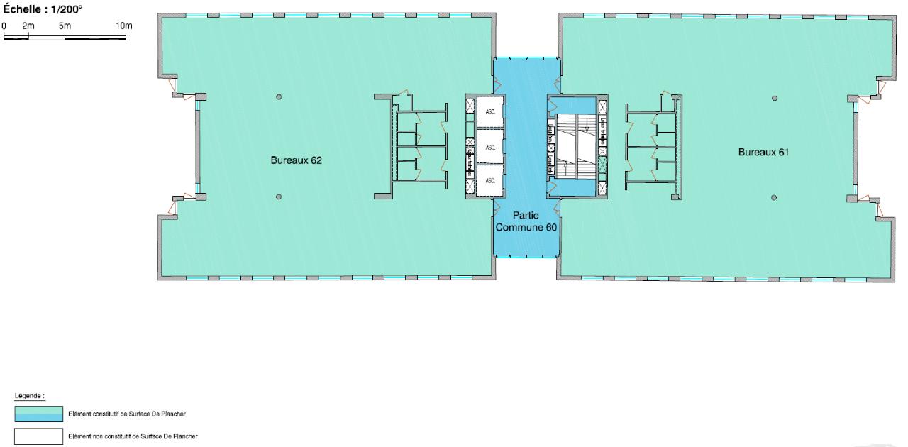
1 443 m²
Divisible dès 116 m²
à partir de 250 €
HT/HC/m²/an
Disponibilité : Immédiate

Ludovic NE
Description
CITE INTERNATIONALE
Lyon 06
Cité Internationale, dans un immeuble de standing au pied du Parc de la Tête d’Or nous vous proposons des surfaces entièrement rénovées en étage élevé. Une terrasse panoramique et un service de conciergerie dans l’immeuble complète ces biens.
Quartier le plus huppé de Lyon, le 6ème arrondissement est desservi par le boulevard des Belges, le cours Franklin Roosevelt, l’avenue Foch et la rue Duquesne. C’est un quartier animé, composé de beaux immeubles de logements, d’hôtels particuliers, de bureaux parmi lesquels le place Vendôme, le 55 Foch …, de nombreux commerces et du Parc de la Tête d’Or.
C’est à proximité de ce parc et le long du quai Charles de Gaulle que s’est développée la Cité Internationale, seul quartier d’affaires structuré du 6ème.
Services & prestations
Aménagements
-
Aménagement des bureaux : Double entrée indépendante
-
Bureaux cloisonnés : Lot livré cloisonné et rénové
Equipements
-
Ascenseurs : Ascenseurs triplex
-
Climatisation : Réversible
-
Faux plafond : Avec éclairage basse luminescence encastré
-
Faux plancher : Technique
-
Fenêtres : Vitrées
-
Sol bureaux : Moquette
Hauteurs
-
Hauteur sous-plafond : 2,70 mètre(s)
Prestations de service
-
Conciergerie
-
Parking : LPA / 1400€ HT HC / U / an
-
Restauration : Open space, bureaux individuels, salle de réunion et coin cuisine
-
Sécurité : Contrôle d'accès badge
Extérieurs
-
Terrasses - jardins : Panoramique au R+7
Type / Etat du bâtiment
-
Etat de l'immeuble : Seconde main
-
Etat des locaux : Etat d'usage, Rénové
Informations complémentaires
-
Gestion technique centralisée, Parking LPA - 1 400€ HT HC /U/an










