




Vente Bureau 374 m²
69006 Lyon
374 m²
1 395 000 €
HT/HD
Disponibilité : Immédiate

Ludovic NE
Description
RUE LIEUTENANT COLONEL PREVOST
LYON 06
Offre rare à vendre, cœur 6ème à deux pas du Parc de la Tête d’Or nous vous présentons des bureaux dans un immeuble de standing avec un accès indépendant.
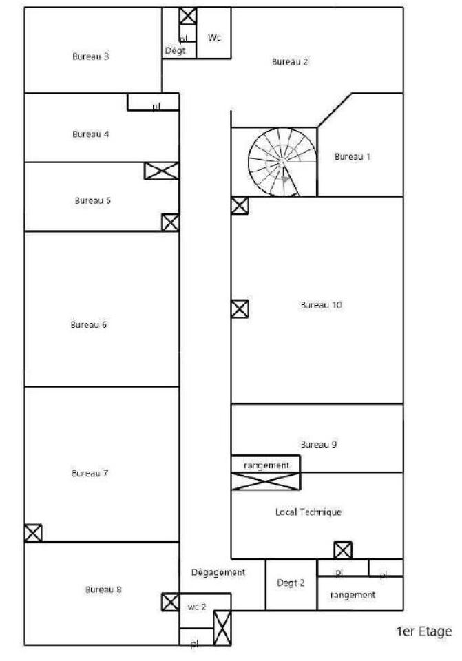
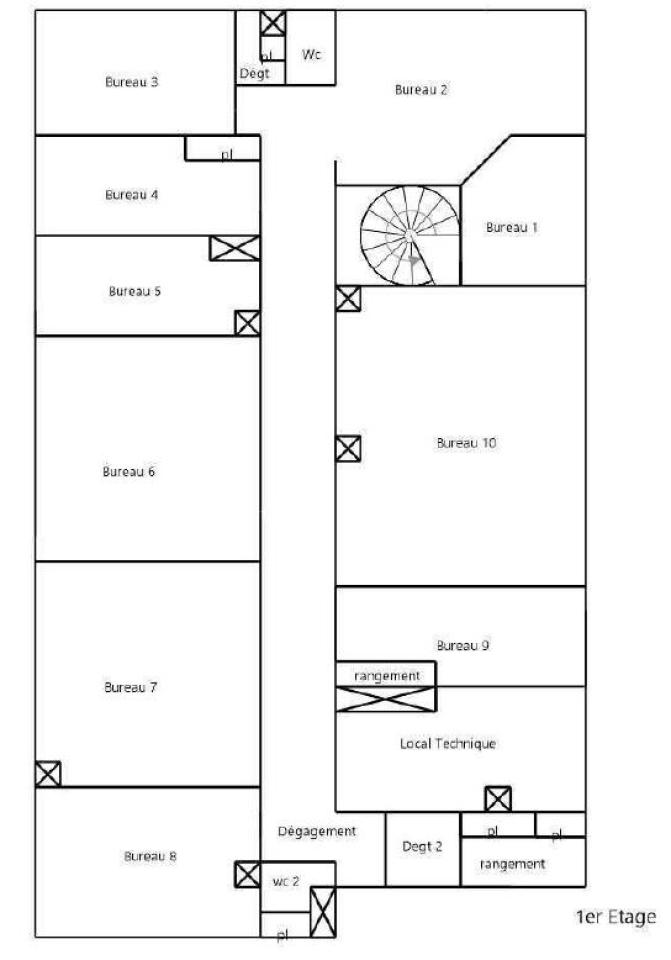
Ces bureaux sont cloisonnés et câblés, agrémentés de plusieurs box en sous-sol et caves, il faut prévoir une modernisation des lieux. Vous y trouverez plusieurs balcons privatifs donnant sur un jardin intérieur accessible aux occupants de l’immeuble. A voir rapidement
LYON 6ème
Quartier le plus huppé de Lyon, le 6ème arrondissement est desservi par le boulevard des Belges, le cours Franklin Roosevelt, l’avenue Foch et la rue Duquesne. C’est un quartier animé, composé de beaux immeubles de logements, d’hôtels particuliers, de bureaux parmi lesquels le place Vendôme, le 55 Foch …, de nombreux commerces et du Parc de la Tête d’Or.
C’est à proximité de ce parc et le long du quai Charles de Gaulle que s’est développée la Cité Internationale, seul quartier d’affaires structuré du 6ème.
Services & prestations
Aménagements
-
Accès Pers. Mobilité Réduite
-
Bureaux cloisonnés
Equipements
-
Climatisation
-
Câblage informatique
Prestations de service
-
Parking : 2 box doubles et 2 box simples
Extérieurs
-
Terrasses - jardins : Balcons, jardin accessible dans l'immeuble
Type / Etat du bâtiment
-
Etat de l'immeuble : Seconde main
Informations complémentaires
-
Frais d'agence charge vendeur 50 000 € TTC










