




Location Bureau 169 m²
69002 Lyon
169 m²
360 €
HT/HC/m²/an
Disponibilité : Immédiate

Odine KLEIN
Description
Place Saint Nizier
Lyon 2ème
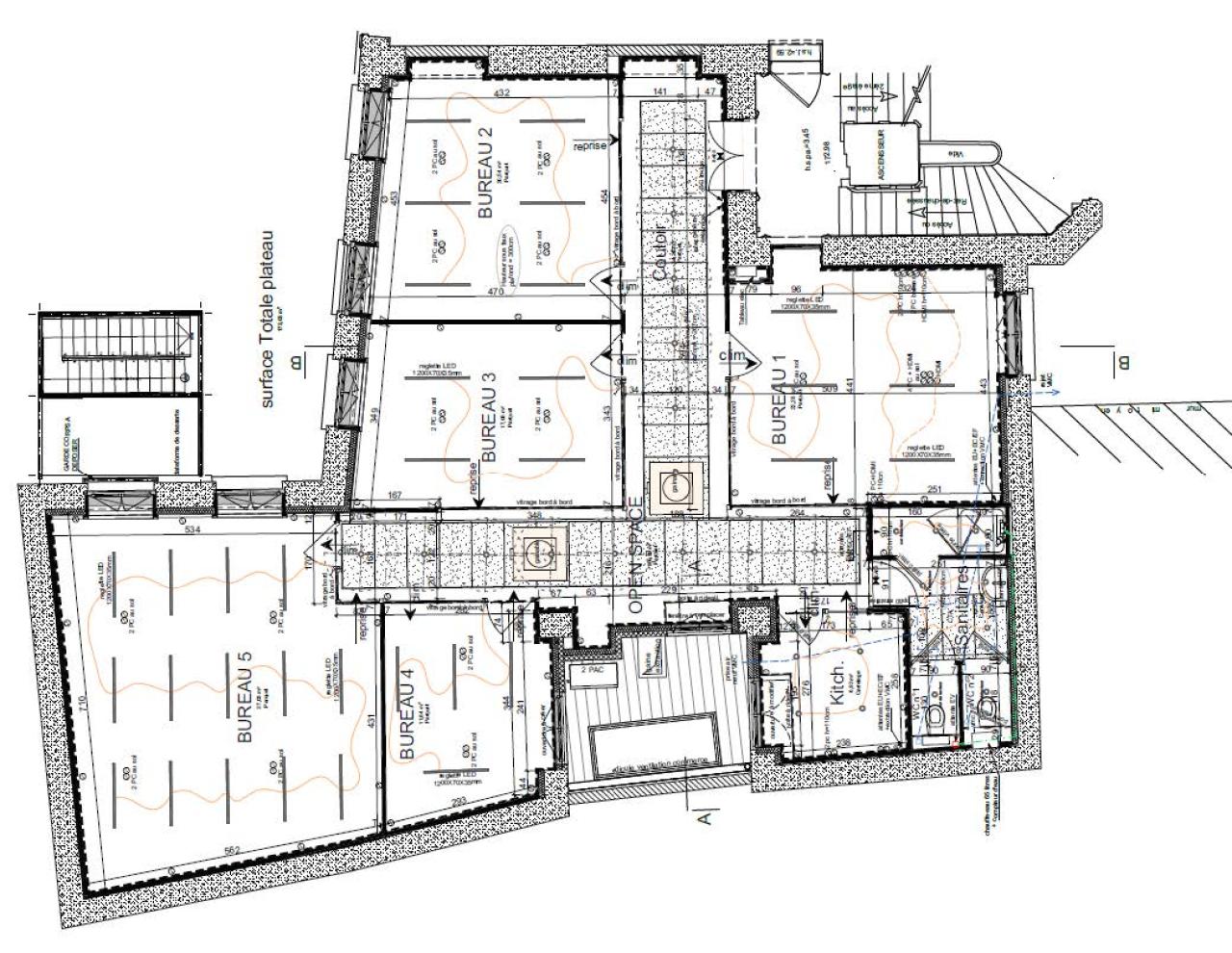
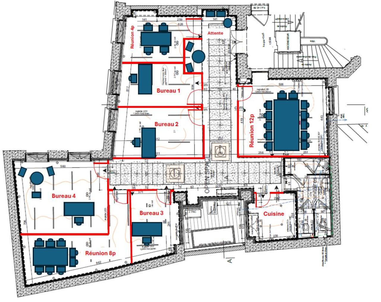
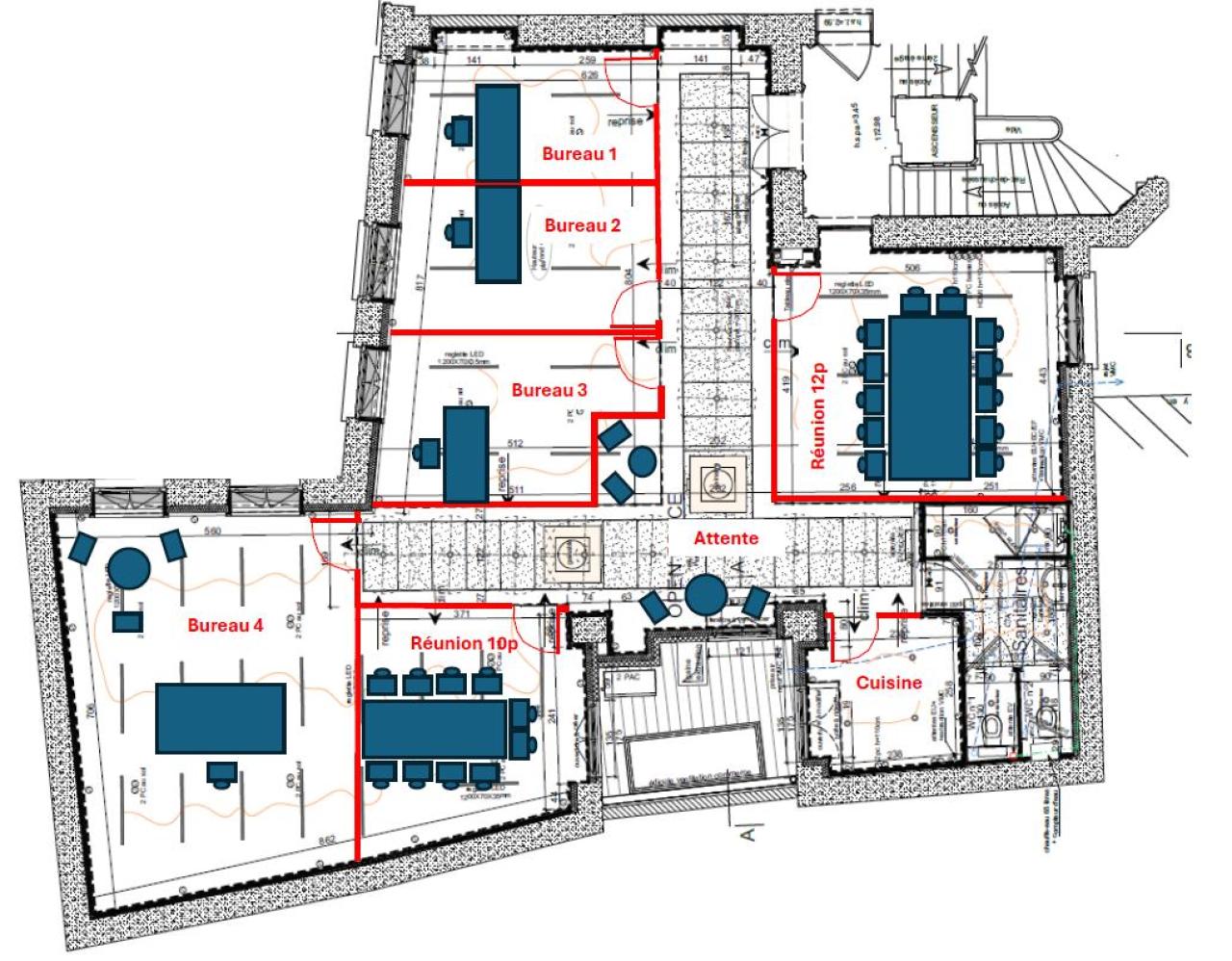
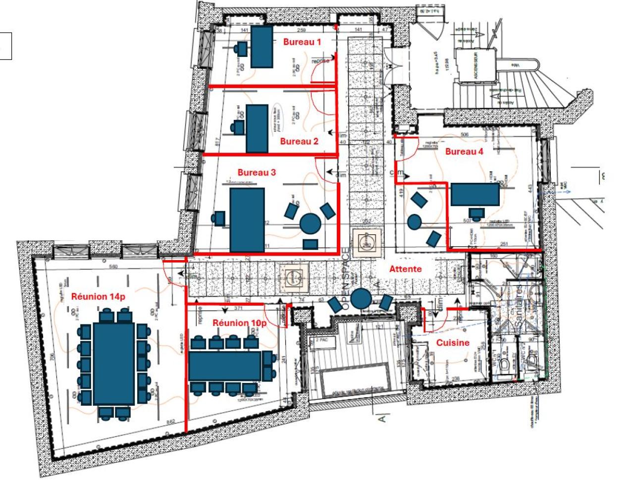
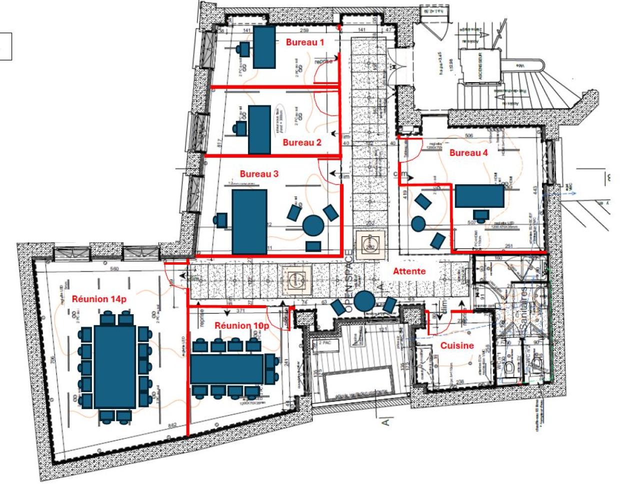
Plateau de bureaux premium – Lyon 2 Presqu’île – Vue exceptionnelle sur l’église Saint-Nizier
Bien rare – Offre d’exception sur le marché tertiaire lyonnais
Situé au cœur de la Presqu’île, ce plateau de bureaux haut de gamme entièrement rénové bénéficie d’un emplacement stratégique au centre de Lyon 2, avec une vue remarquable sur l’église Saint-Nizier. Un bien rare offrant une adresse prestigieuse au sein d’un secteur tertiaire particulièrement dynamique.
Localisation stratégique & accessibilité optimale
Idéalement situé en hypercentre, ce plateau de bureaux profite d'une desserte exceptionnelle :
- À proximité immédiate des transports en commun (métro, bus, tramway)
- Accès rapide aux gares Part-Dieu et Perrache
- Nombreux parkings publics LPA à proximité
- Accès voiture fluide grâce aux axes principaux de la Presqu'île
- Proximité des parcs relais et de toutes les commodités du centre-ville
Prestations haut de gamme Rénovation complète
Ce bien bénéficie d'aménagements rares sur le marché :
- Climatisation gainable neuve
- Ventilation double flux
- Installations électriques et réseaux informatiques intégralement renouvelés
- Aménagement en open space modulable
- Isolation acoustique renforcée
- Menuiseries bois neuves
- Parquet en chêne bâton rompu, finitions premium
- Façade d'immeuble rénovée
- Immeuble doté d'un ascenseur
- Local à vélo, douche, et sanitaires neufs
- Charges maîtrisées, adaptées au tertiaire de qualité
Un bien d'exception sur le marché immobilier tertiaire de Lyon
Avec son adresse emblématique, ses prestations premium et sa rénovation intégrale, ce plateau de bureaux constitue une opportunité unique pour une entreprise souhaitant s'implanter dans l'un des emplacements les plus recherchés de Lyon.
Services & prestations
Aménagements
-
Accès Pers. Mobilité Réduite : Ascenseur
-
Effectif théorique
Normes, Certifications et Labels
-
Catégorie ERP : 5
Type / Etat du bâtiment
-
Etat de l'immeuble : Rénové
Informations complémentaires
-
Aménagements des bureaux : Espaces ouverts, Ascenseurs, Climatisation : Réversible, Douches, Eclairage bureaux : Luminaires suspendus, Immeuble Copropriété, Sanitaires : Privatifs, Sols : Parquet, Source chauffage : Electrique, Sécurité : Contrôle d’accès – Vidéo surveillance, Type chauffage : Individuel










