




Location Bureau 5 674 m²
69100 Villeurbanne
5 674 m²
Divisible dès 659 m²
à partir de 175 €
HT/HC/m²/an
Disponibilité : Immédiate

Ludovic NE
Description
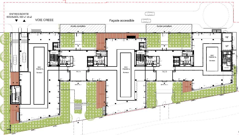
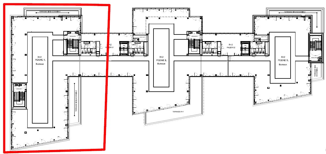
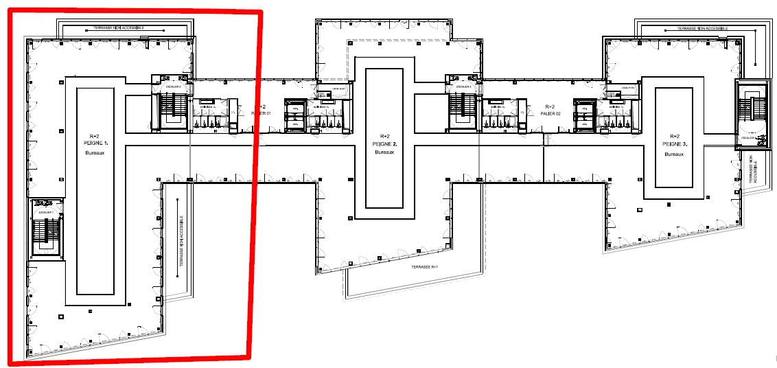
SADENA Villeurbanne Gare
Au pied du tramway, une alternative au secteur de la Part-Dieu.
Ancien ensemble de stockage de minerai et de métal, Sadena puise sa personnalité et ses matériaux dans son passé. Tout en proposant un design aéré et ventilé, résolument tourné vers l’avenir et les espaces verts du futur parc urbain. Ses 3 volumes en « peigne » évoquent le dynamisme et le mouvement.
Cet ensemble de bureaux bénéficie d'une situation géographique idéale, à moins de 3 kilomètres du pôle de loisirs et de commerces du Carré de Soie.
Plusieurs lignes de transports en communs desservent le secteur, dont la ligne de tramway T3 en pied d'immeuble. Les grands axes routiers sont rapidement accessibles grâce au boulevard périphérique Laurent Bonnevay situé à quelques minutes en voiture.
Services & prestations
Aménagements
-
Sanitaires : H/F Handicapés
Equipements
-
Ascenseurs : 4
-
Climatisation : Air rafraîchi
-
Eclairage Bureaux : Basse luminance
-
Faux plafond : Dal. fibres minéral.
-
Faux plancher
-
Gestion technique centralisée
-
Sol bureaux : Moquette
-
Source chauffage : Réversible en plafond
-
Type de chauffage : Ventioo convect en plafond
Hauteurs
-
Hauteur sous-plafond : 2,70 mètre(s)
Prestations de service
-
Parking : 39 Places
-
Sécurité : Contrôle d'accès
Normes, Certifications et Labels
-
Label actuel
Type / Etat du bâtiment
-
Etat de l'immeuble : Seconde main
-
Etat des locaux : Neuf










