



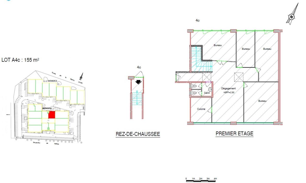
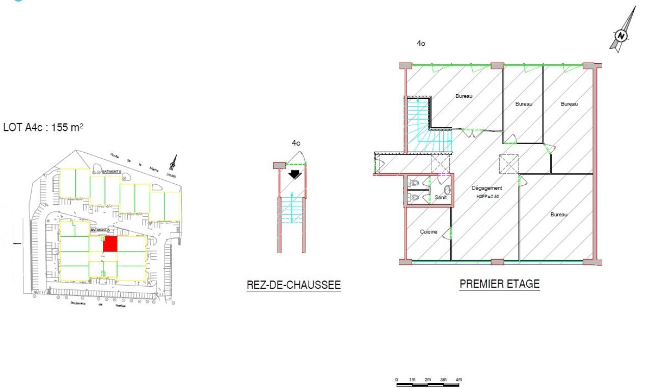
Location Bureau 155 m²
77420 Champs-sur-Marne
155 m²
110 €
HT/HC/m²/an
Disponibilité : Immédiate

Medina STEFANOVIC
Description
CHAMPS-SUR-MARNE (77)
A Louer
BNP PARIBAS REAL ESTATE vous propose 155 m² environ de Bureaux à Louer situé au 1er étage d'un immeuble à Champs-sur-Marne et disponible immédiatement.
Le Bien se situé à seulement 500 mètres de la Gare du RER A et à proximité de l'Autoroute A4.
Services & prestations
Equipements
-
Charge au sol Etage : 250,00 kg/m²
-
Eclairage Bureaux : Luminaires encastrés
-
Faux plafond
-
Revêtement mural
-
Sol bureaux : Moquette
-
Source chauffage : Gaz Aérothermes
-
Type de chauffage : Individuel
Prestations de service
-
Parking : 164 Places
Type / Etat du bâtiment
-
Etat de l'immeuble : Etat d'usage
-
Etat du terrain : Voirie lourde
Informations complémentaires
-
Chauffage par convecteurs électriques
-
Double vitrage










