




8 Chemin de la Mi-Voie
76300 Sotteville-lès-Rouen
565 m²
Divisible dès 265 m²
à partir de 60 €
HT/HC/m²/an
Disponibilité : Immédiate

Maxime LETHUILLIER
Description
A louer - Sotteville-Les-Rouen
À louer – Bureaux à Sotteville-lès-Rouen (proche Rouen)
BNP PARIBAS REALESTATE ROUEN vous propose à l location ces bureaux situés au sein d’un ensemble immobilier implanté dans la zone industrielle de Sotteville-lès-Rouen, ces deux plateaux de bureaux offrent un cadre de travail pratique, accessible et agréable.
Disponibles immédiatement
Ils se composent de :
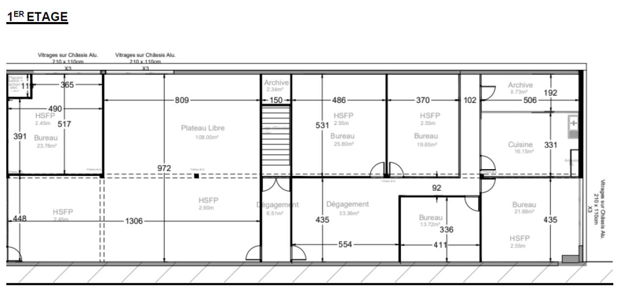
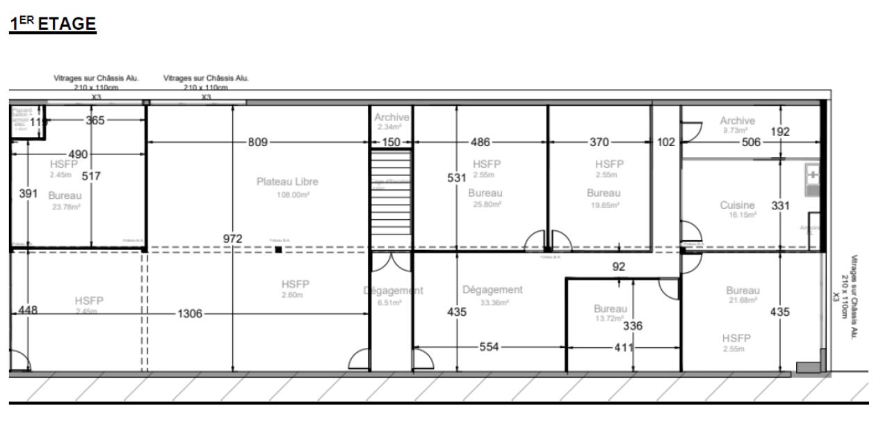
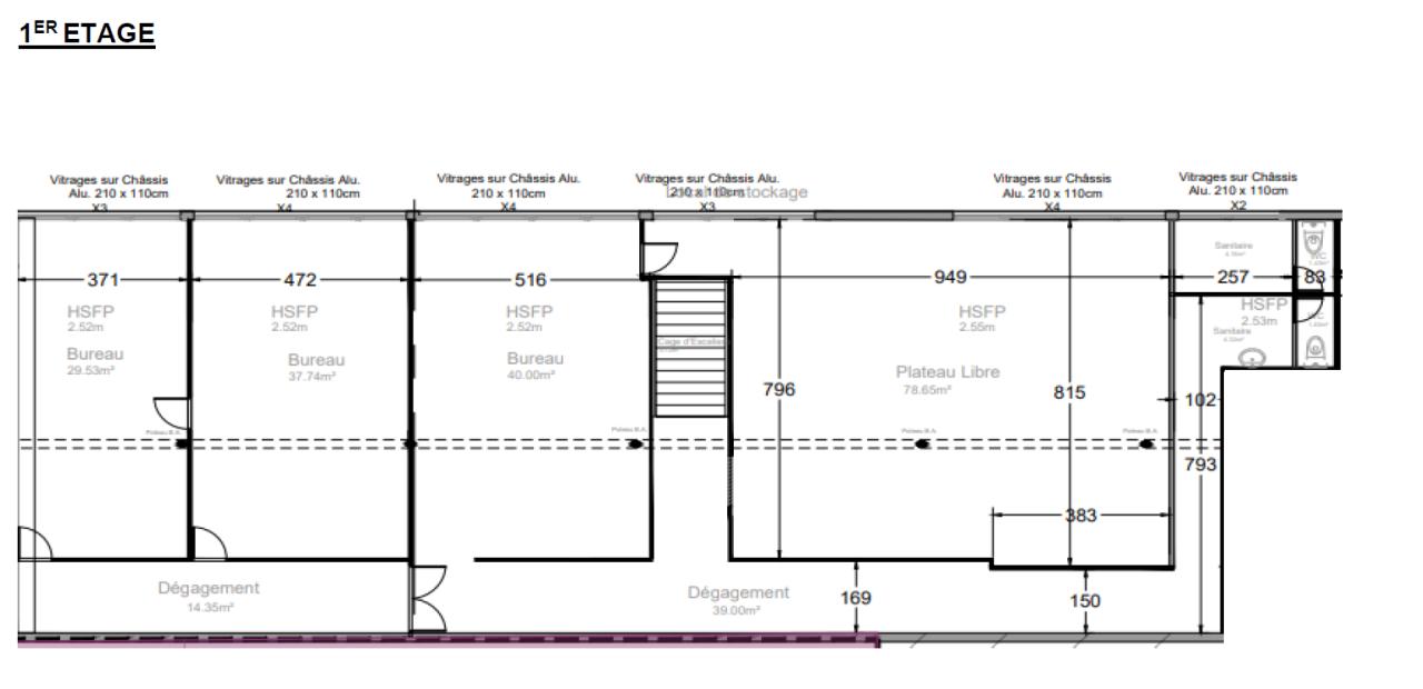
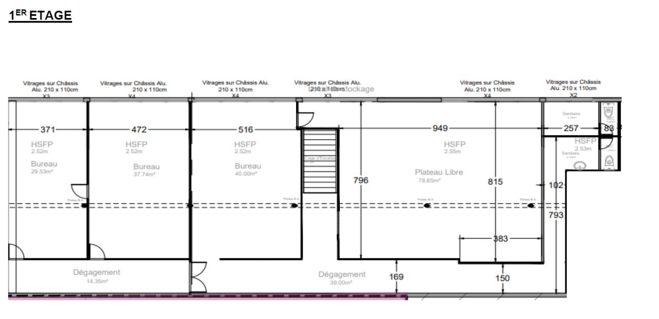
Un plateau de 265 m²
Un plateau de 300 m²
Les locaux sont situés au 1er étage d'un bâtiment sécurisé et disposent d'un chauffage au gaz, d'un compteur électrique individuel avec décompte, ainsi que d'un parking privatif au sein d'un site entièrement clos. La configuration permet une grande flexibilité d'aménagement selon vos besoins.
Environnement et accessibilité:
Implanté dans un secteur dynamique à proximité immédiate de Rouen, le site bénéficie d'une excellente desserte routière : accès rapide à l'autoroute A13 (Paris Caen) et aux grands axes reliant Rouen, Elbeuf et Le Grand-Quevilly.
Le quartier est également bien desservi par les transports en commun (bus et métro de l'agglomération rouennaise), facilitant ainsi les déplacements quotidiens des collaborateurs.
À proximité, vous trouverez commerces, services et restaurants, offrant un environnement pratique pour la pause déjeuner ou les besoins du quotidien
Services & prestations
Aménagements
-
Accès Pers. Mobilité Réduite : Oui, Oui
-
Aménagement des bureaux : Cloisonnés/Ouverts
-
Hall d'accueil
-
Salle informatique
-
Sanitaires
Equipements
-
Câblage informatique : RJ 45
-
Eclairage Bureaux : Luminaires encastrés
-
Faux plafond
-
Fenêtres
-
Source chauffage : Gaz
Prestations de service
-
Parking
Type / Etat du bâtiment
-
Etat de l'immeuble : Etat d'usage, Seconde main
-
Etat des locaux : Etat d'usage
Informations complémentaires
-
Compteur électrique avec décomptant










