




29 RUE DU PILIER
93300 Aubervilliers
7 706 m²
Divisible dès 358 m²
à partir de 300 €
HT/HC/m²/an
Disponibilité : immédiate

Antoine MALHERBE
Description
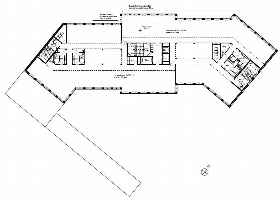
Nous vous proposons à la location un immeuble de bureaux neuf situé à 2 minutes du métro "Front Populaire", au cœur du Campus Condorcet. Ce nouveau quartier est animé par de nombreux commerces de proximité. Ces bureaux offrent de grands espaces aux dernières normes en vigueur et sur certains étages de grandes terrasses accessibles.
POPSQUARE, immeuble de bureaux à la location, est situé 29-31 rue Pilier à Aubervilliers (93) sur le Campus Condorcet. Installé conjointement sur les villes de Paris et d'Aubervilliers, le Campus Condorcet s'intègre pleinement dans la logique du Grand Paris.
Idéalement situé, il bénéficie en outre des programmes prévus ou en cours de réalisation sur le secteur de la Plaine et du développement des transports dans cette zone : la ligne 12 du métro sur la Place du Front Populaire, le tramway T3b dont le terminus se situe à la Porte de La Chapelle, le furtur T8 Sud et RER B à La Plaine Stade de France.
Services & prestations
Aménagements
-
Sanitaires : Privatif(s)
Equipements
-
Ascenseurs : 2
-
Climatisation
-
Eclairage Bureaux : Luminaires encastrés
-
Gestion technique centralisée
-
Sol bureaux : Moquette
Hauteurs
-
Hauteur sous-plafond : 2,70 mètre(s)
Prestations de service
-
Cafétéria
Extérieurs
-
Aire de livraison
-
Terrasses - jardins
Normes, Certifications et Labels
-
Certification : HQE
Type / Etat du bâtiment
-
Etat des locaux : Neuf
-
Immeuble indépendant










