




27 Rue de Paris
93000 Bobigny
10 115 m²
Divisible dès 500 m²
302 €
HT/HC/m²/an
Disponibilité : immédiate

Guillaume GARCIA
Description
IRRIGO se situe au sein de l'Ecocité, à 2,5kms du Boulevard Périphérique. Un site connecté menant directement au centre de Paris, au pied du métro Ligne 5. Il bénéficie d'une architecture harmonieuse associant aluminium, verrre et béton.Certification HQE Excellent et BREEAM Excellent.
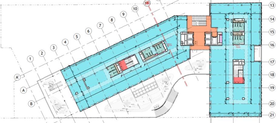
IRRIGO, immeuble indépendant situé 27-29 avenue de Paris à Bobigny (93), offre 16.300 m² de bureaux et services neufs à louer dans un cadre privilégié.
- Première opportunité d'implantation au sein de l'Écocité du Canal de l'Ourcq, le nouveau pôle de vie dynamique d'un Nord-Est parisien plébiscité par des utilisateurs tels que Hermès, Groupe Havas, BNP Paribas, Chanel...
- Au pied du métro, ligne 5, un site connecté, situé sur l'Avenue de Paris menant directement au centre de Paris.
- Capacité d'accueil de 1 320 postes.
- Architecture harmonieuse associant aluminium, verre et béton.
- Un ensemble s'articulant autour d'un vaste îlot végétal compose de deux jardins privatifs.
- La proximité de commerces et d'hôtels.
- Un projet visant les certifications HQE "Excellent" et BREEAM "Excellent".
IRRIGO est conçu pour participer à la qualité de vie quotidienne des utilisateurs, ainsi le coeur du site sera valorisé par de vastes jardins privatifs, avec un choix de végétaux variés favorisant la biodiversité.
Le programme a été pensé pour profiter pleinement du panorama offert par les berges du Canal de l'Ourcq.
De la conception des bâtiments à leur mode de fonctionnement, le site s'inscrit pleinement dans une logique de développement durable et de contrôle des dépenses énergétiques. Il permet une réduction de 30% de la consommation énergétique par rapport aux critères de la réglementation thermique 2012.
IRRIGO vise les certifications HQE et BREEAM "excellent". En favorisant l'éco-construction et l'éco-gestion, IRRIGO s'engage à maîtriser les impacts environnementaux, en accord avec la philosophie durable de l'Ecocité.
Cette démarche écologique et responsable est aussi le reflet des valeurs et de l'éthique portées par les entreprises qui s'y implanteront.
Services & prestations
Aménagements
-
Accueil
-
Accès Pers. Mobilité Réduite
-
Aménagement des bureaux : Cloisonnés/Ouverts
-
Sanitaires : Privatif(s)
Equipements
-
Ascenseurs : 4
-
Charge au sol Etage : 250,00 kg/m²
-
Climatisation : Air pulsé
-
Distribution chauffage
-
Distribution climatisation : Ventilo convecteur en allège
-
Eclairage Bureaux : Luminaires encastrés
-
Faux plafond : Dal. fibres minéral.
-
Fenêtres : Ouvrant
-
Gestion technique centralisée
-
Monte-charge : 1
-
Production climatisation : Autonome
-
Sol bureaux : Moquette
-
Source chauffage : Electrique
Hauteurs
-
Hauteur sous-plafond : 2,70 mètre(s)
Prestations de service
-
Cafétéria
-
Conciergerie
-
Fitness
-
Parking
-
Restauration
-
Sécurité : Contrôle d'accès, Contrôle d'accès
Extérieurs
-
Aire de livraison
-
Terrasses - jardins
-
Trame de façade : 1,35 mètre(s)
Normes, Certifications et Labels
-
Certification : BREEAM
Type / Etat du bâtiment
-
Etat de l'immeuble : Neuf
-
Etat des locaux : Neuf
-
Immeuble indépendant
-
Type d'immeuble : Grand Plateau










