




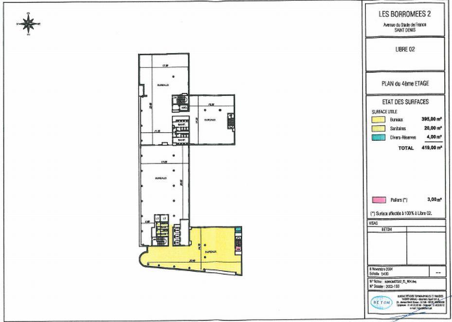
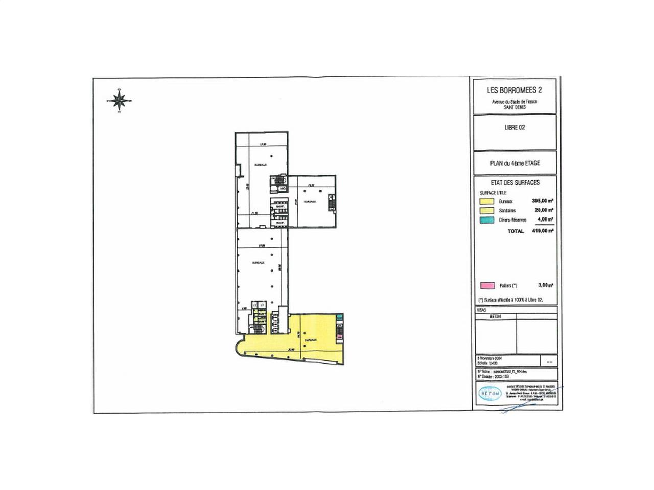
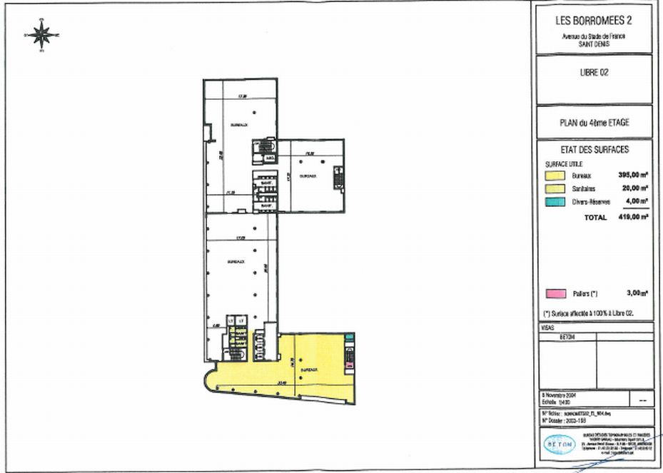
Location Bureau 901 m²
93210 La Plaine Saint-Denis
901 m²
158 €
HT/HC/m²/an
Disponibilité : Immédiate

Medina MERABTENE
Description
Nous proposons un plateau rénové de 900 m² dans un immeuble récent de bon standing dans un environnement tertiaire, bénéficiant d’une situation exceptionnelle à toute proximité du Stade de France et du RER B « La Plaine Saint-Denis - Stade de France »
Les locaux sont composés de deux grand plateaux traversants, au 4ème et dernier étage, très lumineux, agréables et faciles à aménager tant en open-space qu'en bureaux cloisonnés.
Le hall d'accueil à été fraichement rénové, l'immeuble bénéficie d'une caféteria et d'un restaurant inter-entreprises.
Services & prestations
Type / Etat du bâtiment
-
Etat des locaux : Rénové










