




4 Quai de Bercy
94220 Charenton-le-Pont
24 237 m²
Divisible dès 403 m²
à partir de 255 €
HT/HC/m²/an
Disponibilité : immédiate

Benoit FEUILLADE
Description
Votre campus multiservices aux portes de Paris !
Situé à l'Est de Paris, Rive de Bercy est un emplacement exceptionnel offrant des espaces de bureaux baignés de lumière avec une vue imprenable sur la Seine.
Entouré de nombreux espaces de services, de travail, de restauration et de détente, ce lieu unique offre un cadre de vie paisible et serein, fonctionnant comme un campus.
Rive de Bercy regorge de nombreux atouts qui contribuent à l'épanouissement de ceux qui y travaillent ou y passent du temps. Il incarne les tendances futures et répond aux attentes des nouvelles générations.
Les Points forts de l'immeuble :
Conçu comme un campus urbain dédié au bien être.
- 6 000 m² d'espace extérieurs avec des jardins paysagés, 1 zone guinguette, 1 terrasse aménagée et un patio accessible depuis les espaces de restauration.
- Fitness de 700 m² avec salle CrossFit, salle de musculation et salle de cours.
- Auditorium de 154 places
- Un Restaurant, un lounge, une zone de vente à emporter
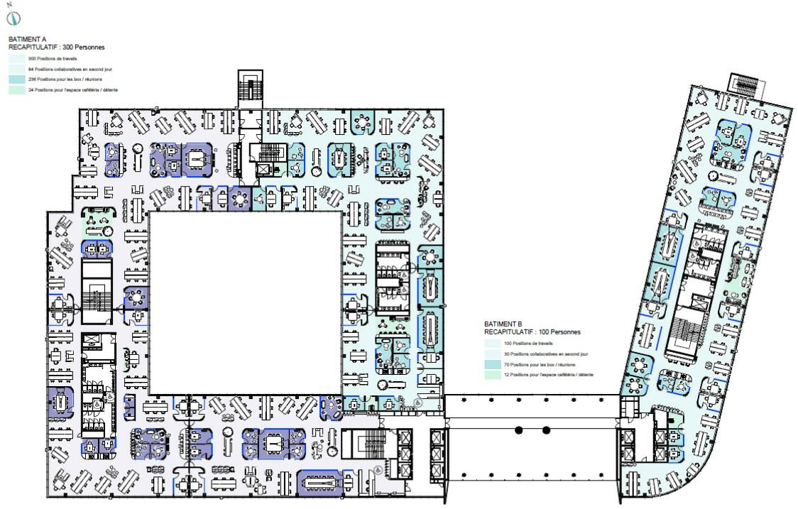
Plateaux efficaces
- Immeuble rénové par le cabinet Naço, utilisant les codes hospitaliers
- Immeuble Liberté de 9 133 m²
- Immeuble Arcade 1 de 14 714 m²
- Immeuble Arcade 2 de 7 442 m²
- Les bâtiments sont divisibles par plateaux à partir de 700 m²
- Le capacitaire est de 1 pour 11
- Plateaux entre 1 000 et 4 000 m² divisibles à partir de 700 m², avec 2 terrasses privatives.
Les accès :
- Parking de 587 places dont 18% pré-équipées de recharge électrique
- Création de 174 places dédiées à la mobilité douce dont 38% pré-équipées de recharge électrique
- La proximité de la ligne 8 (7 min) et 14 (11 min par bus)
- Voie cyclable pour Paris et Ivry
- L'accès direct aux axes de circulation
- Double certification NF HQE Exploitation et BREEAM In-Use International « Very Good »
Services & prestations
Aménagements
-
Auditorium
-
Effectif théorique : 2857 personne(s)
Prestations de service
-
Cafétéria
-
Fitness
-
Restauration
Extérieurs
-
Terrasses - jardins
Normes, Certifications et Labels
-
Certification : BREEAM
Type / Etat du bâtiment
-
Etat des locaux : Rénové










