



32 RUE PIERRE RIGAUD
94200 Ivry-sur-Seine
7 232 m²
Divisible dès 284 m²
à partir de 275 €
HT/HC/m²/an
Disponibilité : JUIN 2024

Gilles BROCARD
Description
Bureaux neufs à louer à Ivry-sur-Seine (94) avec le nouveau programme LA FABRIK, à l’architecture remarquable signée ECDM. Proche de la Gare RER C Ivry sur Seine, cet immeuble indépendant de 7 000 m² divisibles, multi-certifié et aux derniers standards, proposera notamment un dernier niveau sur terrasse couverte permettant d’accueillir un espace alternatif, événementiel ou de restauration. LA FABRIK dispose de beaux plateaux rationnels de 1.200 m², d’une cellule
commerciale grande hauteur et de la possibilité d’un classement ERP (5 en base, possibilité d’ERP 3).
L'immeuble de bureaux est situé 32 rue Pierre Rigaud à Ivry sur Seine (94). Il est accessible par le RER C.
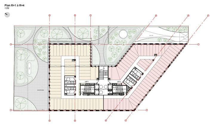
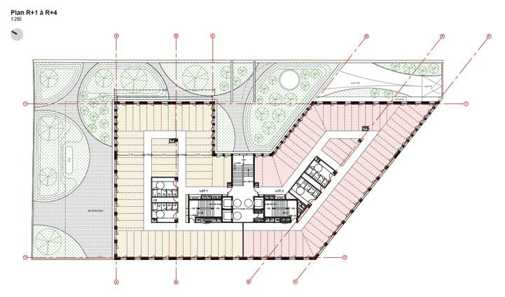
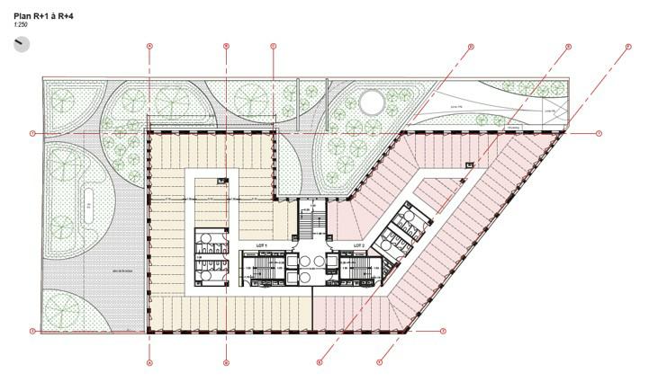
Organisation générale de l’immeuble :
- 1 niveau d’infrastructure contenant 64 places de parkings voitures et 3 motos, 2 locaux vélos et des locaux divers
- 1 niveau RdC à usage de hall d’accueil, bureaux et locaux divers (locaux techniques, local déchet, local vélos, vestiaires, etc.)
- 5 niveaux de bureaux en superstructure, le R+5 disposant d’une cafétéria (capacité 150 p.) et d’une terrasse en bois couverte de c. 100 m²
- 1 cellule commerciale au RdC,
- Divisibilité : 2 locataires potentiels par étage (sauf RdC et R+5) avec des plateaux courants de c. 1.200 m² de surface utile
- Classement des locaux bureaux : ERP de 5e catégorie (effectif public max. de 200 personnes dans l’immeuble dont 100 max. par étage).
Qualité environnementale / certifications :
- Certification HQE « NF Démarche HQE® Bâtiments Durables », niveau excellent
- Certification BREEAM, niveau very good
- Label Wired Scored, niveau silver
- Label E2 C1
- Performance énergétique : RT 2012 - 30%
- Capacitaire bureaux : 715 p. (sur la base d’une personne pour 8 m² de SUN)
- Hauteurs libres : 2,70m (+/- 2cm) dans les zones courantes de bureaux et > 3,50m dans le hall d’accueil
Services & prestations
Aménagements
-
Effectif théorique : 715 personne(s)
Hauteurs
-
Hauteur sous-plafond : 2,70
Normes, Certifications et Labels
-
Catégorie ERP : 5
-
Certification : HQE
Type / Etat du bâtiment
-
Etat de l'immeuble : Neuf










