




Location Commerce 763 m²
34000 Montpellier
763 m²
Divisible dès 223 m²
130 €
HT/HC/m²/an
Disponibilité : Immédiate

Caroline DE BOISGELIN-ABECASSIS
Description
MONTPELLIER CENTRE - PORT MARIANNE - REPUBLIQUE - SO WOOD - COMMERCES A LOUER
À louer, commerces d'une surface de 223 m² à 308 m² en rez-de-chaussée avec mezzanine de l'immeuble SO WOOD, au sein du quartier Port Marianne/République.
Les 3 locaux bénéficient d'une excellente visibilité sur l'un des axes les plus empruntés du quartier, tramway ligne T3 à quelques mètres seulement !
CARACTÉRISTIQUES DES LOTS
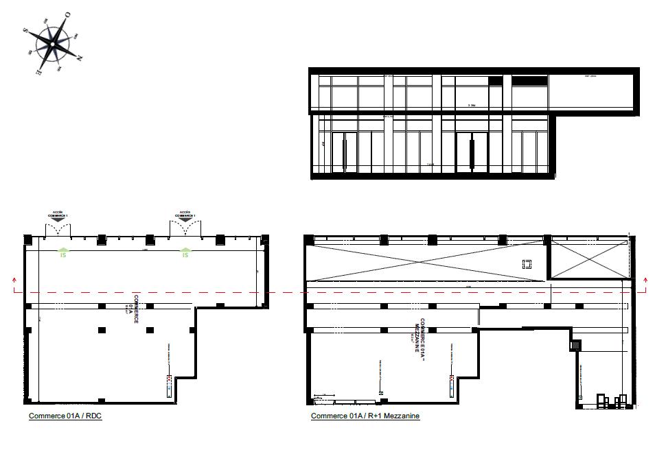
Local 1A - 308 m² :
Idéal enseigne d'équipement de la maison / meubles premium
Mezzanine : 152 m²
Compteur : 24 kVa Triphasé
Climatisation RMCF
Vitrine toute hauteur et grand volume
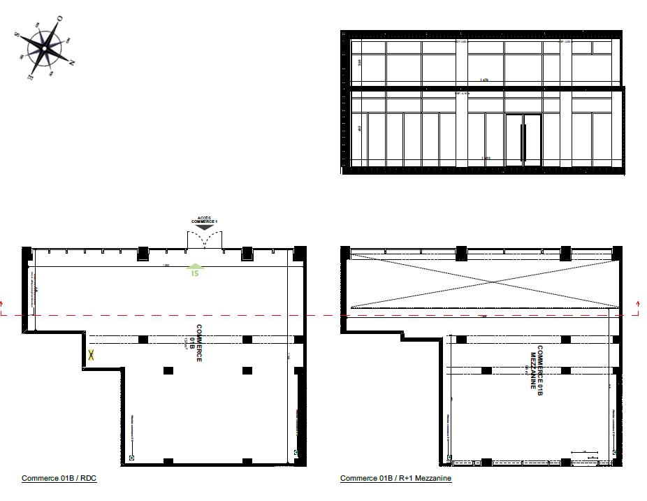
Local 1B - 223 m² :
- Idéal enseigne d'équipement de la maison / meubles premium
- Mezzanine : 86 m²
- Compteur : 18 kVa Triphasé
- Climatisation RMCF
- Vitrine toute hauteur et grand volume
- Visibilité d'angle immédiate
- Idéal concept de restauration / café
- Mezzanine : 149 m² - pour salle de restaurant
- Compteur : 12 kVa Triphasé
- Climatisation RMCF
- Grande hauteur sous plafond
Le quartier Port Marianne, nouveau centre urbain est situé à proximité du centre-ville. Un quartier mixte animé où cohabitent salariés, habitants et étudiants. Véritable poumon vert, Port Marianne surprend par sa capacité à associer urbanisme et nature. En mêlant habitations, bureaux et commerces, Port Marianne s'impose comme une zone dynamique économiquement et architecturalement, notamment avec son avenue « signature » constituée d'immeuble signés par Jean Nouvel, Philippe Starck, Jean-Michel Wilmotte ou Jean-Baptiste Miralles.
Le quartier est très prisé des start-ups pour sa proximité du centre-ville et les afterworks où se rencontrent les salariés de divers horizons.
ACCESSIBILITÉS :
Gare TGV Sud de France à 5 minutes, Saint Roch à 10 minutes
Aéroport Montpellier Méditerranée à 10 minutes
Tramway T3 arrêt « Pablo Picasso » en pied d'immeuble
Autoroutes A9/A709 à 6 minutes
Circulations douces raccordés aux transports en commun
Services & prestations
Type / Etat du bâtiment
-
Etat de l'immeuble : Neuf
Extérieurs
-
Linéaire de façade : Vitrine toute hauteur
-
Terrasses - jardins
Aménagements
-
Accueil
-
Aménagement des bureaux : Cloisonnés/Ouverts
-
Bureaux cloisonnés
-
Hall d'accueil
-
Sanitaires
Equipements
-
Ascenseurs
-
Climatisation : Réseau Montpelliérain de Chaleur et de Froid (RMCF)
-
Puissance électrique : 12,00 KWA Triphasé - A partir de 12 kVa
Prestations de service
-
Capacité de restauration : Restaurant à 5 minutes
-
Fitness : Salle de Sport à 5 minutes
Structure du bâtiment
-
Extraction / Conduit cheminée : Extraction - local 2
Informations complémentaires
-
Douche, Livraison brut béton, fluides en attente, Local poubelle
-
Mezzanine, Phone Box
-
Evacuation EU





